Nhà Đất BánHồ Chí MinhH. Nhà BèPhú Gia Cotec
Mua bán nhà đất tại dự án Phú Gia Cotec, Huyện Nhà Bè
Phú Gia Cotec, X.Phú Xuân, H.Nhà Bè, HCM
- DT: 7x17(119m) HĐMB giá 28tr/m
- 7x21(147m) giá 30tr/m có sổ cty
- vị trí: Cạnh Trường Cấp 3 Dương Văn Dương và Chung Cư Hiệp Nguyên
- Kết thông nguyễn lương bằng nối dài. Về phú mỹ hưng. Cần giờ. Trung tâm hành chính xã Nhà Bè.
📱: 09166816820916681xxx Nghinh BĐS Phú Xuân - Nhận Ký Gửi Nhà Đất - Nhà Đất Dự Án - Nhà Đất Nhỏ Lẻ - Hỗ Trợ Pháp Lý. Thủ Tục Hành ...
Phú Gia Cotec, X.Phú Xuân, H.Nhà Bè, HCM
- Diện tích 12,5x20m (250m²).
- Vị trí: Mặt tiền đường 16m, trung tâm hành chính huyện Nhà Bè, sát bên trường cấp 3 Dương Văn Dương, chợ siêu thị 0,5km bán kính đầy đủ. Đầu tư sinh lời cao.
- Hình ảnh và giá thực tế, liên hệ Nghinh để được
- Nền nhà phố 7x18m đường 12m giá 22tr/m².xem vị trí đầu tư miễn phí.
- Giá chốt ...
Phú Gia Cotec, X.Phú Xuân, H.Nhà Bè, HCM
- góc diện tích 10x23 (226m) giá 21,5tr/m² HĐMB
+ vị trí: trung tâm xã NHà Bè. Sát Trường Cấp 3 Dương Văn Dương, Chung Cư Hiệp Nguyên
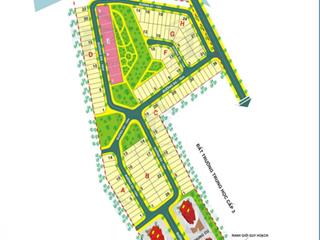
Đặc điểm nổi bật của dự án là hệ thống giao thông mạch lạc, môi trường sống trong lành và không gian công cộng rộng lớn.
**Giới thiệu tổng quan dự án**
Phú Gia Cotec có quy mô ...
Phú Gia Cotec, X.Phú Xuân, H.Nhà Bè, HCM
Điểm nổi bật:
- Hướng cửa chính Tây Nam, rất tốt cho phong thủy.
- Chiều ngang mặt tiền 7m, thuận tiện cho việc xây dựng và buôn bán.
- Đường vào rộng 14m, dễ dàng cho xe hơi di chuyển.
- vị trí: ...
Phú Gia Cotec, X.Phú Xuân, H.Nhà Bè, HCM
Điểm nổi bật:
- Hướng cửa chính Tây Nam, rất tốt cho phong thủy.
- Chiều ngang mặt tiền 7m, thuận tiện cho việc xây dựng và buôn bán.
- Đường vào rộng 14m, dễ dàng cho xe hơi di chuyển.
- vị trí: ...
Phú Gia Cotec, X.Phú Xuân, H.Nhà Bè, HCM
- Diện tích 7x17m (119m²) và giá bán chỉ 28 triệu / m². Khu đất có mặt tiền rộng 7m, đường vào 16m, có sổ cty.
+ Vị trí: Trung tâm xã NHà Bè. Sát Trường Cấp 3 Dương Văn Dương, Chung Cư Hiệp Nguyên.
Đặc điểm nổi bật của dự án là hệ thống giao thông mạch lạc, môi trường sống trong lành và không gian công cộng ...
Phú Gia Cotec, X.Phú Xuân, H.Nhà Bè, HCM
Giá 20tr/m² TL.
Gọi Vân .
Phú Gia Cotec, X.Phú Xuân, H.Nhà Bè, HCM
Điểm nổi bật:
- Hướng cửa chính Tây Nam, rất tốt cho phong thủy.
- Chiều ngang mặt tiền 7m, thuận tiện cho việc xây dựng và buôn bán.
- Đường vào rộng 14m, dễ dàng cho xe hơi di chuyển.
- Vị trí: ...
Phú Gia Cotec, X.Phú Xuân, H.Nhà Bè, HCM
- Diện tích 147m², giá tốt đầu tư 27.5tr/m², đường 14m, đã có sổ công ty.
- Pháp lý: Hợp đồng mua bán.
Vị trí lô đất đẹp, lối vào chung cư Orchid Park đã đi vào hoạt động. Mặt tiền đường 14m thông thẳng Nguyễn Lương Bằng.
Hạ tầng dự án đẹp, điện nước âm. Tương lai thông thẳng 15B, đi trung tâm thành phố dễ dàng.
Giá tốt đầu tư, anh chị quan tâm mua đất ...
Phú Gia Cotec, X.Phú Xuân, H.Nhà Bè, HCM
- DT 7x21m Cotec Phú Gia Phú Xuân Nhà Bè, sổ đỏ công ty, gần chung cư trường học.
Giá bán: 25tr/m².
Liên hệ: gặp Phong tư vấn xem đất.
Xem quy hoạch tại H. Nhà Bè, Hồ Chí Minh
Mua Bán Bất Động Sản dự án Phú Gia Cotec Tháng 5/2026
Mua bán nhà đất dự án Phú Gia Cotec ngày càng hứa hẹn là thị trường đầy tiềm năng khi được sự quan tâm của nhiều nhà đầu tư của trong và ngoài nước. Hàng loạt các loại hình bất động sản từ nhà riêng, nhà phố, nhà mặt tiền, đất nền, dự án, biệt thự, căn hộ chung cư... đều trở thành tiêu điểm chú ý của bất động sản dự án Phú Gia Cotec.
Để cập nhật những thông tin bất động sản dự án Phú Gia Cotec chính xác nhất, mới nhất hãy truy cập vào bds68.com.vn để theo dõi giá bất động sản dự án Phú Gia Cotec tháng 5/2026. Với bds68.com.vn bạn dễ dành lọc theo địa điểm, giá, diện tích, dự án, đường phố, số phòng ngủ và hướng để tìm ra BĐS mong muốn. Ngoài ra với tính năng gợi ý những batdongsan liền kề cùng mức giá giúp bạn dễ dàng tìm ra chính chủ của BĐS.
Việc mua bán nhà đất dự án Phú Gia Cotec trở nên dễ dàng, thuận tiện và an toàn hơn, người mua cần chú ý các điểm sau đây:
✅ Vấn đề pháp lý tại dự án Phú Gia Cotec: Nên mua những bđs có đầy đủ giấy tờ, tránh mua nhà qua giấy tay và cần lưu ý vấn đề tranh chấp và nợ thế chấp của BĐS.
✅ Thông tin quy hoạch tại dự án Phú Gia Cotec: Việc này có thể mất thời gian nhưng nhất định phải làm, để tránh mua phải nhà cửa, đất đai vướng vào quy hoạch treo. Bạn cần mang bản photo sổ đỏ đến Phòng Tài nguyên môi trường ở quận/huyện hay bộ phận một cửa của UBND quận, huyện nơi bất động sản toạ lạc.
✅ Vị trí và các yếu tố phong thủy: Vị trí là một trong nhưng yếu tố hàng đầu quyết định giá nhà hiện tại và giá nhà trong tương lai tại dự án Phú Gia Cotec. Những vị trí thuận lợi về mặt giao thông, gần nhiều tiện ích và dịch vụ thiết yếu như: chợ, trường học, trung tâm thương mại, bệnh viện, công viên, nhà văn hóa… Phong thủy cũng là yếu tố quan trọng góp phần mang vận may cũng như sức khỏe, tiền tài của người trong gia đình
✅ Tìm hiểu môi trường cư dân xung quanh: Dù là định cư lâu dài, hay chỉ là mua lại kinh doanh thì khu dân cư nơi đó cũng là một điểm sáng quan trọng. Giá nhà ở dự án Phú Gia Cotec có xu hướng tăng nhiều hơn ở khu nhà giàu và dân trí cao.
✅ Các điều khoản trong hợp đồng cần phải được quy định rõ ràng và chi tiết: về giá bán bất động sản dự án Phú Gia Cotec, cách thanh toán, thời hạn thanh toán, thời hạn bàn giao, các mức bồi thường thiệt hại,…
Để tìm mua nhà cửa, đất đai tại dự án Phú Gia Cotec giá rẻ, chính chủ và mới nhất, bạn hãy truy cập vào bds68.com.vn hoặc nếu bạn có bất động sản muốn bán, bạn có thể đăng tin miễn phí mua bán nhà đất trên bds68 để dễ dàng tiếp cận với hàng triệu người đang có nhu cầu.
Tham khảo ngay những tin mua bán nhà đất dự án Phú Gia Cotec được quan tâm nhiều nhất hiện nay:
- Mua bán nhà đất dự án Phú Gia Cotec dưới 1 tỷ
- Mua bán nhà đất dự án Phú Gia Cotec dưới 2 tỷ
- Mua bán nhà đất dự án Phú Gia Cotec dưới 3 tỷ
- Mua bán nhà đất dự án Phú Gia Cotec dưới 5 tỷ
- Mua bán nhà đất dự án Phú Gia Cotec diện tích trên 50m²
- Mua bán nhà đất dự án Phú Gia Cotec diện tích trên 60m²
- Mua bán nhà đất dự án Phú Gia Cotec diện tích trên 80m²
- Mua bán nhà đất dự án Phú Gia Cotec diện tích trên 100m²







