Thông tin dự án Khu đô thị mới Việt Hưng
Khu đô thị Việt Hưng được xây dựng tại phía Đông Nam của Khu công nghiệp Việt Hưng với quy mô khoảng 85 ha, đáp ứng nhu cầu về nhà ở, cung cấp lao động cũng như cơ sở hạ tầng xã hội cho khu công nghiệp.
Đây sẽ là một khu đô thị lớn với đầy đủ các phân khu chức năng như: khách sạn, trường học, bệnh viện, bưu điện, sân vận động.... đảm bảo thu hút dân cư và chỉnh trang đô thị cho khu vực.

Phối cảnh dự án Khu đô thị mới Việt Hưng
Vị trí
Khu đô thị mới Việt Hưng tọa lạc ở Phường Việt Hưng, Hạ Long, Quảng Ninh.
- Phía Bắc Giáp Sông Trới.
- Phía Nam giáp đường 279
- Phía Tây tiếp giáp đường 279 đi lên thị Trấn Trới.
- Phía Đông giáp Sông Trới.

Vị trí dự án Khu đô thị mới Việt Hưng
Hạ tầng
Hạ tầng kỹ thuật khu đô thị mới Việt Hưng:
Giao thông:
Đường Thuỷ:
Sông Trới giáp Phía Đông Khu Công nghiệp thông ra Vịnh Cửa Lục. Hiện nay các Tàu và Xà Lan tải trọng tới 500 tấn có thể ra vào Sông Trới, tới được cảng than tại vị trí gần cầu Trới, phía Bắc Khu Công nghiệp. Hàng hoá xuất đi các tỉnh và nước ngoài bằng đường thuỷ được chuyển tới cảng Cái Lân.

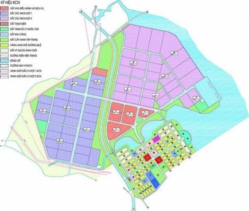
Quy hoạch tổng thể
Đường Bộ:
Hiện nay dự án khả thi xây dựng tuyến đường cao tốc Nội Bài Quảng Ninh đã được phê duyệt và đang triển khai thiết kế kỹ thuật. Trong đó có tuyến đường Chí Linh Tiêu Giao nối đường cao tốc Nội Bài Quảng Ninh và Quốc Lộ 18A đi qua khu công nghiệp theo hướng Bắc Nam, là một động lực quan trọng để phát triển cho khu công nghiệp.
Đường Nội Bộ:
Mạng lưới giao thông nội bộ Khu công nghiệp tổ chức theo dạng bàn cờ với các đường trục chính rộng 2 x7,5 m theo hướng Bắc Nam Đông Tây. Các tuyến đường nhánh vuông góc với các tuyến trục chính tạo thành mạng giao thông thuận tiện liên hệ trực tiếp tới từng lô đất xây dựng Nhà máy.
Hệ thống Thông tin liên lạc: Toàn bộ quy hoạch nằm trong vùng phủ sóng của bưu điện Quảng Ninh. Hệ thống thông tin liên lạc được bưu điện Quảng Ninh thiết kế và lắp đặt vận hành với tổng đài tại khu điều hành của Khu Công nghiệp. Từ tổng đài có hệ thống cáp ngầm dẫn đến từng lô nhà máy.
Hệ thống cấp điện: Nguồn cung cấp điện cho KCN được lấy từ tuyến đường điện cao thế 110KV đi ven ranh giới phía Tây dọc trục đường 279 đi thị Trấn Trới. Đường dây trên không 110KV dẫn điện từ trạm biến áp 110/22 KV của khu Công nghiệp đặt tại Phía Tây Bắc khu Công nghiệp phân phối cho từng Nhà Máy và dẫn đến trạm hạ thế của khu dịch vụ theo các mạch vòng cáp ngầm 22KV.
Hệ thống cấp và thoát nước: Hiện nay toàn bộ khu vực Bãi Cháy và khu vực Cái Lân được cấp từ Nhà Máy nước Đồng Ho với công suất hiện nay là 20.000 m3/ ngày đêm. Khu công nghiệp Việt Hưng lấy nước sạch từ đường ống cấp nước D 500 của Nhà máy nước Đồng Ho đang chạy qua khu vực.

