Vị trí roman plaza khu tổ hợp cao cấp, dân cư đông, hoạt động kinh doanh sôi động.
1 / 3
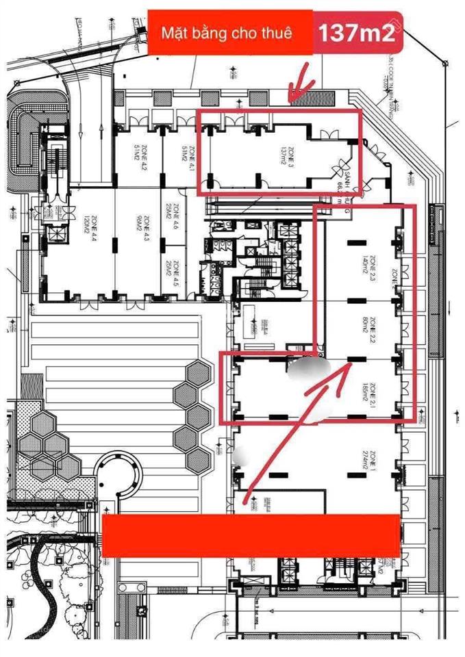
Thông tin mặt bằng:
Diện tích: 137 m²
Mặt tiền: 15 m cực thoáng, nhận diện thương hiệu rất tốt
Giá thuê: 66 triệu/tháng (chưa thuế & phí, có thương lượng thêm)
Đặt cọc: 1 tháng
Thanh toán: 3 tháng/lần
Phù hợp mô hình:
Café, nhà hàng, showroom, nhà sách, chuỗi dịch vụ, thương hiệu bán lẻ.
Ưu điểm:
Mặt tiền rộng hiếm trong khu Roman Plaza
Tệp khách cư dân cao cấp sẵn có
Mặt bằng vuông vắn, dễ setup và khai thác lâu dài
Liên hệ: Nguyễn Vân ITALAND
Tư vấn nhanh hỗ trợ khảo sát & đàm phán giá tốt
Xem thêm
Đặc Điểm
Loại Tin Rao: Thuê ShopHouse
Giá: Thỏa thuận
Diện Tích: 137 m2
Mã Đăng Tin: 29771042
Ngày Đăng: 15/01/2026 - 25/01/2026
Xem quy hoạch của bđs tại Phường Đại Mỗ, Nam Từ Liêm, Hà Nội
Tin Thuê ShopHouse Cùng Mức Giá Trong Phường Đại Mỗ, Nam Từ Liêm, Hà Nội
Đang Tải ...
Xem Bản Đồ

