Nhà Đất BánPhú Yên
Mua bán nhà đất tại Phú Yên diện tích lớn hơn 60 m²
Cloud Reserve Central Tuy Hoa, P.9, Tp.Tuy Hòa, PY
Cloud Reserve Central 4 tầng + 1 tum, giá chỉ 8,3 tỷ.
Giữa khu trung tâm vui chơi dịch vụ sôi động của TP. Tuy Hòa, một căn nhà phố đẹp, xây sẵn, vị trí chuẩn trung tâm như thế này gần như không còn nhiều.
Cloud Reserve Central Tuy Hòa mang đến cơ hội sở hữu nhà phố 4 tầng + 1 tum, vừa ở vừa kinh doanh, giá chỉ 8,3 tỷ mức giá hiếm gặp cho bất động ...
Đường D5, P.9, Tp.Tuy Hòa, PY
Với 125m² nhà 5 tầng, ở - cho thuê làm Spa, cafe, Khách sạn hoặc có thể khai thác nhiều công năng khác nhau.
Liên hệ: Tú Ngọc
- Vị trí: khu đất vàng trung tâm Phố gần biển, đông dân cư lưu lượng xe qua lại nhièu - khu mới dân cư chọn lọc vì đây là nơi mà CĐT tâm huyết xây dựng nên phố mới ...
Cloud Reserve Central Tuy Hoa, P.9, Tp.Tuy Hòa, PY
Diện tích đất : 125m2
Tổng diện tích sàn xd : 558,8
Kích thước lô đất : 5x25
Tầng cao : 5 tầng - Hướng Tây Bắc
Giá : 18.xxx.xxx.xxx
Cloud Reserve Central Tuy Hoa, P.9, Tp.Tuy Hòa, PY
Điểm cộng lớn của shophouse này là phong thủy tốt, giúp thu hút tài lộc và may mắn cho chủ nhân. Cùng với thiết ...
Cloud Reserve Central Tuy Hoa, P.9, Tp.Tuy Hòa, PY
Là dự án đô thị cao cấp ra mắt đầu tiên trong 4 đại đô thị trung tâm lõi Tuy Hòa Mặt tiền đường Trần Phú.
1. Bắc Trần Phú 4ha CLoud Reserve Central Tuy Hoa 1,84 ha đã khởi công.
2. Nam Trần Phú liền kề Công viên Hồ Điều
Dự Án Bắc Trần Phú
Lk04- lô 07
Diện tích đất : 125m2
Tổng diện tích sàn xd : 558,8
Kích thước lô đất : ...
Cloud Reserve Central Tuy Hoa, P.9, Tp.Tuy Hòa, PY
Thông tin căn nhà:
+ Diện tích 15x20m.
+ Kết cấu 3 tầng + tum.
+ Mật độ xây dựng 46%.
+ Diện tích xây dựng 480,8m².
+ Độ cao tầng 1: 3,9m.
+ Độ cao tầng 2,3: 3,6m.
+ Độ cao tầng tum 3m.
Vị trí: Trung tâm thành phố Tuy Hoà.
Mặt tiền đường D4 rộng 20m.
- Cách Hồ điều hoà 200m.
- Cách Vincom, Apec 200m.
- Cách biển 1km.
- Cách sân baby ...
Cloud Reserve Central Tuy Hoa, P.9, Tp.Tuy Hòa, PY
Địa chỉ: Đường Trần Phú, Phường Tuy Hòa, Đắk Lắk.
Vị trí: Mặt tiền đường Trần Phú, quy hoạch đồng bộ, môi trường sống yên tĩnh riêng tư.
Pháp lý: Sổ đỏ lâu dài, sở hữu riêng từng căn.
Bàn giao: Hoàn thiện mặt ngoài, thô bên trong chủ động thiết kế theo phong cách riêng.
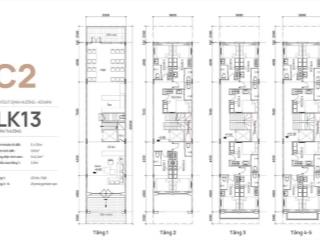
Thông tin LK 13.
Tầng cao: 5 tầng.
Mật độ xây dựng: 85 - ...
Cloud Reserve Central Tuy Hoa, P.9, Tp.Tuy Hòa, PY
VỊ TRÍ ĐẮC ĐỊA:
Mặt tiền Đường Trần Phú tuyến đường sầm uất bậc nhất Tại Đông Đắk Lắk.
Cách biển chỉ 1 km Thuận tiện kết nối đến trung tâm hành chính, sân bay, bãi biển
SẢN PHẨM ĐA DẠNG:
Quy mô dự án: 1.8 ha
Với kiến trúc Châu Âu, hiện đại sang trọng.
TIỆN ÍCH XUNG QUANH:
Bệnh viện Quốc tế, Trường Học, Trung tâm ...
Cloud Reserve Central Tuy Hoa, P.9, Tp.Tuy Hòa, PY
Thiết kế 4 tầng - 1 tum, diện tích 5x20m (100m²), Có 4 phòng ngủ, 1 phòng khách, 1 phòng bếp + phòng ăn, 1 sân trước, 1 sân sau, 1 sân thượng.
- Thang máy gia đình gọn nhỏ, đi trong nhà thoải mái.
Sử dụng vốn tự có hoặc vay ngân hàng.
Có hỗ trợ vay ngân hàng.
Nơi hội tụ vị trí lõi đô thị, quy hoạch đồng bộ và số lượng giới ...
Khu dân cư hiện hữu
Gần trung tâm, tiện sinh hoạt
Phù hợp ở hoặc đầu tư
Cloud Reserve Central Tuy Hoa, P.9, Tp.Tuy Hòa, PY
1. Bắc Trần Phú 4ha CLoud Reserve Central Tuy Hoa 1,84 ha đã khởi công.
2. Nam Trần Phú liền kề Công viên Hồ Điều Hòa 20ha mặt nước.
3. KĐT 126,56 ha.
4. KĐT 442ha.
Trung tâm Thành Phố Tuy Hoà chỉ còn sót lại quỹ đất hiếm chưa được triển khai trên đường Trần Phú.
Mặt tiền đường Trần Phú ...
Cloud Reserve Central Tuy Hoa, P.9, Tp.Tuy Hòa, PY
- Diện tích: 125m²
- Giá bán: 16,878 tỷ VND
- Thiết kế hiện đại, tối ưu không gian sử dụng
- Khu vực giao thông thuận lợi, dễ dàng kết nối với các khu ...
Cloud Reserve Central Tuy Hoa, P.9, Tp.Tuy Hòa, PY
Địa chỉ: Đường Trần Phú, Phường Tuy Hòa, Đắk Lắk.
Vị trí: Biệt thự nội khu, quy hoạch đồng bộ, môi trường sống yên tĩnh riêng tư.
Pháp lý: Sổ đỏ lâu dài, sở hữu riêng từng căn.
Bàn giao: Hoàn thiện mặt ngoài, thô bên trong chủ động thiết kế theo phong cách riêng.
Thông tin biệt thự BT05.
Tầng cao: 3 tầng + 1 tum.
Mật độ xây dựng: 44 46%.
Kích ...
Cloud Reserve Central Tuy Hoa, P.9, Tp.Tuy Hòa, PY
Giá chỉ
Vị trí kết nốt giao thông thuận lợi
-Mặt tiền đường D5 rộng 20m.
Cách Hồ điều hoà 200m
Cách Vincom, Apec 200m,
Cách biển 1km.
Cách sân bay 12 phút.
Cách nhà ga,bến xe 3 phút.
Cách BV quốc tế 100m
Trường học các cấp 1,2,3, đại học cách chỉ 500
+Kích thước lô đất 5x20
+Diện tích đất 100m2
Hoàn thiện ...
Cloud Reserve Central Tuy Hoa, P.9, Tp.Tuy Hòa, PY
* Vị trí dự án nằm ngay Trung tâm thành phố với trục đường chính Trần Phú rộng 36m, đây là 1 trong những tuyến đường huyết mạch và sầm uất, rất thích hợp để kinh ...
Cloud Reserve Central Tuy Hoa, P.9, Tp.Tuy Hòa, PY
Cloud Reserve Central Tuy Hoa, P.9, Tp.Tuy Hòa, PY
- Diện tích 100m², phù hợp cho gia đình lớn với 4PN và 5WC.
- Thiết kế 4 tầng, mặt tiền rộng 5m, đường vào 20m, thuận tiện cho xe ô tô.
- Hướng cửa chính và ban công Tây Bắc, phong thủy tốt cho gia chủ.
- Pháp lý đầy đủ, sổ đỏ sẵn sàng giao dịch.
- Không nội thất, tạo điều kiện cho khách hàng tự do thiết kế ...
Cloud Reserve Central Tuy Hoa, P.9, Tp.Tuy Hòa, PY
Phân khu LK04 tại Cloud Reserve Tuy Hòa là dòng shophouse sở hữu vị trí lõi, kết nối trực tiếp các trục đường nội khu sầm uất, mang đến sự cân bằng giữa giá trị thương mại và không gian sống hiện đại.
Điểm nhấn thiết kế & Quy hoạch:
Vị trí chiến lược: Nằm giữa trục đường D4 và D5 (rộng 20m), liền kề khu biệt thự cao cấp ...
Cloud Reserve Central Tuy Hoa, P.9, Tp.Tuy Hòa, PY
Tiện ích xung quanh đầy đủ, đối diện hồ điều hòa,
Ngân hàng hỗ trợ, hỗ trợ thanh toán chậm.
- Được thiết kế theo kiến trúc Châu Âu, sang trọng hiện đại.
- Bàn giao thô, hoàn thiện mặt ngoài.
- Sở hữu sổ đỏ lâu dài.
- Tiện ích ngoại khu đa dạng, nằm cạnh trung tâm thương mại Vincom Tuy Hòa, gần biển Tuy Hòa, gần bệnh viện, gần chợ, kinh doanh sầm uất, dân cư ...
Cloud Reserve Central Tuy Hoa, P.9, Tp.Tuy Hòa, PY
- Diện tích đất 5x25m, DTXD 538m². Nhà nhận mới keng, hướng Đông Nam thoáng mát.
- Hạ tầng xung quanh bài bản, gần công viên trung tâm thành phố, dân cư đông đúc, văn ...














