Vinhomes Wonder Park
Thông tin dự án Vinhomes Wonder Park
Chung cư Vinhomes Wonder Park thuộc chuỗi căn hộ Vincity của chủ đầu tư Vingroup dành cho các khách hàng có thu nhập thấp - trung bình với mong muốn sở hữu căn hộ chất lượng bảo đảm, dịch vụ tiện ích đầy đủ cùng đơn vị vận hành, quản lý chuyên nghiệp.
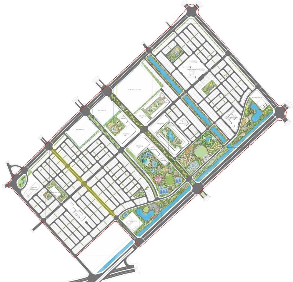
Các căn hộ Vinhomes Wonder Park sẽ là lựa chọn tốt cho những khách hàng đang sống và làm việc tại khu vực này và các khu vực xung quanh. Dự án có tổng diện tích 133ha với các căn hộ được trang bị những dịch vụ, tiện ích như bệnh viện, nhà trẻ, trường học... hình thành nên một khu đô thị khép kín có đầy đủ tiện nghi.
- Tên dự án: Vinhomes Wonder Park
- Chủ đầu tư: Vingroup
- Diện tích khu đất: 133ha
- Sản phẩm phát triển: Biệt thự, Liền kề, shophouse, căn hộ
- Quy mô: 3 phân khu
+ Phân khu Ánh Sáng – The Light
+ Phân khu Thời Đại – The Times
+ Phân khu Hoàng Gia – The Royal

Phối cảnh tổng thể Vinhomes Wonder Park
Vị trí
Vinhomes Wonder Park tọa lạc trong khu vực 2 xã Tân Hội, Liên Trung, phía Tây Bắc Thủ đô, nằm giữa Quốc lộ 32 từ Hà Nội đi Sơn Tây. Dự án có phía Bắc dễ dàng di chuyển ra huyện Mê Linh, phía Nam di chuyển ra huyện Hoài Đức, phía Tây di chuyển ra huyện Phúc Thọ, phía Đông đi ra quận Bắc Từ Liêm.

Vị trí Vinhomes Wonder Park
Hạ tầng
Vinhomes Wonder Park được đầu tư xây dựng hệ thống dịch vụ, tiện ích đẳng cấp 5 sao từ những sản phẩm của Tập đoàn Vingroup như Vinmart, Vinpro, Vincom, phòng khám Vinmec, hệ thống trường liên cấp Vinshool, bể bơi trong nhà và ngoài trời, khu dạo phố và những tiện ích vượt trội khác.

Siêu thị Vinmart

Phòng tập Gym

Khu vui chơi cho trẻ em

