Vinahud
Thông tin dự án Vinahud
Tòa nhà Vinahud nằm trong Khu đô thị Nam Trung Yên, quận Cầu Giấy, Hà Nội. Dự án có vị trí thuận lợi, nằm ngay ngã tư giữa đường Trung Yên 3 và Trung Yên 9, lấy đường Trung Yên 9 chạy dọc nằm phía Tây khu đất làm hướng chủ đạo, đảm bảo mặt tiền khu nhà được thông thoáng, giao thông thuận tiện. Hai bên khối nhà có các khoảng sân riêng tạo thông thoáng cho tòa nhà và là lối cho xe lên xuống tầng hầm.
Các chỉ tiêu chính của tòa nhà:
- Tổng diện tích khu đất: 1.300m2
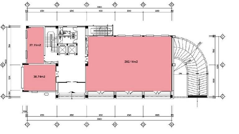
- Diện tích xây dựng công trình: 849m2
+ Khối 9 tầng: 435m2
+ Khối 5 tầng: 414m2
- Tổng diện tích sàn xây dựng: 5.985m2
+ Khối 9 tầng: 3.915m2
+ Khối 5 tầng: 2.070m2
- Tầng hầm: 1 tầng
- Mật độ xây dựng: 65%
- Cấp công trình: II
- Bậc chịu lửa: 1

Tổng quan tòa nhà Vinahud
Vị trí
Tòa nhà Vinahud nằm trong khu đô thị Nam Trung Yên, Quận Cầu Giấy, Hà Nội. Với vị trí thuận lợi, nằm ngay ngã tư giữa đường Trung Yên 3 và Trung Yên 9. Lấy đường Trung Yên 9 chạy dọc nằm phía Tây khu đất làm hướng chủ đạo, đảm bảo mặt tiền khu nhà được thông thoáng, giao thông thuận tiện. Hai bên khối nhà có các khoảng sân riêng tạo thông thoáng cho tòa nhà và là lối cho xe lên xuống tầng hầm.
Cách đường trục chính Trung Hòa 50m, từ vị trí tòa nhà thuận tiện di chuyển ra các trục đường lớn như Trần Duy Hưng, Phạm Hùng, Láng Hòa Lạc.
Ranh giới khu đất:
- Phía Tây Nam giáp đường Trung Yên 9
- Phía Tây Bắc giáp đường Trung Yên 3
- Phía Đông Bắc giáp Cục cảnh sát bảo vệ và hỗ trợ tư pháp
- Phía Đông Nam giáp khu dân cư

Vị trí dự án Vinahud
Hạ tầng
- Công trình được thiết kế với tỉ lệ hình khối hợp lý, hình thức kiến trúc hiện đại tạo cảnh quan cho khu vực. Các chức năng của tòa nhà được tổ hợp liên hoàn khép kín và sử dụng hợp lý.
- Mặt bằng, mặt đường được thiết kế đơn giản, phù hợp với kiến trúc văn phòng làm việc. Hình khối và đường nét mang phong cách hiện đại, phù hợp với kiến trúc hiện có của một khu đô thị mới.
- Tổ chức giao thông thuận tiện, tận dụng tối đa diện tích sử dụng. Hệ thống giao thông gồm thang máy, thang bộ đáp ứng các yêu cầu kỹ thuật theo tiêu chuẩn Việt Nam và đảm bảo thoát người thuận lợi, an toàn và nhanh chóng khi xảy ra sự cố hoả hoạn, động đất...
- Tòa nhà sử dụng vật liệu kính hiện đại, kiến trúc độc đáo, vị trí thoáng, tầm nhìn rộng.

