Việt Phú Garden
Thông tin tổng quan Việt Phú Garden
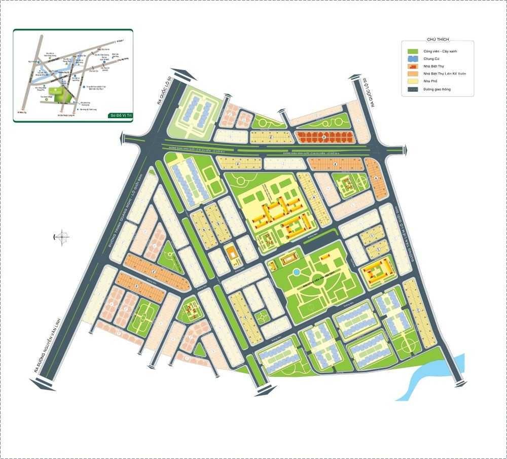
Khu đô thị Việt Phú Garden có quy mô 87ha, được quy hoạch tại phía Nam Đô Thị Nam Thành Phố thuộc Xã Phong Phú, Bình Chánh, Tp.HCM. Việt Phú Garden được đầu tư bởi Công ty Cổ Phần Đầu tư Xây dựng Bình Chánh (BCCI).
Là một trong những khu đô thị xanh của thành phố, tổng vốn đầu tư cho Việt Phú Garden lên đến 1.073.418.174.000 đồng. Dự án được quy hoạch thành 3 khu:
- Khu A: Tổng DT khu đất là 196.953 m2: gồm 759 căn nhà liên kế vườn, 1 nhà trẻ mẫu giáo và 3 mảng công viên cây xanh thể dục thể thao.
- Khu B: Tổng diện tích khu đất: 326.618 m2: gồm 887 căn nhà liên kế vườn, 1 nhà trẻ mẫu giáo, 1 trường tiểu học, 2 trường trung học, 1 trung tâm thương mại, 5 mảng công viên cây xanh thể dục thể thao.
- Khu C: Tổng diện tích khu đất: 313.571 m2: gồm 664 căn nhà liên kế vườn, 1 chung cư 5 tầng với 640 căn hộ, 1 nhà trẻ mẫu giáo, 1 trạm y tế, 1 mảng công viên cây xanh thể dục thể thao.

Phối cảnh dự án Việt Phú Garden
Vị trí
Việt Phú Garden tọa lạc tại Xã Phong Phú, huyện Bình Chánh, Tp.HCM. Dự án có vị trí đắc địa với phía Bắc giáp đường Trịnh Quang Nghị (lộ giới 60m), phía Nam giáp đường Tân Liêm với KDC hiện hữu sầm uất (lộ giới 30m), phía Đông giáp quốc lộ 50 (lộ giới 40m), phía Tây tiếp giáp với nhánh sông Cần Giuộc. Dự án sở hữu quy hoạch giao thông đồng bộ với nhiều tuyến đường vành đai đã và đang được triển khai.

Vị trí dự án Việt Phú Garden
Hạ tầng
Tiện ích:
- Trường học
- Hạ tầng kỹ thuật hoàn chỉnh
- Bưu điện – Trạm y tế
- Trung tâm thương mại dịch vụ
- Khu công viên cây xanh – thể dục thể thao
- Hệ thống an ninh thông minh quản lý toàn bộ trong và ngoài khu vực

