Thông tin tổng quan dự án TNR Stars Thoại Sơn
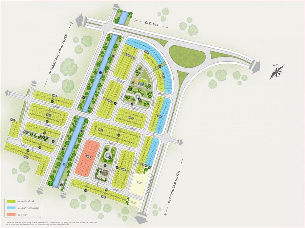
Khu đô thị TNR Stars Thoại Sơn được chủ đầu tư bởi TNR Holdings Việt Nam với quy mô 11.29ha tại thị trấn Núi Sập, Thoại Sơn, An Giang. Loại hình sản phẩm phát triển tại dự án gồm nhà liên kế, shophouse và biệt thự với diện tích đa dạng, quy hoạch đồng bộ, hiện đại. Diện tích quy hoạch hạ tầng nội khu gồm cảnh quan, đường nội bộ, cây cối chiếm 60% quỹ đất, hứa hẹn mang lại môi trường sống lý tưởng cho cư dân tương lai.
- Tên dự án: TNR Stars Thoại Sơn
- Vị trí: thị trấn Núi Sập, Thoại Sơn, An Giang
- Chủ đầu tư: TNR Holdings Việt Nam
- Quy mô: 11.29ha
- Diện tích đất ở: 48.30%
- Diện tích cây xanh, công viên, tiện ích: 18.75ha
- Mật độ đất giao thông: 32.94%
- Loại hình sản phẩm: Nhà liên kế, Nhà phố Shophouse, Biệt thự
- Số lượng: hơn 451 lô đất nền
+ 380 lô nhà liên kế diện tích từ 100-120m2
+ 53 nhà phố thương mại diện tích 120-158m2
+ 18 sản phẩm biệt thự diện tích 200-296m2

Phối cảnh tổng thể dự án TNR Stars Thoại Sơn
Vị trí

Vị trí dự án TNR Stars Thoại Sơn
Hạ tầng
Với mong muốn các cư dân tại TNR Stars Thoại Sơn được trải nghiệm một phong cách sống mới mẻ, hiện đại mà vẫn hài hòa với thiên nhiên, chủ đầu tư chú trọng trong việc "phủ xanh" dự án để tạo nên một không gian sống tuyệt vời bên cạnh những hạ tầng tiện ích, phân khu dịch vụ hiện đại:
- Hệ thống các khu công viên cây xanh, hồ điều hòa
- Quảng trường hoa trung tâm
- Đường nội bộ
- Vườn hoa, tiểu cảnh
- Khu vực an ninh được vận hành an toàn tuyệt đối
- Hệ thống trường học
- Hệ thống tập luyện thể thao với sân bóng đá, sân tennis, sân bóng rổ,…


Đài phun nước

Phố thương mại

Hệ thống tiện ích nội khu tại TNR Stars Thoại Sơn
Tiện ích ngoại khu
Với việc sở hữu vị trí đẹp có kết nối thuận tiện tới hệ thống tiện ích ngoại khu đầy đủ, TNR Stars Thoại Sơn hứa hẹn sẽ nơi hội tụ đầy đủ yếu tố để an cư bền vững:

Liên kết tiện ích ngoại khu của dự án

