TMS Grand City Phúc Yên
Thông tin tổng quan dự án TMS Grand City Phúc Yên
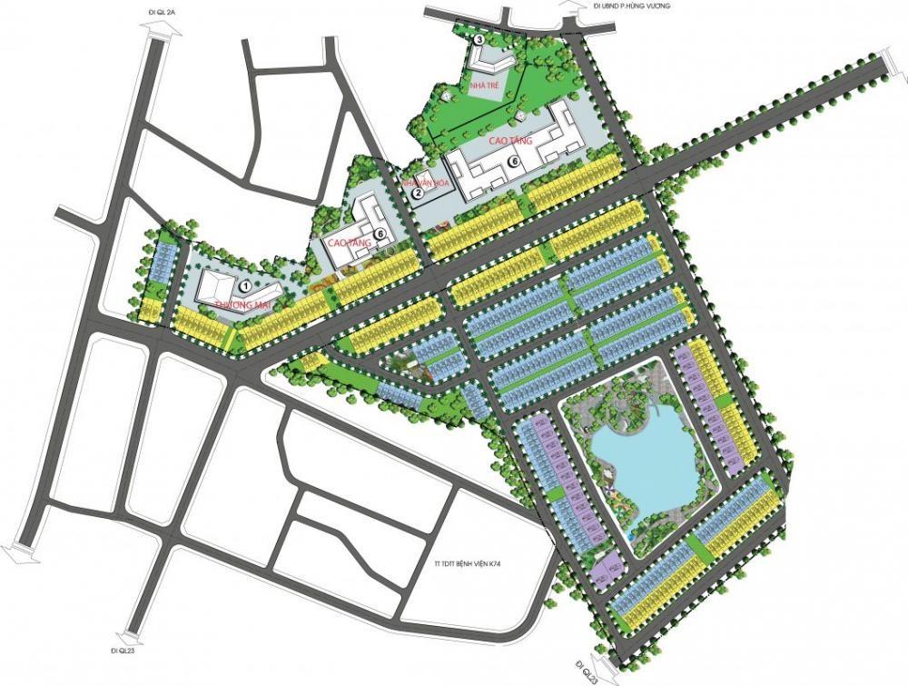
TMS Grand City Phúc Yên là một sản phẩm của chủ đầu tư TMS Group được triển khai theo mô hình khu đô thị hiện đại nằm ngay trung tâm TP. Phúc Yên với quy mô 18.57ha có tổng mức đầu tư khoảng 1.500 tỉ đồng. Dự án sẽ triển khai xây dựng 3 loại hình sản phẩm nhà ở gồm nhà phố thương mại, liền kề và biệt thự với tổng số sản phẩm là 812 căn nhà ở hiện đại gồm 787 liền kề, shophouse và 25 biệt thự - hứa hẹn sẽ là khu đô thị kiểu mẫu mang phong cách Nhật Bản với sự đồng bộ cả về tiện ích sống cũng như cơ sở hạ tầng.
Dự án được quy hoạch thành 3 phân khu với phong cách sống đậm chất xứ sở hoa anh đào là SAKURA (Niềm vui bất tận), Hồ BIWA (Đầm Rồng, Đất Vua) và MOMIJI (Đẳng cấp sống mới) - phục vụ nhu cầu về nhà ở cho hơn 3.000 người. Các sản phẩm tại dự án sẽ có nhiều loại diện tích, vị trí, giá bán khác nhau, đảm bảo phù hợp với nhu cầu, khả năng tài chính của các chủ nhân tương lai.
- Tên dự án: TMS Grand City Phúc Yên
- Chủ đầu tư: Công ty CP TMS Bất động sản (TMS Land – Thành viên Tập đoàn TMS)
- Vị trí: phường Hùng Vương, TP. Phúc Yên, tỉnh Vĩnh Phúc
- Diện tích khu đất: 18.57ha
- Đơn vị phân phối: HST LAND
- Quy mô: 812 căn nhà ở
+ 787 liền kề, shophouse
+ 25 biệt thự
- Diện tích đất ở (nhà liền kề, biệt thự song lập, đất ở cao tầng): 8.4ha
- Diện tích đất công cộng (Nhà trẻ, thiết chế văn hóa, đất chợ): 1.3ha
- Diện tích đất cây xanh, công viên, mặt nước, bãi đỗ xe: 2ha
- Diện tích đất hạ tầng kỹ thuật: 6.8ha

Phối cảnh tổng thể dự án TMS Grand City Phúc Yên
Vị trí
Khu đô thị TMS Grand City Phúc Yên tọa lạc trên địa bàn phường Hùng Vương, Phúc Yên, tỉnh Vĩnh Phúc. Dự án chỉ cách đường QL 2 khoảng 500m, xung quanh là khu dân cư tập trung đông đúc với hoạt động giao thương sầm uất... tạo điều kiện thuận lợi cho cư dân dự án khi di chuyển đến các khu vực lân cận.
Hạ tầng
TMS Grand City Phúc Yên được tư bài bản với mục tiêu mang đến cuộc sống văn minh, chất lượng với phong cách sống Nhật Bản điển hình với chuỗi 40 tiện ích vượt trội.
- Hồ điều hòa trung tâm, công viên cây xanh tạo không khí trong lành, không gian sống lý tưởng cho cư dân
- Khu thương mại mua sắm
- Nhà trẻ
- Khu vui chơi giải trí

Bể bơi

Sân chơi trẻ em

Vườn hoa

Khu thiền

Vườn dạo bộ

Hồ điều hòa
Với vị trí ngay trung tâm TP. Phúc Yên, dự án TMS Grand City sở hữu kết nối hạ tầng, giao thông vô cùng thuận lợi với hệ thống các tiện ích ngoại khu hiện hữu xung quanh như trường học, bệnh viện, siêu thị, sân vận động, trung tâm mua sắm….
- 10 phút chạy xe đến siêu thị Lan Chi, BigC, FPT Shop, Thegioididong
- 3 phút đến Bệnh viên 74 Trung Ương
- 15 phút đến Sân bay Nội Bài
- 20 phút đến Trường ĐH Sư Phạm 2, ĐH Kĩ Thuật Quân Sự….
- 1 phút đi bộ đến Sân vận động TP. Phúc Yên
- 10 phút đến TP. Vĩnh Yên
- 3 phút đến Bến xe Bus

Liên kết tiện ích của dự án

