TMS Grand City Phúc Yên
Thông tin tổng quan dự án TMS Grand City Phúc Yên
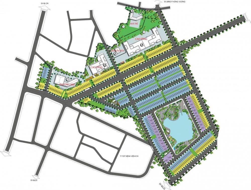
TMS Grand City Phúc Yên là một sản phẩm của chủ đầu tư TMS Group được triển khai theo mô hình khu đô thị hiện đại nằm ngay trung tâm TP. Phúc Yên với quy mô 18.57ha có tổng mức đầu tư khoảng 1.500 tỉ đồng. Dự án sẽ triển khai xây dựng 3 loại hình sản phẩm nhà ở gồm nhà phố thương mại, liền kề và biệt thự với tổng số sản phẩm là 818 căn nhà ở hiện đại gồm 315 căn nhà phố thương mại, 478 căn liền kề và 25 biệt thự view hồ cảnh quan - hứa hẹn sẽ là khu đô thị kiểu mẫu mang phong cách Nhật Bản với sự đồng bộ cả về tiện ích sống cũng như cơ sở hạ tầng.
Dự án được quy hoạch thành 3 phân khu với phong cách sống đậm chất xứ sở hoa anh đào là SAKURA (Niềm vui bất tận), Hồ BIWA (Đầm Rồng, Đất Vua) và MOMIJI (Đẳng cấp sống mới) - phục vụ nhu cầu về nhà ở cho hơn 3.000 người. Các sản phẩm tại dự án sẽ có nhiều loại diện tích, vị trí, giá bán khác nhau, đảm bảo phù hợp với nhu cầu, khả năng tài chính của các chủ nhân tương lai.
- Tên dự án: TMS Grand City Phúc Yên
- Chủ đầu tư: Công ty CP TMS Bất động sản (TMS Land – Thành viên Tập đoàn TMS)
- Vị trí: phường Hùng Vương, TP. Phúc Yên, tỉnh Vĩnh Phúc
- Diện tích khu đất: 18.57ha
- Đơn vị phân phối: HST LAND
- Quy mô: 315 căn nhà phố thương mại, 478 căn liền kề và 25 biệt thự view hồ cảnh quan
- Diện tích đất ở (nhà liền kề, biệt thự song lập, đất ở cao tầng): 8.4ha
- Diện tích đất công cộng (Nhà trẻ, thiết chế văn hóa, đất chợ): 1.3ha
- Diện tích đất cây xanh, công viên, mặt nước, bãi đỗ xe: 2ha
- Diện tích đất hạ tầng kỹ thuật: 6.8ha

Phối cảnh tổng thể dự án TMS Grand City Phúc Yên
Vị trí
- Được phê duyệt quy hoạch là khu đô thị vệ tinh của Hà Nội và vùng kinh tế trọng điểm Bắc bộ
- Giao thông liên vùng được chính phủ đầu tư mở rộng
- Đường cao tốc Hà Nội – Lào Cai (một phần dự án Xuyên Á) đi qua Vĩnh Phúc đang triển khai dự kiến hoàn thành năm 2012
- Đường vành đai 4 – vành đai giao thông đối ngoại có nhiệm vụ kết nối các tuyến quốc lộ và cao tốc hướng tâm, kết nối các khu công nghiệp, khu đô thị liền kề thủ đô Hà Nội. Dự án dự kiến triển khai vào cuối năm 2010 và hoàn thành trước năm 2020
- Đường vành đai 5 – vành đai liên kết các đô thị về tinh của Hà Nội đang được chính phủ xem xét đầu tư
- Các tuyến quốc lộ qua vùng, các đường tỉnh lộ có kế hoạch nâng cấp đang được lãnh đạo tỉnh Vĩnh Phúc trình Chính phủ xem xét
Hạ tầng
TMS Grand City Phúc Yên được tư bài bản với mục tiêu mang đến cuộc sống văn minh, chất lượng với phong cách sống Nhật Bản điển hình với chuỗi 40 tiện ích vượt trội.
- Hồ điều hòa trung tâm, công viên cây xanh tạo không khí trong lành, không gian sống lý tưởng cho cư dân
- Khu thương mại mua sắm
- Nhà trẻ
- Khu vui chơi giải trí

Bể bơi

Sân chơi trẻ em

Vườn hoa

Khu thiền

Vườn dạo bộ

Hồ điều hòa
Với vị trí ngay trung tâm TP. Phúc Yên, dự án TMS Grand City sở hữu kết nối hạ tầng, giao thông vô cùng thuận lợi với hệ thống các tiện ích ngoại khu hiện hữu xung quanh như trường học, bệnh viện, siêu thị, sân vận động, trung tâm mua sắm….
- 10 phút chạy xe đến siêu thị Lan Chi, BigC, FPT Shop, Thegioididong
- 3 phút đến Bệnh viên 74 Trung Ương
- 15 phút đến Sân bay Nội Bài
- 20 phút đến Trường ĐH Sư Phạm 2, ĐH Kĩ Thuật Quân Sự….
- 1 phút đi bộ đến Sân vận động TP. Phúc Yên
- 10 phút đến TP. Vĩnh Yên
- 3 phút đến Bến xe Bus

Liên kết tiện ích của dự án

