The Sapphire 2 - Vinhomes Ocean Park
The Sapphire 2 nằm trong phân khu Sapphire thuộc Vinhomes Ocean Park Gia Lâm. Phân khu The Sapphire 2 có quy mô 16 toà (S2.01 đến S2.19) gồm 9.600 căn hộ, với các loại hình studio, 1 phòng ngủ+1, 2 phòng ngủ+1, 3 phòng ngủ, shophouse.

Vị Trí:
The Sapphire 2 - Vinhomes Ocean Park nằm tại xã Đã Tốn, huyện Gia Lâm, Hà Nội. Dự án tọa lạc tại vị trí cửa ngõ của Đại đô thị Vinhomes Ocean Park với kết nối giao thông thuận tiện và hiện đại. Phân khu được bao bọc 4 mặt bởi các trục đường huyết mạch của khu đô thị là Đại lộ 52m, Đường Đại Dương, Đường Hải Đăng và Đường Đại Dương 2 - những trục đường kết nối các phân khu cao tầng với hệ thống đại tiện ích của dự án.
Từ phân khu, cư dân có thể dễ dàng di chuyển ra đường Lý Thánh Tông, cao tốc Hà Nội - Hải Phòng và Quốc lộ 5 để qua đó nhanh chóng kết nối với trung tâm Thủ đô và các tỉnh thành lân cận. Nằm tiếp giáp với đại học VinUni, Hồ Ngọc Trai và công viên hồ San Hô, The Sapphire 2 - Vinhomes Ocean Park cũng là phân khu sở hữu tầm view khoáng đạt và đẹp mắt tại Thành phố Biển.

Giá Bán:
Giá bán The Sapphire 2 - Vinhomes Ocean Park: Đang cập nhật.
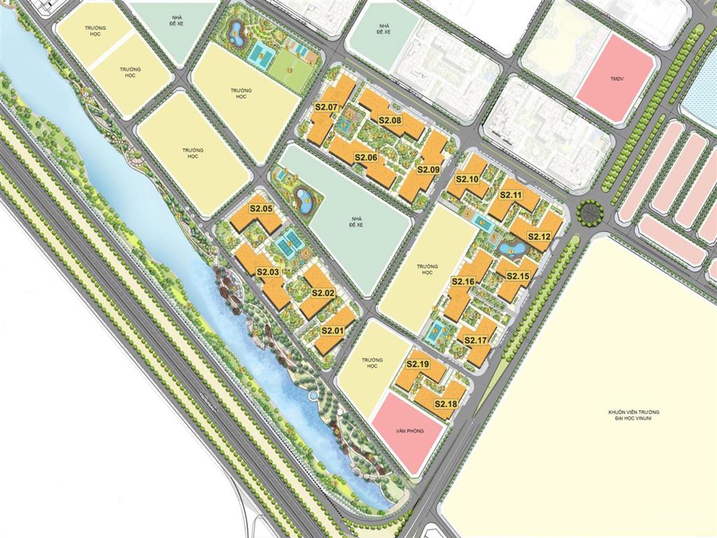
Thiết Kế - Mặt Bằng:
Quy mô: 16 tòa căn hộ, (S2.01 tới S2.19) + 1 tầng hầm.
Số lượng sản phẩm: Khoảng 9.600 căn.
Loại hình sản phẩm: Căn hộ, shophouse thương mại.
Diện tích căn hộ:
- Căn hộ Studio: Từ 30m2 - 37m2.
- Căn hộ đa năng, 1 phòng ngủ +1: Từ 46,3m2 - 47,1m2
- Căn hộ đa năng, 2 phòng ngủ +1 (1WC) : Từ 59m2 - 61m2
- Căn hộ đa năng, 2 phòng ngủ +1 (2WC) : Từ 67,4m2 - 69,4m2.
- Căn hộ 3 phòng ngủ + 2WC: Từ 79m2 - 81.5m2.
Thiết kế căn hộ chung cư:
Chữ L:
- S2.02: 22 căn/sàn, 27 tầng, 572 căn.
- S2.11 - S2.12 - S2.18 - S2.19: 22 căn/sàn, 26 tầng, 528 căn.
Chữ U:
- S2.03 - S2.06 - S2.16: 30 căn/sàn, 26 tầng, 750 căn.
- S2.07 : 30 căn/sàn, 25 tầng, 690 căn.
- S2.08 - S2.09: 30 căn/sàn, 26 tầng, 720 căn.
Chữ Z:
- S2.01 : 19 căn/sàn, 27 tầng, 494 căn.
Chữ T:
- S2.10 - S2.15: 20 căn/sàn, 26 tầng, 504 căn.
- S2.17: 20 căn/sàn, 25 tầng.
Một số hình ảnh thiết kế mặt bằng của dự án The Sapphire 2 - Vinhomes Ocean Park:




Tiện Ích:
Dự án The Sapphire 2 - Vinhomes Ocean Park có những tiện ích nội khu như:
- Công viên ven sông sinh thái.
- Sân tập luyện thể thao.
- Sân chơi cho trẻ em.
- Bể bơi trong nhà.
- Bể bơi ngoài trời.
- Trường học liên cấp VinSchool.
- Hồ Ngọc Trai.
- Biển hồ nước mặn.
- Trung tâm thương mại…



Ngoài ra, cư dân The Sapphire 2 - Vinhomes Ocean Park dễ dàng kết nối đến những tiện ích ngoại khu khác như:
- Hồ Cát Trắng 24,5ha.
- Quảng trường xương cá voi.
- Trung tâm thương mại MegaMall.
- Tòa nhà văn phòng TechnoPark.
- Đại học tinh hoa VinUni.
Ngoài việc siêu kết nối với nội khu, phân khu The Sapphire 2 - Vinhomes Ocean Park còn là phân khu liên kết trực tiếp tới đường Lý Thánh Thông (Đông Dư - Dương Xá) với Quốc Lộ 5B cùng với đó là hướng đi về lối trung tâm Hà Nội và đi về các tỉnh lân cận như Hải Phòng, Hải Dương, Hưng Yên.
Pháp Lý:
Sở hữu lâu dài.
Tiến Độ:
Đã bàn giao Quý II/2020.
Hình ảnh thực tế dự án The Sapphire 2 - Vinhomes Ocean Park:





