The Green Daisy
Thông tin dự án The Green Daisy
Liền kề The Green Daisy tọa lạc trong quần thể The Green Manor, thuộc Khu đô thị Geleximco - Lê Trọng Tấn, nằm mặt đường Lê Trọng Tấn với thiết kế 1600 lô liền kề được chia thành 4 khu A, B, C, D. Dự án là khu đô thị kiểu mẫu, dự án sở hữu đầy đủ những tiện ích phục vụ cư dân như nhà trẻ, trường học, sân tennis, sân bóng, công viên, vườn cây, hồ bơi... đem lại cho cư dân một cuộc sống vô cùng tiện nghi.
- Tên chính thức: Liền kề The Green Daisy - The Green Manor - Khu đô thị mới Geleximco Lê Trọng Tấn
- Chủ đầu tư: Công ty Xuất nhập khẩu Geleximco
- Đơn vị tư vấn và thiết kế: Công ty Tư vấn Kiến trúc và Xây dựng Hội kiến trúc sư Việt Nam
- Tổng vốn đầu tư dự kiến: Khoảng 3000 tỷ đồng
- Quy mô: 135 ha
- Diện tích khu biệt thự: 38 ha
- Mật độ xây dựng tối đa: 39,8%
- Diện tích đất trồng cây xanh: 28%

Phối cảnh dự án The Green Daisy
Vị trí
The Green Daisy bao gồm 4 khu A, B, C, D tọa lạc dọc 2 bên đường Lê Trọng Tấn nối từ trục đường Láng Hòa Lạc xuống đường Quang Trung, Hà Đông với chiều dài khoảng 7km (khu A nằm sát Thiên Đường Bảo Sơn). Dự án thuộc địa bàn huyện Hoài Đức, cách Trung tâm Hội nghị Quốc gia khoảng 5,5km về phía Đông.
- Phía Bắc giáp với Khu đô thị mới Văn Phú và tuyến đường vành đai 3,5
- Phía Nam giáp với trung tâm thương mại, siêu thị và ga Ba La Hà Đông
- Phía Tây giáp với dự án Khu nhà ở Văn Nội
- Phía Đông giáp với dự án đầu tư Khu giáo dục Nguyễn Trãi

Vị trí The Green Daisy
Hạ tầng
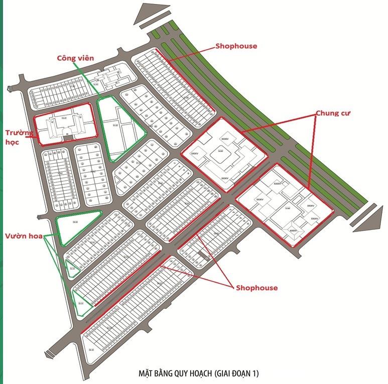
The Green Daisy có tổng diện tích đất 51.287m2 với tổng cộng 669 căn nhà liền kề. Các căn nhà liền kề diện tích từ 60-90m2, cao từ 4-5 tầng, mặt tiền rộng tối thiểu từ 5-7,2m2 với đầy đủ các hướng chính.
Khu đất xây nhà biệt thự có quy mô 92.830m2 với tổng cộng 391 căn nhà. Mỗi căn có diện tích cơ bản là 200-250m2, cao từ 3-3,5 tầng, bên cạnh đó còn có một số căn rộng tới 750m2.
Khu đất xây chung cư cao tầng kết hợp với dịch vụ có quy mô 4.380m2, bao gồm 03 tòa nhà cao từ 25-30 tầng và một tòa nhà trung tâm thương mại, siêu thị cao 18 tầng.
Bên cạnh đó, Khu đô thị mới The Green Daisy có khu mua sắm, khu dịch vụ thể thao, khu giải trí...


Các tiện ích tại dự án The Green Daisy

