The Empire - Vinhomes Ocean Park 2
Dự án Vinhomes Dream City (hay Vinhomes Ocean Park The Empire ) là khu đô thị sinh thái cao cấp do do Tập đoàn Vingroup đầu tư phát triển tại huyện Văn Giang, tỉnh Hưng Yên. Với quy mô gần 458ha, khu đô thị Vinhomes Dream City gồm các công trình nhà ở với đầy đủ các hạng mục như chung cư cao cấp, shophouse và biệt thự, đi kèm hệ thống tiện ích, cảnh quan, giao thông đồng bộ, định hướng trở thành một khu đô thị mới đẳng quốc quốc tế, biểu tượng mới của Hưng Yên.

Vị trí
Dự án khu đô thị Vinhomes Dream City được quy hoạch trên khu đất thuộc địa bàn 2 xã Long Hưng và Nghĩa Trụ, huyện Văn Giang, tỉnh Hưng Yên.

Hạ tầng - Quy hoạch
Khu đô thị Vinhomes Dream City nằm ngay cạnh mặt đường cao tốc Hà Nội – Hải Phòng mới (Quốc Lộ 5B), tiếp giáp nhiều tuyến đường giao thông huyết mạch của huyện Gia Lâm và quận Long Biên như đường 379 – đường Cổ Linh, cầu Thanh Trì theo hướng cao tốc vành đai 3 Pháp Vân.
Dự án nằm ngay gần khu đô thị Vinhomes Ocean Park và khu đô thị Ecopark, chỉ cách thành phố Hưng Yên 37km, cách trung tâm thành phố Hà Nội 15km qua cầu Vĩnh Tuy. Từ đây cư dân dễ dàng di chuyển vào trung tâm thành phố chỉ với chưa đầy 30 phút di chuyển.
Không chỉ di chuyển thuận tiện vào khu vực nội thành Hà Nội, từ vị trí Vinhomes Dream City cư dân dễ dàng kết nối với các tỉnh lân cận như Hải Dương, Hải Phòng, Quảng Ninh thông qua đường cao tốc Hà Nội – Hải Phòng, hay như tỉnh Bắc Ninh, Bắc Giang qua nút giao Cổ Linh và đường Quốc lộ 1A.
Tiện ích


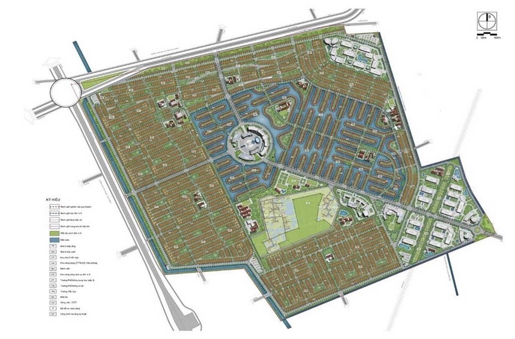
Mặt bằng - Thiết kế
Dự án Vinhomes Dream City Hưng Yên được quy hoạch trên tổng diện tích 457,92ha, tương ứng với quy mô dân số dự kiến khoảng 640.000 người. Theo dự kiến, toàn khu Vinhomes Dream City Hưng Yên sẽ có 50 tòa căn hộ chung cư cùng hàng nghìn căn shophouse, nhà liền kề, biệt thự cao cấp.

Dự án Vinhomes Hưng Yên sẽ có 73ha diện tích cây xanh và mặt nước, chưa kể tới 10ha trục cảnh quan phố đi bộ với chiều dài hơn 1km và 10ha dành cho công trình công cộng, có thể thấy Vinhomes Dream City sẽ là khu đô thị có mật độ xây dựng rất thấp khi phần lớn diện tích đất là dành cho cảnh quan đô thị.
Chủ đầu tư cũng dành tới 112ha để xây dựng các tiểu khu ở, đây là quỹ đất dành để xây dựng các phân khu thấp tầng với dòng sản phẩm chủ yếu là liền kề và biệt thự song lập, xen kẽ với công viên cây xanh và công trình công cộng cho cư dân.
Các căn biệt thự view hồ Vinhomes Dream City hướng đến thiết kế xanh, thân thiện với môi trường với tầm nhìn bao quát ra khu vực hồ cảnh quan bao quanh là mặt nước,…tạo nên không gian sống như hòa mình cùng thiên nhiên, tạo được nét riêng không đâu có được.
Bên cạnh đó phải kể tới khu chung cư cao tầng rộng 24ha nằm bao quanh công viên cây xanh rộng khoảng 20ha với điểm nhấn là hồ cảnh quan rộng 8ha có trải cát trắng ven hồ, mang đến cho cư dân một chất sống như ở biển xanh.

Ngoài ra, các phân khu liền kề, shophouse và villa đều được chủ đầu tư chú trọng trong thiết kế mặt bằng, mang lại những ưu thế vượt bậc trong từng phân khu.




