Tecco Tower Bến Thủy
Thông tin dự án Tecco Tower Bến Thủy
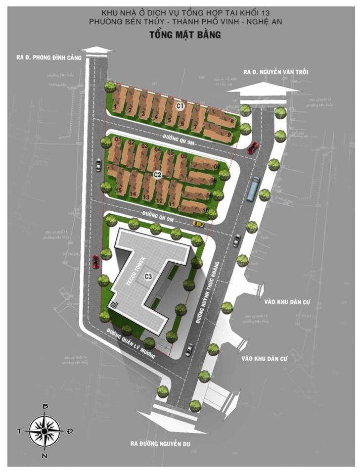
Tecco Bến Thủy là dự án căn hộ chung cư được đầu tư bởi Tổng công ty Tecco tại TP. Vinh, Nghệ An với quy mô 1 block chung cư 22 tầng và 24 lô đất liền kề. Các căn hộ tại dự án được xây dựng với mật độ 14 căn/sàn, phân bổ đều từ tầng 2 đến tầng 21 với thiết kế tiện nghi gồm nhiều loại diện tích từ 57,22-86,67m2/căn.
Cư dân Tecco Tower Bến Thủy sẽ được tận hưởng một cuộc sống hoàn mỹ nhất với không gian sống được chú trọng trong đầu tư - thiết kế - thi công, hiện đại, sang trọng mà vẫn đảm bảo gần gũi, giao hòa với thiên nhiên.
- Tên dự án: Tecco Tower Bến Thủy
- Chủ đầu tư: Tổng công ty Tecco
- Vị trí khu đất: Khối 13, phường Bến Thủy, TP. Vinh, tỉnh Nghệ An
- Quy mô: 1 block chung cư 22 tầng và 24 lô đất liền kề
- Các loại diện tích: 57,22m2 - 59,95m2 - 60,91m2 - 64,18m2 - 73,25m2 - 79,35m2 - 85,56m2 - 86,67m2
- Thiết kế: 2-3 phòng ngủ

Phối cảnh tổng thể dự án Tecco Tower Bến Thủy
Vị trí
Tecco Tower Bến Thủy tọa lạc tại khối 13, phường Bến Thủy, TP. Vinh, tỉnh Nghệ An. Dự án nằm ngay trước dự án là đường Huỳnh Thúc Kháng rộng 24m, kết nối trực tiếp với 2 tuyến đường Nguyễn Văn Trỗi và Nguyễn Du. Đây là một vị trí vô cùng thuận lợi cho giao thông đi lại nên cư dân có thể di chuyển vào trung tâm thành phố cũng như đi sang các tỉnh lân cận một cách dễ dàng thông qua cầu Bến Thủy và đường Nguyễn Du.

Vị trí dự án Tecco Tower Bến Thủy
Hạ tầng
Chủ đầu tư đã kiến tạo nên Tecco Tower Bến Thủy "có một không hai" - một tổ hợp nhà ở hiện đại và tiện nghi, vượt lên những lợi thế sẵn có của khu vực.
- Trang bị 5 thang máy chất lượng cao, đảm bảo việc lưu thông thuận tiện cho cư dân tòa nhà.
- Liền kề trường học các cấp: Trường tiểu học, Trường mầm non Bến Thủy, THCS Bến Thủy, Trường Chuyên đại Học Vinh, Đại học Vinh
- Cách chợ Vinh 2 phút chạy xe, rất tiện mua sắm hàng ngày
- Cách siêu thị Metro 7 phút di chuyển

Tiện ích dự án Tecco Tower Bến Thủy

