Thông tin tổng quan dự án Sunshine Green Iconic
Chung cư Sunshine Green Iconic là tổ hợp căn hộ chung cư cao cấp do Tập đoàn Sunshine làm chủ đầu tư. Dự án có quy mô gồm 4 tòa chung cư cao 15 tầng được thiết kế theo mô hình biệt thự trên không ấn tượng.
Đây hứa hẹn sẽ là dự án tiếp theo của chủ đầu tư này với phong cách sống tiện nghi, hiện đại nhưng không kém phần hài hòa với thiên nhiên và đảm bảo đáp ứng nhu cầu về không gian sống chuẩn mực cho cư dân thủ đô.
- Tên dự án: Sunshine Green Iconic
- Chủ đầu tư: Tập đoàn Sunshine Group
- Vị trí: phường Phúc Đồng, quận Long Biên, TP. Hà Nội
- Tổng thầu chính: Hòa Bình
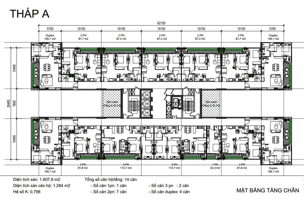
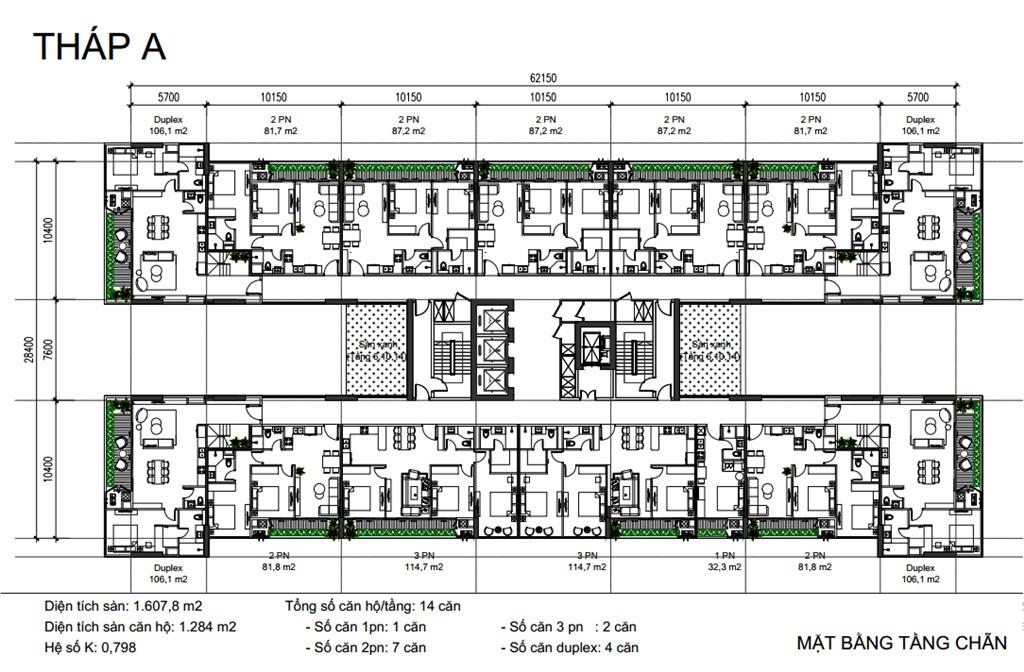
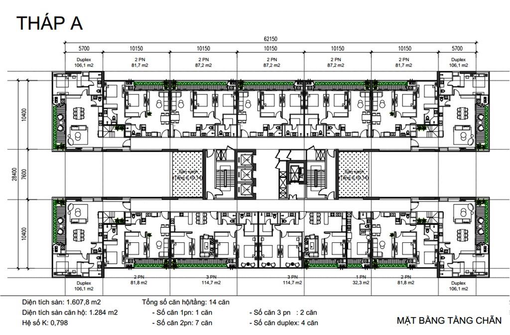
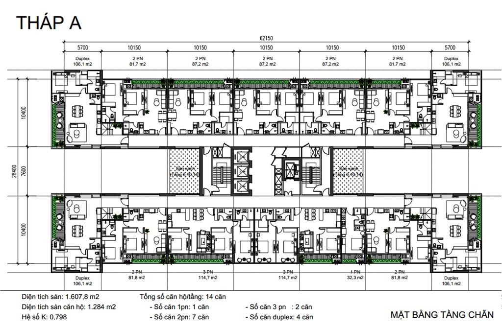
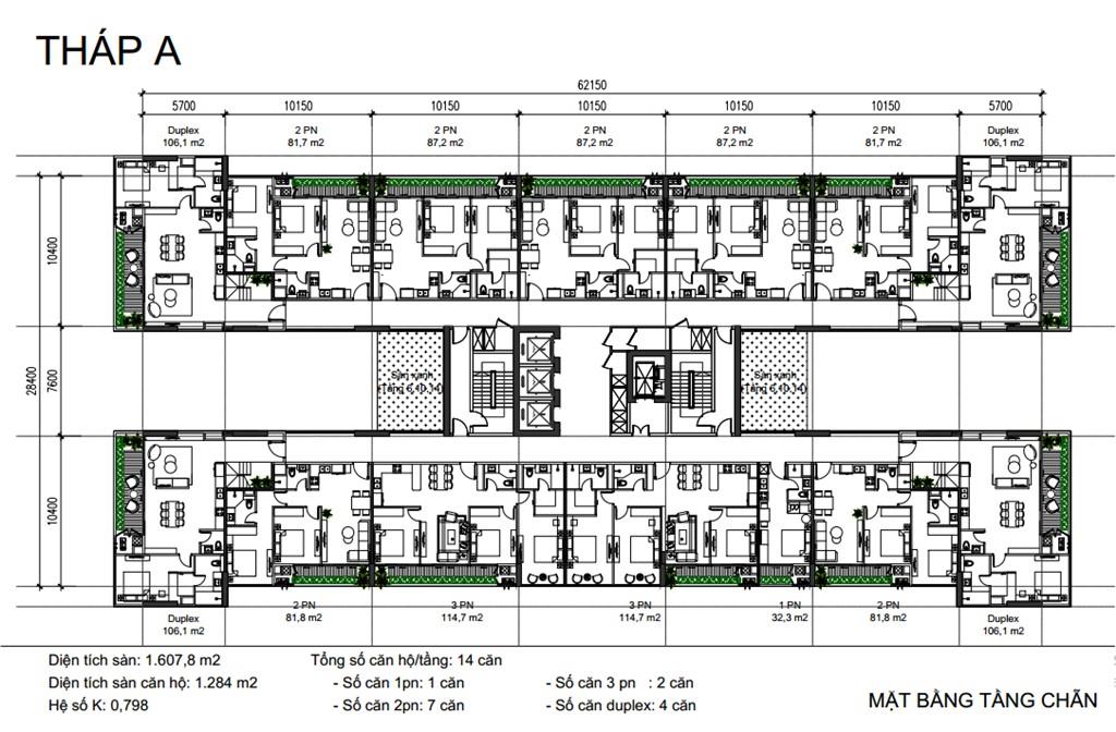
- Quy mô: 4 tòa chung cư cao 15 tầng
- Thiết kế: 2PN - 3PN - 4PN Duplex, Sky Villa
- Dự kiến bàn giao: Năm 2022
- Giá bán dự kiến: từ 38 triệu đồng/m2 (đã bao gồm VAT + KPBT)

Phối cảnh tổng thể dự án Sunshine Green Iconic
Vị trí
Sunshine Green Iconic tọa lạc tại nơi giao hòa của nhiều tuyến đường lớn tại phường Phúc Đồng, quận Long Biên, rất thuận tiện cho việc di chuyển đến khu vực trung tâm như các quận Ba Đình, Hoàn Kiếm, Đống Đa,...
Hạ tầng
Sunshine Green Iconic là sự pha trộn hài hòa giữa lối sống gần gũi với thiên nhiên và giải pháp công nghệ thời thượng. An cư tại đây, cư dân còn được tận hưởng cuộc sống năng động, hiện đại với chuỗi tiện ích nội - ngoại khu đa dạng:
- Hồ điều hòa trung tâm, thác nước
- Sân Golf mini Rooftop
- Sky bar, rooftop café
- Vườn Nhật, vườn dạo bộ trên không, vườn nướng BBQ trên mái
- Hệ thống thác tràn từ tầng 2 đổ xuống
- Đài vọng cảnh, sân tập yoga, vườn thiền
- Tiểu cảnh vườn năng lượng Garden by the Bay
- Vườn Botanic ghế nghỉ chân
- Khu thể thao ngoài trời
- Bể bơi trong nhà, hệ thống tắm khoáng nóng, sục Jacuzzi
- Spa, Gym & Fitness
- Trường mầm non Sunshine Maple Bear

Thác tràn

Hồ bơi, vườn dạo bộ


Vườn Nhật trên cao

Tiện ích sân thượng của dự án
Nhờ khả năng kết nối đa chiều, dự án cũng được thừa hưởng trọn vẹn hệ thống tiện ích hiện hữu kề bên:
- Liền kề KĐT Vinhomes Riverside, Biệt thự Vinhomes Harmony
- 1km đến trường Quốc tế BVIS Hà Nội
- 2km đến TTTM Vincom Center, Vinmart Long Biên
- 3km đến sân Golf Long Biên, sân vận động, công viên Jura Park, TTTM Aeon Mall Long Biên

