1 / 5
SkyM
Đường Hoàng Quốc Việt, Phường Hùng Thắng, Thành phố Hạ Long, Quảng Ninh. Xem bản đồ
60.19tr /m2
1,08 ha
Công ty CP Đầu tư Phát triển Syrena Việt Nam
3 tòa tháp cao 40 tầng với 1.980 căn và 53 căn Shophouse
5.287 m²
Giới thiệu
SkyM là tổ hợp thương mại dịch vụ, văn phòng và căn hộ nghỉ dưỡng tọa lạc tại khu đô thị Hạ Long Marina do Công Ty Cổ Phần Đầu Tư Phát Triển Syrena Việt Nam làm chủ đầu tư. Dự án gồm 3 tòa tháp cao 40 tầng với 1.980 căn và 53 căn Shophouse

Vị Trí
Dự án SkyM tọa lạc ngay cửa ngõ phía Tây Nam Thành phố Hạ Long thuộc KĐT Hạ Long Marina, lô đất B1.3 mặt tiền đường Hoàng Quốc Việt, phường Hùng Thắng, thành phố Hạ Long, tỉnh Quảng Ninh

Kết nối vùng:
- Nằm cạnh TTTM Lotte, dự án ICON 40
- Cách Marina Bay, CGV khoảng 1km
- Cách chợ đêm Hạ Long khoảng 3km
- Cách bến xe Bãi Cháy khoảng 4km
- Cách công viên Hạ Long khoảng 5km

Mặt Bằng - Thiết Kế
Tổng diện tích đất: 10.788m2
Diện tích xây dựng: 5.287m2
Tổng diện tích sàn: 78.123m2
3 Tòa tháp S1 - S2 - S3
Số tầng: 40 tầng nổi và 2 tầng hầm
Số lượng sản phẩm: 1.980 căn + 53 căn Shophouse
- Tòa S1: 756 căn
- Tòa S2: 468 căn
- Tòa S1: 756 căn
Loại hình sản phẩm:
- Shophouse: 53 căn 2 tầng - Diện tích 31,97m2 - 122,16m2
- Căn hộ cao cấp: 292 căn - Diện tích 30,47m2 - 194,3m2
- Căn hộ dịch vụ khách sạn: 580 căn - Diện tích 30,47m2 - 115,44m2
- Căn hộ dual-key

Mặt bằng tòa tháp
Dự án SkyM gồm 3 tòa tháp cao 40 tầng nổi + 2 tầng hầm:
- 2 tầng hầm đỗ xe
- Tầng 1 - 2: Sảnh và Shophouse
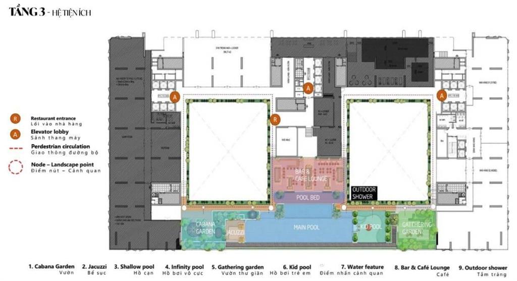
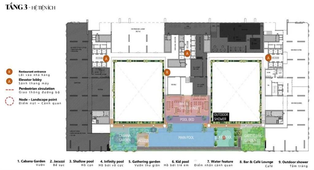
- Tầng 3: Tầng tiện ích
- Tầng 4 - 9: Tầng căn hộ
- Tầng 20: Tầng tiện ích
- Tầng 21-40: Tầng căn hộ


Mặt bằng căn hộ


Tiện Ích
Dự án SkyM gồm nhiều tiện ích nội khu đa dạng:
- Hồ bơi ngoài trời rộng 444,6m2
- 2 Hồ bơi trong nhà
- Khu sân vườn, lounge
- Sân chơi trẻ em, sân tập thể dục
- Vườn dạo, vườn nước, vườn đọc sách, vườn trà
- Gym, thiền, thư viện
- Nhà hàng, cafe, BBQ






Tin đăng
Vị trí - Hạ tầng
Xem thêm
Thiết kế - Mặt bằng
1 / 5

