Sakura Valley
Thông tin dự án Sakura Valley
Dự án Sakura Valley sẽ quyến rũ bất kì ai đặt chân đến đây. Hiện dự án sở hữu một lợi thế khá lớn là cơ sở hạ tầng tương đối hoàn thiện, môi trường sống trong lành, chan hòa với thiên nhiên. Sakura Valley được thiết kế với hơn 60% diện tích là sông, hồ và thác uốn lượn hài hòa sẽ mang đến cho Khách hàng một khung cảnh sống thơ mộng. Ngoài ra, với chính sách thanh toán và ưu đãi đặc biệt. Dự án Sakura Valley hiện đang là dự án làm mưa làm gió tại khu vực Đồng Nai.
Đại diện chủ đầu tư - LDG Group cho biết, Sakura Valley là dự án KĐT đầu tiên tại Đồng Nai thực hiện chương trình cam kết lợi nhuận cho khách hàng khi đầu tư vào đây. Theo đó, khi sở hữu đất nền tại Sakura Valley, khách hàng sẽ được cam kết cho thuê lại với giá trị sinh lời tới 60 triệu đồng một năm trong vòng 3 năm liên tiếp. Từ năm thứ 4 trở đi thì khách hàng sẽ đàm phán trực tiếp với CĐT về mức giá và thời gian cho thuê lại.

Khu đô thị Sakura Valley
Vị trí
Sakura Valley nằm ngay nút giao thông quan trọng Võ Nguyên Giáp - Quốc Lộ 1A, giao thoa giữa 3 huyện trong điểm là Long Thành, Biên Hòa và Trảng Bom. Khu vực được tỉnh Đồng Nai tập trung đầu tư mạnh về CSHT giao thông, phát triển kinh tế, an sinh xã hội đồng bộ. Sakura Valley được giới chuyên gia đánh giá sẽ là một dự án có tính thanh khoản cao nhất khu vực Đồng Nai hiện nay.
Đặc biệt dự án chỉ cách sân bay quốc tế Long Thành 10 phút di chuyển. Sân bay quốc tế Long Thành - công trình trọng điểm quốc gia nâng cánh cho kinh tế - xã hội của Đồng Nai và vùng phụ cận phát triển thần tốc. Mặt khác, Sakura Valley còn liền kề các khu Công Nghiệp, khu Công nghệ cao lớn như Khu công nghiệp Bàu Xeo, KCN Hố Nai, KCN Tam Phước trong khoảng 3km. Đặc biệt là khu công nghiệp Giang Điền với hơn 70.000 nhân công, kĩ sư và chuyên gia nước ngoài được dời từ KCN Biên Hòa 1,2 về.

Vị trí dự án Sakura Valley
Hạ tầng
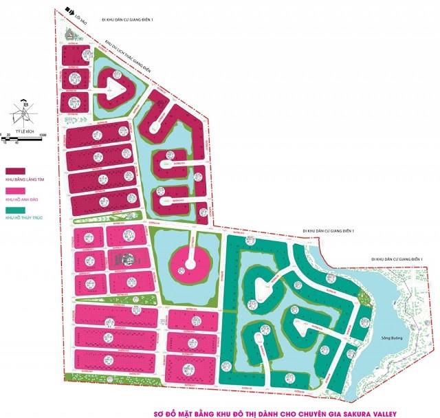
Sakura Valley có quy mô tới 37 ha với hơn 700 nền nhà phố liên kế và biệt thự, diện tích trung bình là 100m2-150m2 một nền phù hợp với đa phần nhu cầu sử dụng của khách hàng. Dự án được xây dựng theo mô hình khu đô thị biệt lập, an ninh khép kín lại được kết hợp với hạ tầng của khu du lịch sinh thái xanh.
Tính đến nay, hệ thống hạ tầng bao gồm điện, nước, đường xá nội khu của Sakura Valley đã cơ bản hoàn thiện. Các dịch vụ tiện ích cũng đã được quy hoạch đầy đủ như: trường học, bệnh viện, khu vui chơi giải trí, khu công viên cây xanh... Ngoài các tiện ích nội khu thì cư dân sinh sống ở nơi đây còn được sử dụng thêm các dịch vụ mua sắm, ẩm thực, xem phim tại Khu thương mại dịch vụ quy mô 11,257m2 ngay bên bờ sông Buông, cùng tất cả các dịch vụ sẵn có của Khu du lịch sinh thái thác Giang Điền nằm sát bên dự án.

Cơ sở hạ tầng hoàn thiện

