PiCity High Park
Thông tin tổng quan dự án PiCity High Park
PiCity High Park là tổ hợp căn hộ chung cư được xây dựng theo kiến trúc hiện đại nhưng vẫn đảm bảo yếu tố hài hòa giữa mảng xanh với chuỗi tiện ích, hướng đến việc ưu tiên không gian sống của cư dân cũng như sự phát triển của thế hệ tương lai.
Quỹ đất triển khai dự án có diện tích 8.6ha, sau khi hoàn thiện, dự án sẽ có diện mạo là một khu căn hộ cao tầng với 6 block gồm 2577 căn hộ cùng 2 trường học nội khu và đầy đủ các tiện ích sống đẳng cấp nhất đảm bảo cho các chủ nhân tương lai có thể an tâm tận hưởng cuộc sống một cách trọn vẹn.
- Tên dự án: PiCity High Park
- Vị trí: Số 9A, đường Thạnh Xuân 13, phường Thạnh Xuân, quận 12, Tp.HCM
- Chủ đầu tư: Công ty TNHH MTV Đầu Tư Phát Triển Gia Cư
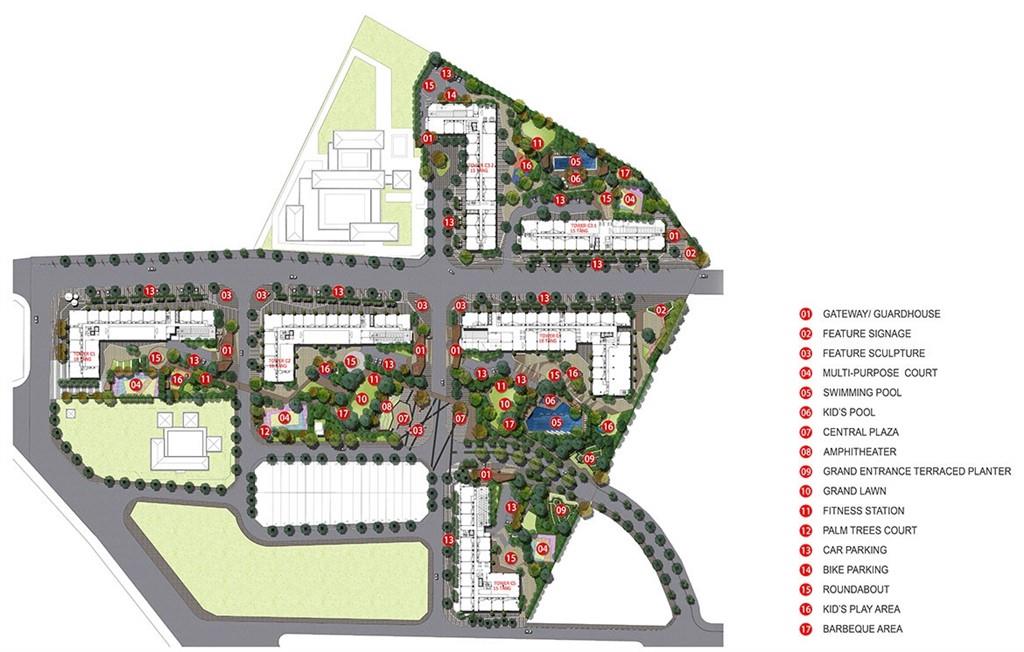
- Đơn vị thiết kế: Humphreys & Partners
- Đơn vị giám sát: Belt Collins
- Diện tích đất: 8.6ha
- Mật độ xây dựng: 20%
- Số tầng: 15-18 tầng (2 tầng hầm)
- Số block: 6 block
- Tổng số căn hộ: 2.577 căn
- Thời gian bàn giao: 2021
- Ngân hàng cho vay: Nam Á Bank

Phối cảnh tổng thể dự án PiCity High Park
Vị trí
Chung cư PiCity High Park Thạnh Xuân tọa lạc tại số 9A, đường Thạnh Xuân 13, phường Thạnh Xuân - ngay trung tâm hành chính Quận 12, gần QL1A nên rất thuận tiện để di chuyển về các quận Gò Vấp, Tân Bình, Thủ Đức cũng như Bình Dương.

Vị trí dự án PiCity High Park
Hạ tầng
PiCity High Park được quy hoạch, phát triển đồng bộ với hệ thống tiện ích - dịch vụ nội khu vô cùng chất lượng:
- Hồ bơi tràn bờ
- Trung tâm Thương mại
- Công viên cây xanh
- Phòng tập gym
- Khu giải trí trẻ em
- Nhà cộng đồng
- Khu spa chăm sóc sắc đẹp
- Khu nhà hàng, café
- Hệ thống trường học, Nhà trẻ

Công viên

Hồ bơi

Khu công viên nội khu

Nhà hàng

Spa

Khu tập gym

Khu vui chơi trẻ em

Hệ thống tiện ích nội khu tại PiCity High Park
Tiện ích ngoại khu
Bên cạnh những tiện ích kể trên, cư dân Pi City còn có thể tiếp cận nhanh chóng với các dịch vụ hiện hữu của khu vực xung quanh để phục vụ nhu cầu thiết yếu trong cuộc sống hiện đại của bản thân và gia đình:
- 700m đến UBND Quận 12
- 900m đến chợ Hiệp Thành
- 5 phút đến Trường THCS Nguyễn Trung Trực
- 10 phút đến Bệnh viện Quận 12, siêu thị Coop Mart Nguyễn Ảnh Thủ
- 15 phút đến công viên phần mềm Quang Trung

Liên kết tiện ích của dự án PiCity High Park

