Phúc Long Garden
Thông tin dự án Phúc Long Garden
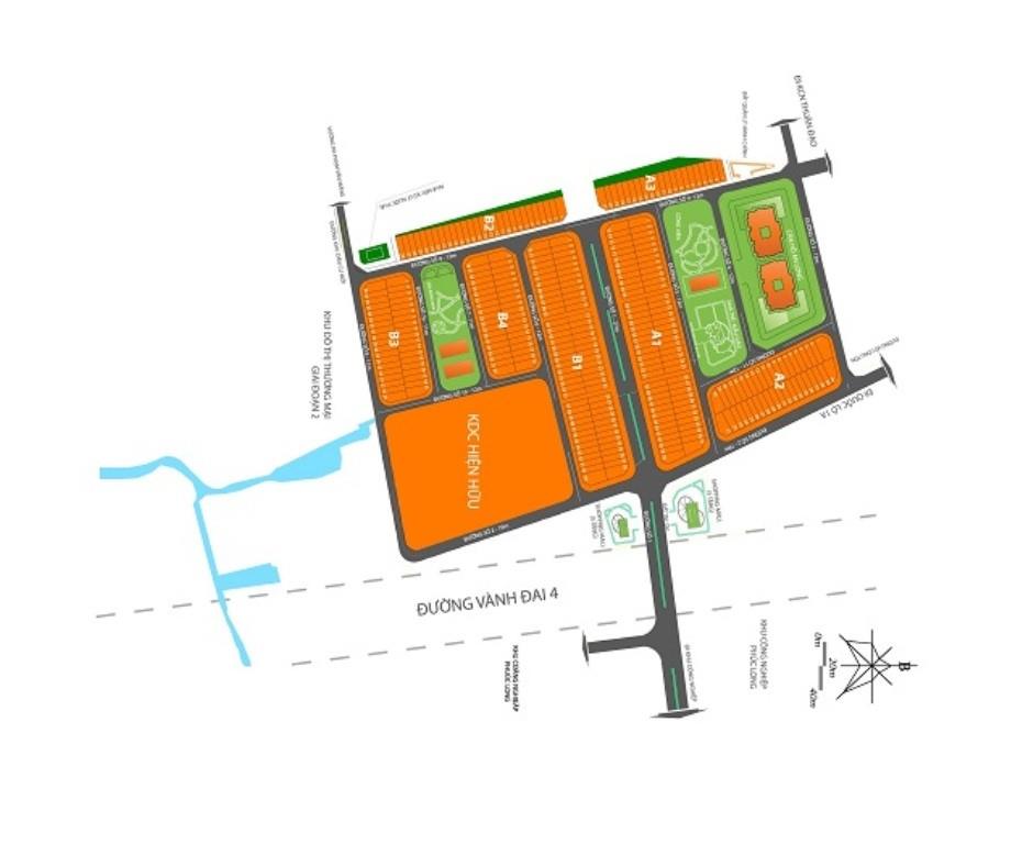
Phúc Long Garden tọa lạc ngay mặt tiền Quốc lộ 1A Thị trấn Bến Lức (Long An), nằm trong quy hoạch tổng thể KĐT Công Nghiệp Thương Mại Dịch Vụ Phúc Long 441ha, bao gồm 167 nền nhà phố liên kế (diện tích 5x20 và 6x20m).
Phúc Long Garden nằm ở vị trí vàng của trung tâm đô thị Bến Lức, cửa ngõ chiến lược về kinh tế thương mại và dịch vụ phía Tây Sài Gòn, kết nối Tp.HCM với các tỉnh miền Tây và Đồng Bằng Sông Cửu Long.
- Tên dự án: Phúc Long Garden
- Địa điểm: mặt tiền quốc lộ 1A và vành đai 4, trung tâm thị xã Bến Lức, Tỉnh Long An
- Chủ đầu tư: Công ty TNHH Đầu tư và Xây dựng Phúc Long
- Đơn vị phân phối độc quyền: Công ty Cổ phần Địa Ốc Thắng Lợi
- Diện tích: 5mx20m, 6x20
- Giá bán: từ 3,5 – 4 triệu/m2
- Hạ tầng hoàn thiện, đường nhựa 11m - 27m
- Pháp lý: Sổ đỏ trao tay
- Xây dựng và kinh doanh ngay
- Dân cư hiện hữu đông đúc

Phối cảnh tổng thể dự án Phúc Long Garden
Vị trí
Phúc Long Garden tọa lạc tại Quốc lộ 1A, thị trấn Bến Lức, Bến Lức, Long An. Dự án có kết nối thuận tiện đến nhà ga Metro 3a kéo dài 19,8km, dự kiến hoàn thành giai đoạn 1 trong 2020. Ngay khi tuyến metro 3a đưa vào sử dụng, thời gian di chuyển từ Tp.HCM về TP Tân An sẽ được rút ngắn còn khoảng 30 phút, tạo điều kiện vận chuyển hàng hóa dễ dàng nhanh chóng, tiết kiệm chi phí cho cả xuất khẩu lẫn nội địa.
Từ dự án, việc di chuyển về trung tâm Tp.HCM chỉ mất 15 phút thông qua tuyến quốc lộ 1A hoặc đường Trần Đại Nghĩa. Vành đai giao thông rộng rãi và di chuyển dễ dàng giúp quý khách vừa an tâm thụ hưởng những tiện ích hiện đại của khu trung tâm sầm uất mà vẫn tránh xa được những ồn áo náo nhiệt với môi trường tự nhiên xanh mát.
Kết hợp tất cả những lợi thế trên, nhà đầu tư sẽ yên tâm với sự phát triển bền vững của Phúc Long Garden trong tương lai.
- Phía Bắc giáp Quốc lộ 1A
- Phía Nam giáp nhánh sông Vàm Cỏ Đông
- Phía Đông giáp đường vành đai 4
- Phía Tây giáp khu đô thị Phúc Long GĐ 2
Nằm cạnh các tuyến đường lớn như: tuyến đường huyết mạch:
- Mặt tiền đường vành đai 4
- Mặt tiền quốc lộ 1A
- Đại lộ Võ Văn Kiệt
- Cao tốc Tp.HCM - Trung Lương 3km
- Cao tốc Bến Lức- Long Thành 1,5km
- Ga Metro Bến Lức 500m

Sơ đồ vị trí dự án Phúc Long Garden
Hạ tầng
Hội đủ 3 yếu tố tam tài “cận thị - cận giang - cận lộ” (Chợ truyền thống Bến Lức- Sông Vàm Cỏ Đông - Tuyến Quốc lộ 1A), Phúc Long Garden kết nối với hàng loạt tiện ích sáng giá để phát triển một khu đô thị hiện đại theo tiêu chuẩn Singapore. Trong đó, mọi nhu cầu tất yếu của cuộc sống hàng ngày đều được chủ đầu tư Phúc Long quan tâm và phát triển toàn diện.
- Cách Bệnh viện Đa khoa Bến Lức 1km
- TT Hành chính Bến Lức 1km
- Trường học các cấp bán kính 1,5km
- Cách chợ truyền thống Bến Lức 10 phút đi xe
- Cách KCN Phúc Long khoảng 2km

Kết nối tiện ích hiên hữu
Bên cạnh đó, dự án còn sở hữu chuỗi dịch vụ tiện ích hiện hữu trong vòng bán kính 500m gồm ngân hàng, TT điện máy, chợ, công viên, khu phức hợp thể dục thể thao, sân bóng... đảm bảo phục vụ tốt nhất cho cuộc sống hiện đại của các chủ nhân tại dự án.
Đặc biệt, lưới điện quốc gia dọc theo Quốc lộ 1A kết hợp với hệ thống trung thế trong các KCN liền kề đáp ứng tối đa nhu cầu sử dụng điện phục vụ sinh hoạt và sản xuất cho các cụm cư dân. Chi phí xây dựng thấp với địa chất hoàn hảo,… là những ưu điểm khi nhà đầu tư tìm đến với Phúc Long Garden.

Hạ tầng hoàn thiện

