Nhà Ở Xã Hội Square Park Hải Dương
Square Park Hải Dương (tên khác: Đầu tư xây dựng nhà ở xã hội Square Park phía Nam TP Hải Dương) là dự án chung cư nhà ở xã hội do Công ty CP Đầu tư Bất động sản Thành Đông làm chủ đầu tư quy mô 1,9ha gồm 4 toà chung cư cao 8 tầng và 43 căn nhà liền kề với tổng diện tích sàn xây dựng khoảng 32.310m2

Vị Trí:
Nhà ở xã hội Square Park Hải Dương tọa lạc tại Khu đô thị mới phía Nam thành phố Hải Dương (Phân khu 2), thuộc địa giới hành chính xã Liên Hồng và xã Gia Xuyên, Huyện Gia Lộc, Thành phố Hải Dương. Giao giữa trục đường 62 m kéo dài kết nối trung tâm TP Hải Dương với tuyến đường cao tốc Hà Nội – Hải Phòng và tuyến quốc lộ 37 hướng đi trung tâm thị trấn Gia Lộc.


Thiết Kế - Mặt Bằng:
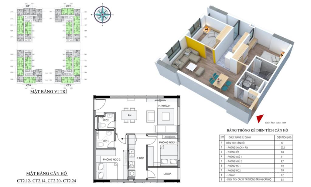
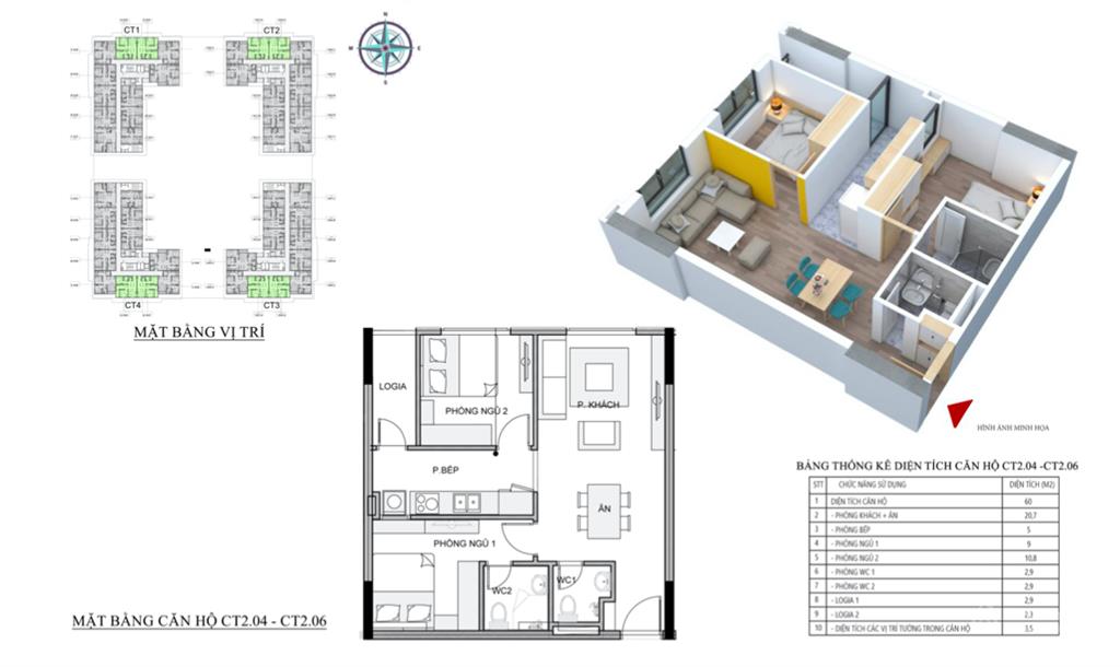
Quy mô: 1,9ha có 4 toà chung cư cao 8 tầng và 43 căn nhà liền kề. Trong đó:
- Tổng diện tích sàn xây dựng khoảng 32.310m2.
- Gồm 4 tòa (tòa CT1, tòa CT2, tòa CT3, tòa CT4).
Số lượng sản phẩm: 336 căn (NOXH).
Loại hình sản phẩm: shophouse, căn hộ (NOXH) và liền kề.
Diện tích sản phẩm:
- Căn 2 phòng ngủ 1 vệ sinh: Từ 45m2.
- Căn 2 phòng ngủ 2 vệ sinh: Từ 57m2 - 60m2 - 67m2.
- Căn hộ 3 phòng ngủ 2 vệ sinh: Từ 77m2.





Tiện Ích:
Dự án Nhà Ở Xã Hội Square Park Hải Dương có những tiện ích nội khu như:
- Khu thể thao phức hợp.
- Hồ điều hòa.
- Trung tâm thương mại.
- Công viên giải trí.
- Trung tâm tổ chức Hội nghị.
- Cửa hàng tiện ích 24/07.
- Bãi đỗ xe tập trung.
- Khu trung tâm.
- Khu vui chơi trẻ em.
- Khu tập thể dục ngoài trời.
- Trung tâm thể thao.
- Khu thể thao phức hợp.
- Khu hoạt động ngoài trời.
- Khu giáo dục.
- Khu phố thương mại.
- Công viên công cộng.
- Khu đồ dùng thể thao.


Ngoài ra, cư dân của dự án Nhà Ở Xã Hội Square Park Hải Dương thuận lợi di chuyển đến các vùng lân cận như:
- Cách trường THPT Nam Hải Dương 900m.
- Cách bệnh viện Nhi Hải Dương 1Km.
- Cách thị trấn Gia Lộc 1Km.
- Cách trung tâm thương mại Aeon Mall 1Km (đang xây).
- Cách trụ sở công an thành phố 1.5Km (đang xây).
- Cách trường đại học Hải Dương 2Km.
- Cách nút giao cao tốc Hà Nội Hải Phòng 3Km.
- Cách khách sạn 25 tầng Nam Cường 5Km.
Pháp Lý:
Đang cập nhật.
Tiến Độ:
Hình ảnh thực tế dự án Nhà Ở Xã Hội Square Park Hải Dương:




