New Space
Thông tin dự án New Space Giang Biên
Căn hộ New Space Giang Biên được xây dựng với tiêu chí bình dị tới thân thương, đem lại một không gian thoáng mát, an bình. Dự án tọa lạc ở lô đất N09 phường Giang Biên, quận Long Biên, Hà Nội. Tòa nhà nằm ngay mặt đường 48m, trục giao thông nối liền Khu đô thị Việt Hưng, khu chung cư New Space, Vincom Reverside ra đường Ngô Gia Tự. New Space Giang Biên như một điểm nhấn thanh bình và thân thuộc giữa một đô thị náo nhiệt.
- Tên dự án: New Space Giang Biên
- Chủ đầu tư: Công ty CP Đầu tư và Phát triển Nhà
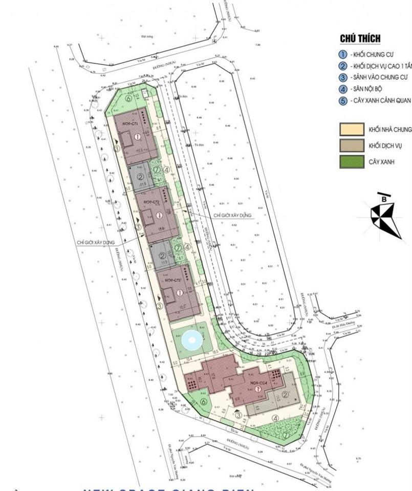
- Quy mô: 3 block chung cư 5 tầng (CC1; CC2; CC3) và block chung cư 9 tầng (CC4) gồm 124 căn hộ
- Tổng diện tích: 15.358m2
- Diện tích xây dựng: 8031m2
- Mật độ xây dựng: 37%.
- Thời gian bàn giao nhà dự kiến:
+ Khối 3 tòa 5 tầng: Quý I/2016
+ Khối 9 tầng: Quý II/2016

Phối cảnh tổng thể New Space Giang Biên
Vị trí
Chung cư New Space Giang Biên tọa lạc tại lô đất N09 phường Giang Biên, quận Long Biên, Hà Nội, nằm ngay mặt đường 48m, trục giao thông nối liền Khu Đô thị Việt Hưng, khu chung cư New Space, Vincom Reverside ra đường Ngô Gia Tự.

Vị trí dự án New Space
Hạ tầng
New Space Giang Biên có nhiều tiện ích vượt trội được đầu tư xây dựng theo tiêu chuẩn quốc tế, đáp ứng nhu cầu phong phú của cư dân, đem tới không gian sống đẳng cấp, đầy đủ tiện nghi với hệ thống tiện ích từ cửa hàng tiện lợi 24h, hồ bơi, nhà thuốc, phòng tập Gym, nhà hàng, ngân hàng, cửa hàng cafe, sân chơi trẻ em,...
Bên cạnh đó, diện tích xây dựng của dự án chỉ chiếm 37%, còn lại là không gian sống xanh được chủ đầu tư chăm chút. Khu vực sân chơi nội bộ và vườn cây xanh được thiết kế đa dạng các loài cây, hoa, bãi cỏ,... mang đến sự thư giãn tuyệt đối cho các cư dân. Ngoài ra, hệ thống thang máy an toàn Mitsubishi - Nhật Bản có tải trọng 1000kg phục vụ cho nhu cầu lớn của cư dân.




Tiện ích đủ đầy và đa dạng

