Minh Phương
Thông tin tổng quan dự án Khu đô thị Minh Phương
- Tên dự án: Đầu tư xây dựng hạ tầng kỹ thuật khu nhà ở và dịch vụ thương mại Minh Phương, thành phố Việt Trì, tỉnh Phú Thọ.
- Mục tiêu chính: Xây dựng hệ thống hạ tầng kỹ thuật của khu nhà ở và dịch vụ thương mại.
- Tổng mức đầu tư: 276.216.417.000 đồng.
- Nguồn vốn:
+ Nguồn vốn đầu tư xây dựng: Vốn tự có, vốn vay và vốn huy động khác.
+ Nguồn vốn thanh toán: Tạo bởi quỹ đất giao cho Chủ đầu tư.
- Hình thức đầu tư: Đầu tư xây dựng mới hệ thống hạ tầng kỹ thuật đồng bộ.
- Hình thức quản lý: Chủ đầu tư được giao trực tiếp quản lý Dự án.
- Tiến độ thực hiện: 3,0 năm (từ tháng 1 năm 2006 đến tháng 12 năm 2008)
Quy mô giao đất:
- Tổng diện tích: 48,06 ha.
- Công trình công cộng: 24,66 ha.
- Nhà ở và công trình DVTM: 23,4 ha.

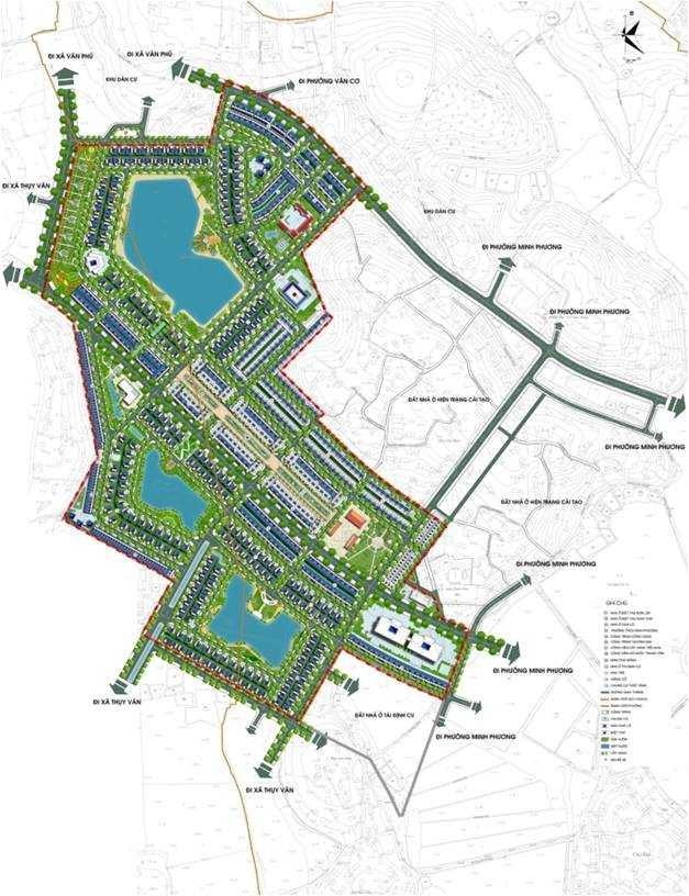
Phối cảnh tổng thể KĐT Minh Phương
Vị trí
Khu đô thị Minh Phương thuộc phường Nông Trang, xã Minh phương, thành phố Việt Trì, tỉnh Phú Thọ.
Hạ tầng
Quy mô dân số: Khi dự án bước đầu đưa vào sử dụng - tổng số các hộ dân khoảng 2.100 hộ; dân số khoảng 9.500 người.
Phân khu chức năng:
+ Khu công cộng: Diện tích: 42.054 m2.
- Khu Mẫu giáo + Trường học: 19.838 m2.
- Uỷ Ban Nhân dân: 2.015 m2.
- Công an Phường: 2.572 m2.
- Trạm Y tế Phường: 2.584 m2.
- Sinh hoạt Công cộng: 856 m2.
- Bãi đỗ xe: 3.623 m2.
- Dịch vụ Thương mại: 5.517 m2.
- Trung tâm Thương mại: 5.049 m2.
+ Khu đất xây nhà ở: Diện tích 221.215 m2.
- Khu đất xây nhà chung cư:
Quy mô đất xây dựng: 14.244 m2.
- Khu đất xây nhà Thành phố cấp:
Quy mô đất xây dựng: 2.840 m2.
- Khu đất nhà tái định cư:
Quy mô đất xây dựng: 7.403 m2.
- Khu đất xây nhà biệt thự, nhà vườn
Quy mô đất xây dựng: 30.779m2 (Bố trí 113 ô đất)
- Khu đất xây nhà ở liền kề:
Quy mô đất xây dựng : 165.949 m2 (Bố trí 1668 ô đất)

Hệ thống hạ tầng kỹ thuật:
Hệ thống giao thông:
Diện tích chiếm đất 13,56ha. Tổng chiều dài hệ thống giao thông: 10.210 m
Đường trục chính: Tổng chiều dài 1.507,92m.
- Đường trục chính loại 1: Chiều dài 1.068,66m
( Mặt cắt ngang 36m, lòng đường 2 x 7,5m giải phân cách 9m, vỉa hè 2 x 6m ).
- Đường trục chính loại 2: Chiều dài 440 m ( Mặt cắt 22,5m, vỉa hè 2 x 6m ).
Đường nhánh chiều dài: 461,50m.
- Đường nhánh loại 1: Chiều dài 353,2m ( Mặt cắt ngang 20,50m, lòng đường 10,50m; vỉa hè 2 x 5 m ).
- Đường nhánh loại 2 : Dài 1.216,05m ( Lòng đường 7,50m, vỉa hè 2 x 3m ).
Đường tiểu khu: Tổng chiều dài 6.951,69m
- Đường tiểu khu 1: Chiều dài 6.432,8m ( Mặt cắt ngang 11,50m, lòng đường 5m, vỉa hè 2 x 3m ).
- Đường tiểu khu 2: Chiều dài 518,89m ( Mặt cắt ngang 9m, lòng đường 5m, vỉa hè 2 x 1,50m ).
Kết cấu cơ bản:
- Mặt đường: Kết cấu áo đường gồm 4 lớp, lớp hạt mịn chiều dày 5cm, lớp hạt trung 7cm, cấp phối đá dăm loại 1 từ 25¸30cm, cấp phối đá dăm loại 2 từ 30¸45cm, xử lý nền đất chọn K98) . Đảm bảo mô duyn đàn hồi yêu cầu Ey/c ≥ 1870 daN/cm2 đối với đường trục chính, Ey/c ≥ 1730 daN/cm2 đối với đường nhánh, Ey/c ≥ 1190 daN/cm2 đối với đường tiểu khu,
- Vỉa hè lát bằng gạch Blook mầu trên nền cát đệm.
Hệ thống thoát nước:
Hệ thống thoát nước mưa:
Mạng lưới thoát nước mưa được bố trí trên vỉa hè, dọc theo đường giao thông xung quanh các lô đất, đổ vào trục thoát nước chính của khu vực. Hướng thoát nước chung từ Đông Bắc xuống Tây Nam.
Hệ thống thoát nước thải:
Nước thải sinh hoạt trong các khu được xử lý cục bộ tại các bể tự hoại gia đình tự xây kết cấu bê tông cốt thép, cống bê tông D300 - D400 đến D500 - D600
- Ống thoát nước thải sinh hoạt được đặt trên vỉa hè cách mép trong vỉa hè 0,80m và mương đặt giữa 2 dãy nhà của lô.
Hệ thống cấp nước:
- Nguồn nước được lấy tại đường ống D300 từ nhà máy nước Việt Trì thông qua điểm đấu nối tại đường Hùng Vương.
- Ống cấp nước dùng ồng HDPE, nằm dưới vỉa hè, độ sâu đặt ống 0,50m so với cốt vỉa hè:
Hệ thống cấp điện:
+ Nguồn điện: Nguồn điện được cấp từ mạng lưới cấp điện Quốc gia thông qua mạng lưới cấp điện của thành phố Việt Trì.
- Đoạn tuyến cáp vượt đường, cáp vỉa hè được luồn trong ống thép chịu lực F 150mm chôn ở độ sâu 1m so với mặt đất.
+ Mạng cấp điện sinh hoạt:
Mạng cáp 0,4 KV cáp điện đặt trong ống PVC chôn trực tiếp dưới đất, độ sâu 0,70m. Các tủ điện phân phối được bố trí cáp trên vỉa hè dọc tuyến cáp. Đối với khu nhà liền kề sử dụng cáp treo trên cột bê tông cao 6m, trong khoảng các giữa 2 dãy nhà.
+ Mạng cấp điện chiếu sáng:
- Tiêu chuẩn chiếu sáng: 0,60 - 0,80 Cd/m2, sử dụng hỗn hợp loại đèn sợi đốt và đèn cao áp thuỷ ngân.
- Cáp điện đặt trong ống PVC chôn trực tiếp độ sâu đặt cáp 0,70m.
- Chiếu sáng ở tâm các trục đường trung tâm (Đường rộng 36m) sử dụng cột thép cao 8,50m, năm bóng đèn sáng và có chụp đèn, hai bên đường sử dụng cột thép cao 10m liền cần đèn, bóng cao áp thuỷ ngân ánh sáng trắng.
- Các đường khác sử dụng cột thép cáo 10m đèn cao áp thuỷ ngân ánh sáng trắng.
- Khoảng cách các cột đèn từ 25m - 36m tuỳ theo mặt cắt đường.
- Tim cột đèn đặt cách bó vỉa 0,70 - 1m đối với các vỉa hè rộng 3m có mương thoát nước mưa B700 chạy qua.
- Tim cột cách bó vỉa 0,70 - 1m đối với các vỉa hè rộng 5m - 6m.
Hệ thống thông tin liên lạc:
Hệ thống thông tin liên lạc của khu đô thị được thiết lập hoà mạng với hệ thống thông tin liên lạc của thành phố Việt Trì.
Hệ thống phòng chống cháy nổ:
- Hệ thống cấp nước chữa cháy được kết hợp với mạng cấp nước sinh hoạt. Các trụ cứu hoả kiểu trụ nổi đặt trên vỉa hè trên các tuyến ống có đường kính ≥ D100, lưu lượng 20lít/s, cột áp tối thiểu 10m cấp liên tục trong nhiều giờ, khoảng cách mỗi trụ tối đa 150m, được lắp đặt hoàn chỉnh dọc các đường trong khu vực đảm bảo đủ lượng nước cứu hoả.
Cảnh quan đô thị : Quy mô đất xây dựng là 5,89 ha.
- Cây xanh công cộng được tổ chức dạng công viên thề dục thể thao, quy mô nhỏ và hồ điều hoà sinh thái phục vụ cho toàn khu đô thị.
- Các vườn cây nhỏ tại các khu vực không xây dựng công trình.
- Trên các trục đường trung tâm của khu đô thị, kết hợp bố trí các không gian quảng trường nhỏ và điểm tượng đài tạo cảnh quan đô thị và phục vụ nghỉ ngơi.

