King Crown Village
Thông tin tổng quan dự án
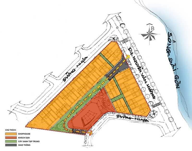
King Crown Quận 2 sở hữu vị trí tuyệt đẹp bên bờ sông Sài Gòn, là một sản phẩm Do Tập đoàn Bamboo Capital làm chủ đầu tư. Dự án được triển khai theo mô hình nhà phố thương mại trên khu đất rộng 20.000m2 với quy mô 43 căn shophouse thiết kế hiện đại.
Các sản phẩm shophouse tại King Crown Village đều sở hữu diện tích rộng rãi từ 108m2, kết cấu 4,5 tầng gồm 1 trệt, 3 lầu, 1 lửng, đem đến sự thoải mái, tiện nghi tối đa cho các chủ nhân tương lai.
- Tên dự án: King Crown Village
- Chủ đầu tư: Tập đoàn Bamboo Capital
- Vị trí: số 200, Đường Nguyễn Văn Hưởng, Quận 2, Tp.HCM
- Loại hình phát triển: shophouse
- Diện tích khu đất: 20.000m2
- Quy mô: 43 căn shophouse
- Diện tích nền nhà phố: 108 – 294m2/căn
- Thiết kế: 1 trệt, 3 tầng lầu và 1 tầng lửng
- Giá bán dự kiến: 30 tỉ/căn
- Hình thức sở hữu: vĩnh viễn với người Việt Nam, 50 năm đối với người nước ngoài

Phối cảnh dự án King Crown Village
Vị trí
King Crown Village nằm ngay mặt tiền đường Nguyễn Văn Hưởng, phường Thảo Điền, Quận 2, Tp.HCM. Với tầm nhìn thoáng, rộng ra sông Sài Gòn cùng vị trí đắc địa, kết nối giao thông thuận lợi - chỉ cần 20-30 phút đi xe là có thể tiếp cận đến các quận trung tâm và sân bay Tân Sơn Nhất, King Crown Village không chỉ lý tưởng để an cư lâu dài mà còn rất phù hợp cho kinh doanh, buôn bán.
Hạ tầng
Nhà Phố King Crown Quận 2 được chú trọng phát triển nhiều hạng mục tiện ích - dịch vụ nhằm đảm bảo mang đến cuộc sống với chất lượng tốt nhất cho mọi khách hàng:
- Hồ bơi
- Vườn cây xanh
- Nhà hàng, khách sạn tiêu chuẩn 5 sao
- Hệ thống cảnh báo, phòng cháy chữa cháy hiện đại
- Hệ thống trường học
- Bệnh viện
- An ninh đảm bảo 24/7

Tiện ích ngoại khu
- 20 phút chạy xe đến với khu đô thị mới Thủ Thiêm và Quận 1
- 27 phút đến sân bay Tân Sơn Nhất

Các tiện ích của dự án

