Thông tin tổng quan dự án Khu đô thị Nam Phúc Yên
Khu đô thị Nam Phúc Yên tại phường Nam Viêm, TP. Phúc Yên, tỉnh Vĩnh Phúc. Dự án có tổng diện tích 17,5ha, giới thiệu ra thị trường các sản phẩm chung cư, liền kề, biệt thự, shophouse, hứa hẹn sẽ đáp ứng nhu cầu giãn dân tại khu vực phường Nam Viêm.
- Tên dự án: Khu đô thị Nam Phúc Yên
- Chủ đầu tư: Công ty CP Tây Đức
- Vị trí: Phường Nam Viên, TP. Phúc Yên, tỉnh Vĩnh Phúc
- Đơn vị phân phối: Công ty CP BĐS Địa ốc Hưng Phát Holdings
- Diện tích: 17,5ha
- Loại hình sản phẩm: Chung cư, liền kề, shophouse, biệt thự
- Tỷ lệ xây dựng: 45,21%
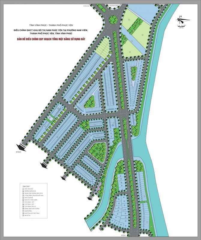
- Đất ở: 67.046,2m2, gồm nhà liền kề, biệt thự đơn lập và nhà ở thấp tầng
- Đất công trình công cộng: 13.957,6m2, gồm đất thương mại, trường mầm non, nhà văn hóa
- Đất cây xanh: 13.702,4m2, gồm 2 lô đất cây xanh cách ly và 8 lô đất cây xanh TDTT
- Đất chức năng: Phần đất còn lại gồm bãi đỗ xe, hành lang giao thông và đường bờ kè
- Thi công: Tháng 08/2018
- Bàn giao: Dự kiến bàn giao đất tháng 07/2019, hoàn thành vào tháng 1/2021
- Sở hữu: Sổ đỏ vĩnh viễn

Phối cảnh dự án Khu đô thị Nam Phúc Yên
Vị trí
Khu đô thị Nam Phúc Yên nằm tại ngã tư Khả Do, TP. Phúc Yên, tỉnh Vĩnh Phúc. Vị trí này ngay nút giao giữa đường Nguyễn Tất Thành và đường tỉnh 301 nên giao thông đi lại vô cùng thuận tiện.

Vị trí Khu đô thị Nam Phúc Yên
Hạ tầng
Tiện ích nội khu
Khu đô thị Nam Phúc Yên được chủ đầu tư trang bị nhiều tiện ích đẳng cấp như tòa trung tâm thương mại cao 11 tầng được thiết kế theo biểu tượng của TP. Phúc Yên.
Tại đây, cư dân sẽ được sử dụng tổ hợp trung tâm thương mại, siêu thị, quán skybar, yoga, phòng tập gym, massage... Ngoài ra, trên đỉnh tòa nhà Ngọc Hà Plaza còn có bể bơi vô cực đầu tiên của Vĩnh Phúc.
Tiện ích ngoại khu
Nằm tại khu vực phát triển, được thừa hưởng hạ tầng giao thông, hạ tầng xã hội đã hoàn thiện nên khu đô thị Nam Phúc Yên cũng dễ dàng kết nối với trung tâm thành phố và những tiện ích gần kề như bệnh viện, trường học trong bán kính 2km.
- 10 phút di chuyển đến TP. Vĩnh Yên
- 15 phút đến Sân bay Quốc tế Nội Bài qua đường Nguyễn Tất Thành nối với Quốc lộ 2A

Liên kết tiện ích tại Khu đô thị Nam Phúc Yên

