KĐT Phúc Đạt
Thông tin Khu đô thị Phúc Đạt
Là một dự án đầy tâm huyết của Công ty TNHH Sản xuất và Thương mại Phúc Đạt, Khu đô thị Phúc Đạt được đầu tư vô cùng bài bản nhằm mục đích mang đến một không gian sống hoàn mỹ, xứng tầm đẳng cấp cho các chủ nhân tương lai.
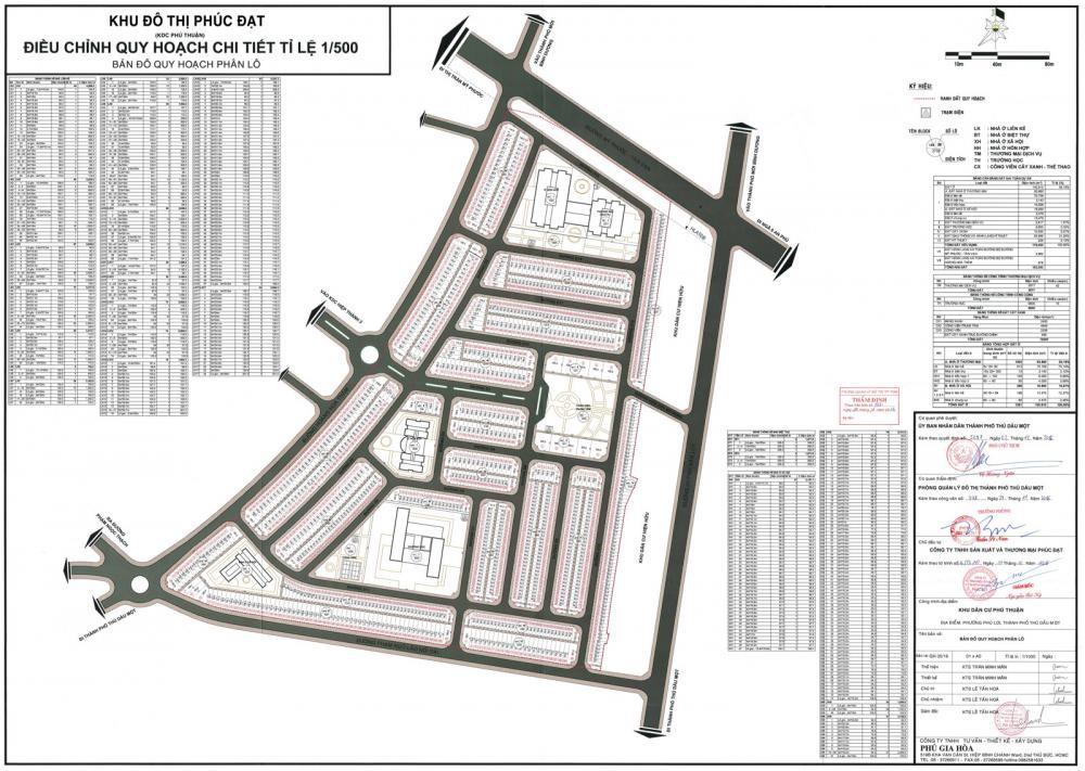
Khu đô thị Phúc Đạt có diện tích quy hoạch lên đến 19 ha, được triển khai với quy mô 1.200 nền gồm nhà phố, biệt thự. Tọa lạc ngay trung tâm TP. Thủ Dầu Một thuộc khu tam giác vàng kết nối các vùng kinh tế KCN lớn trọng điểm của tỉnh Bình Dương - Tp.HCM - Đồng Nai, dự án hứa hẹn sẽ đem lại giá trị sinh lời tốt trong tương lai gần cho các nhà đầu tư nhạy bén.
- Tên dự án: Khu đô thị Phúc Đạt
- Chủ đầu tư: Công ty TNHH Sản xuất và Thương mại Phúc Đạt
- Diện tích tổng thể: 19 ha
- Tổng số sản phẩm là: 1.200 nền gồm nhà phố, biệt thự
- Mật độ xây dựng: 56%
- Thời gian bàn giao: Quý I/2018

Phối cảnh tổng thể Khu đô thị Phúc Đạt
Vị trí
KĐT Phúc Đạt nằm trên đường Mỹ Phước Tân Vạn thuộc địa bàn phường Phú Lợi, TP. Thủ Dầu Một, Bình Dương. Với vị trí đắc địa thuộc vùng kinh tế trọng điểm phía Nam, dự án sở hữu giao thông khá thuận lợi cho việc kết nối đến các huyện, thị và tỉnh thành lân cận.
Dự án được bao quanh bởi 4 mặt tiền đường lớn:
- Đường Huỳnh Văn Lũy (rộng 16m)
- Đường Hoàng Hoa Thám kéo dài (16m)
- Đường cao tốc Mỹ Phước - Tân Vạn (rộng 26m)
- Đường Phạm Ngũ Lão (9m)
- 10 phút vào trung tân hành chính TP Mới Bình Dương qua đường Phạm Ngọc Thạch, Huỳnh Văn Lũy.
- Kết nối nhanh chóng với các vùng kinh tế trọng điểm của tỉnh Bình Dương, Tp.HCM, Đồng Nai qua đường Cao Tốc Mỹ Phước – Tân Vạn và QL13
- Gần các KCN lớn nhất Bình Dương: KCN Đại Đăng, KCN VSIP II, KCN Mỹ Phước I, II, II, IV…
Hạ tầng
Khu đô thị Phúc Đạt sở hữu cơ cấu hạ tầng hoàn chỉnh với hệ thống điện nước âm hiện đại, phố đi bộ, cây xanh, khu thương mại dịch vụ, trường học và các tiện ích sống đẳng cấp đảm bảo phục vụ tốt đời sống cư dân.
Tiện ích nội khu
- Hệ thống đèn đường chiếu sáng đạt tiêu chuẩn KĐT
- Điện nước âm, cây xanh, vỉa hè rộng 3-5m
- Đường nội khu trải nhựa rộng 13-24m
- Hệ thống lối thoát hiểm rộng 2m

Công viên nội khu

Trường quốc tế
Tiện ích ngoại khu
Với vị trí chiến lược trong quần thể các khu đô thị giàu tiềm năng và đang phát triển mạnh mẽ, Khu Đô Thị Phúc Đạt hứa hẹn mang đến một nơi an cư lâu dài, ổn định và bền vững cho khách hàng. Trong vòng bán kính 5km từ dự án, cư dân có thể tiếp cận với đầy đủ mọi tiện ích xung quanh một cách dễ dàng:
- Bệnh viện Đa khoa Bình Dương
- Sân Golf Phú Mỹ, sân Vận động tỉnh Bình Dương
- Trung tâm TP Mới Bình Dương
- Đại học Bình Dương
- Cung văn hóa, Nhà thiếu nhi
- Công Viên Thị Xã Thủ Dầu Một
- Trường Chuyên Hùng Vương

Kết nối tiện ích của dự án KĐT Phúc Đạt

