KĐT An Bình Tân
Thông tin dự án Khu đô thị An Bình Tân
Khu đô thị An Bình Tân, Phước Long, Nha Trang trong tương lai sẽ là một khu an cư mới thanh bình với quy hoạch đồng bộ, hiện đại. Dự án sau khi hoàn thiện sẽ đáp ứng nhu cầu nhà ở của dân cư trong khu vực, đồng thời góp phần giãn dân từ các khu vực trung tâm, tăng cường hạ tầng kỹ thuật góp phần nâng cao chất lượng cuộc sống, tạo ra một môi trường sống tốt cho người dân Nha Trang.
Dự án được quy hoạch bài bản, gắn kết hài hòa với không gian kiến trúc cảnh quan tổng thể, tạo dựng nên một khu dân cư xanh, tiện nghi, thân thiện, tiết kiệm năng lượng và an toàn cho người sử dụng theo tiêu chí phát triển bền vững, khớp nối đồng bộ với hệ thống hạ tầng kỹ thuật, xã hội của khu vực.
- Tên dự án: Khu đô thị An Bình Tân
- Địa chỉ: Phường Phước Long – Tp Nha Trang – Tỉnh Khánh Hòa – Việt Nam
- Chủ đầu tư: Công ty CP Xây lắp Vật tư Kỹ thuật
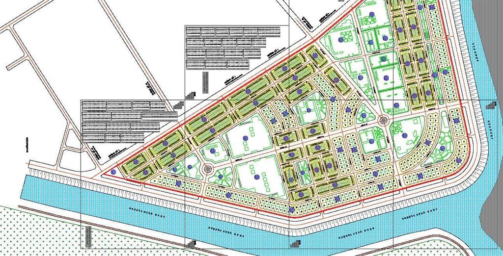
- Tổng diện tích khu đất: 71,69 ha
- Quy mô dân số khoảng: 14.300 người
- Ngày bắt đầu: Quý I/2012
- Ngày hoàn thành: Quý IV/2017

Phối cảnh Khu đô thị An Bình Tân
Vị trí
Khu đô thị An Bình Tân tọa lạc tại phường Phước Long, TP. Nha Trang, tỉnh Khánh Hòa, ngay khu vực cửa ngõ đi vào thành phố (đường từ sân bay Cam Ranh và TP. Nha Trang sẽ qua dự án).
- Phía Bắc giới hạn bởi sông Quán Trường và dự án khu dân cư Tây Lê Hồng Phong.
- Phía Nam giới hạn bởi sông Tắc.
- Phía Tây giáp sông Quán Trường.
- Phía Đông giáp đường số 1 và dự án khu đô thị Phước Long.
- Cách bờ biển Trần Phú: khoảng 2km
- Cách tháp Tràm: khoảng 4.5km
- Cách UBND Tỉnh Khánh Hòa: khoảng 6km

Sơ đồ vị trí dự án
Hạ tầng
Hiện trạng khu đất:
- Nhìn chung, địa hình khu đất triển khai dự án tương đối bằng phẳng, dốc thoải từ Bắc xuống Nam, độ dốc nền i < 2%. Đây là khu đất thấp, trũng thuộc khu vực ngập lụt của lưu vực sông Quán Trường và sông Đồng Bò. Khu vực dự án hiện nay là các đìa nuôi tôm có cao độ -0,8m đến +0,5 m nên thuận lợi để giải phóng mặt bằng.
- Đây là khu đất trũng vì vậy để xây dựng khu đô thị cần phải nâng nền, cao độ nền cao nhất có thể lên tới 3,4m.
- Khu vực dự án có nhiều tuyến đường giao thông như: Tuyến đường Nguyễn Tất Thành, tuyến đường Lê Hồng Phong, các tuyến đường quy hoạch số 1, số 23, số 25 và số 28, do vậy hết sức thuận lợi cho việc triển khai thực hiện dự án ngay từ giai đoạn đầu.
Cơ cấu sử dụng đất:
Tổng diện tích khu đất Khu đô thị An Bình Tân: 71,69 ha, trong đó:
- Đất xây dựng nhà ở: 351.443 m2
+ Đất nhà vườn, biệt thự: 132.655 m2
+ Đất nhà ở liên kề (trong đó: 4.085,73 m2 dự tính là đất tái định cư): 146.304 m2
+ Đất chung cư cao tầng: 72.484 m2
- Đất xây dựng công trình công cộng, dịch vụ: 52.915 m2
+ Trường trung học cơ sở: 9.453 m2
+ Trường tiểu học: 9.381 m2
+ Trường mầm non: 12.406 m2
+ Đất XD công trình hỗn hợp Thương mại, văn phòng, căn hộ…: 16.332 m2
+ Trụ sở ban quản lý dự án: 5.343 m2
- Đất cây xanh, TDTT, mặt nước: 70379 m2
+ Đất hạ tầng kỹ thuật (trạm bơm nước thải): 3.254 m2
+ Đất giao thông, bãi xe: 240.841 m2
+ Đất giao thông: 234.678 m2
+ Đất bãi để xe tập trung: 4242 m2

Bản đồ quy hoạch

