KDC Bửu Hòa
Thông tin dự án Biên Hòa Center City
Biên Hòa Center City là dự án khu dân cư được đầu tư Công ty CP Đồng Nai với quy mô 150 lô đất nền nhà phố, biệt thự trên khu đất quy hoạch rộng 2,7 ha. Dự án tọa lạc ngay vị trí đắc địa tại TP. Biên Hòa, Đồng Nai, nơi kết nối trực tiếp với đường Bùi Hữu Nghĩa và dẫn thẳng đến trung tâm TP. Biên Hòa cũng như Tp.HCM, Bình Dương.
Cùng với đó, chất lượng cuộc sống của cư dân nơi đây cũng được đảm bảo với hệ thống các tiện ích được đầu tư một cách bài bản, hoàn chỉnh như khu thương mại dịch vụ, công viên cây xanh, trường học, chợ và rất nhiều tiện nghi hiện đại khác xung quanh khu dân cư. Biên Hòa Center City được kỳ vọng sẽ mang đến chốn an cư hoàn hảo với tiềm năng sinh lời lớn cho các chủ nhân tương lai.
- Tên dự án: Biên Hòa Center City
- Chủ đầu tư: Công ty CP Đồng Nai - CODONA
- Vị trí : Nguyễn Thị Tồn, Phường Bửu Hòa, TP. Biên Hòa, Đồng Nai
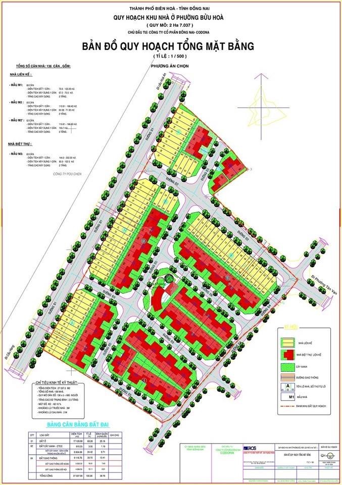
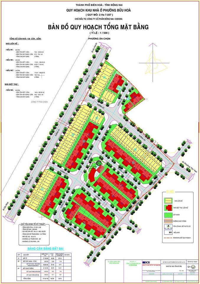
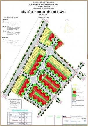
- Diện tích khu đất: 27.087m2
- Diện tích cây xanh: 61.025m2
- Số lượng sản phẩm: 150 lô đất nền
+ Diện tích biệt thự: 140-252m2/căn
+ Diện tích nhà phố: 84-131m2/căn
- Mật độ xây dựng: 62%
- Năm khởi công Năm khởi công: 2017
- Năm hoàn thành Năm hoàn thành: 2018

Bản đồ quy hoạch tổng thể dự án Biên Hòa Center City
Vị trí
Biên Hòa Center City tọa lạc ngay mặt tiền đường Nguyễn Thị Tồn, phường Bửu Hòa, TP. Biên Hòa, tỉnh Đồng Nai.

Vị trí dự án Biên Hòa Center City
Hạ tầng
Bên cạnh hệ thống tiện ích nội khu hoàn thiện, cơ sở hạ tầng đồng bộ với đường trải nhựa lớn, cây xanh, vỉa hè sạch đẹp, Khu đô thị Biên Hòa Center City còn có kết nối thuận lợi đến các tiện nghi cần thiết cho cuộc sống.
- Ngay gần UBND xã Hóa An, chợ Hóa An, trường tiểu học Hóa An
- Gần công viên Nguyễn Văn Trị, trường Đại học Lạc Hồng, khu du lịch sinh thái Bửu Long, chợ đêm Biên Hùng, Bệnh viện Quốc tế Đồng Nai,…
- Kết nối dễ dàng đến hệ thống tiện ích hiện đại của Tp.HCM như làng đại học Quốc gia Tp.HCM, ga metro, Khu công nghệ cao quận 9, khu du lịch Suối Tiên, đại học Fulbright, sân golf Park, Bệnh viện Ung Bướu 2, khu du lịch Đền Hùng, bến xe Miền Đông mới,…

Kết nối tiện ích dự án Biên Hòa Center City

