Imperia Smart City
Thông tin tổng quan dự án Imperia Smart City
Imperia Smart City là tổ hợp căn hộ chung cư nằm trong đại đô thị Vinhomes Smart City. Đúng như tên gọi, dự án sẽ ứng dụng công nghệ và cung cấp các sản phẩm công nghệ tích hợp trong căn hộ. Đáng chú ý trong đó là hệ sinh thái thông minh toàn diện trên 4 trục cốt lõi là: An ninh thông minh, cộng đồng thông minh, vận hành thông minh và sản phẩm căn hộ thông minh.
Dự án sau khi hoàn thiện hứa hẹn sẽ mở ra cuộc sống năng động, hiện đại cho các cư dân tương lai.
- Tên dự án: Chung cư Imperia Smart City
- Đơn vị thi công: Công ty cổ phần xây dựng Ricons
- Đơn vị phát triển cảnh quan: West Green Design (Canada)
- Diện tích công viên, cây xanh: 55ha
- Diện tích hồ điều hòa: 7,35ha
- Diện tích hầm để xe: 40ha
- 5 khu để xe nổi
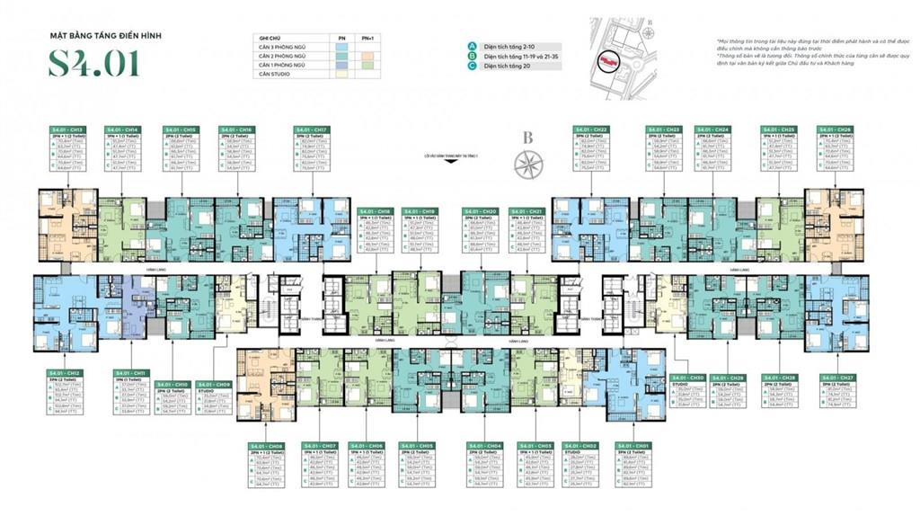
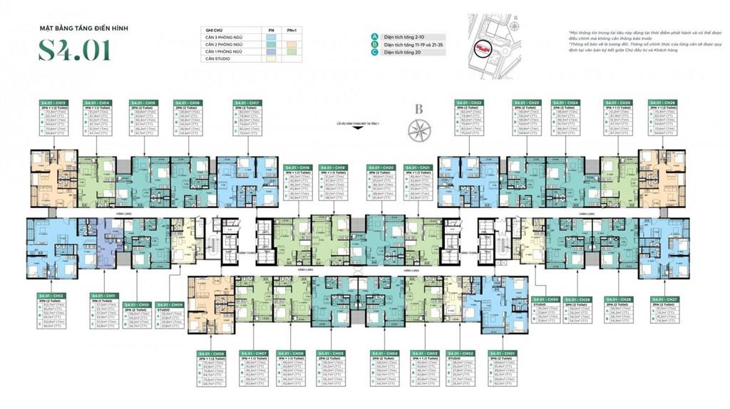
- Diện tích căn hộ: từ 28,3-76,2m2 (thiết kế 1-3 phòng ngủ)
- Dự án dự kiến bàn giao: quý II/2020
- Quy mô dự án:
+ Ô quy hoạch: F4-CH04
- Diện tích khu đất 14.734m2
- Tổng diện tích sàn xây dựng: 185.284m2
- Mật độ xây dựng: 32,7%
- Diện tích đất xây dựng chung cư: 4.818m2
- Tầng cao xây dựng: 39 Tầng
+ Ô quy hoạch: F4-CH05
- Diện tích khu đất: 8.576m2
- Tổng diện tích sàn xây dựng: 99.484m2
- Mật độ xây dựng : 30,5%
- Diện tích đất xây dựng chung cư: 2.618m2
- Tầng cao xây dựng: 38 Tầng

Phối cảnh tổng thể dự án Imperia Smart City
Vị trí
Imperia Smart City tọa lạc tại khu đất có địa phận thuộc 2 phường Tây Mỗ, Đại Mỗ, quận Nam Từ Liêm và cách Trung tâm Hội nghị Quốc gia chỉ 7 phút di chuyển. Không chỉ sở hữu vị trí thuận lợi cho kết nối, di chuyển, dự án còn có tiềm năng tốt nhờ nằm trên tuyến đường kết nối với khu công nghệ cao Hòa Lạc.

Vị trí dự án Imperia Smart City
Hạ tầng
Imperia Smart City có hệ thống tiện ích đẳng cấp, mang tới cuộc sống chuẩn mực cho các cư dân với:
- Công viên thể thao với hàng trăm tiện ích như vườn Nhật có diện tích hơn 6ha, 1200 máy tập được bố trí ở công viên gym ngoài trời, 200 sân thể thao (sân bóng đá, bóng chuyền, bóng bàn, cầu lông, bóng rổ…)
- 3 công viên BBQ
- Hơn 60 sân chơi trẻ em
- Chuỗi nhà hàng ẩm thực, TTTM tại tầng trệt của các tòa nhà
- Hệ thống phòng học, bệnh viện đầy đủ
- An ninh 24/7, camera đa lớp
- 8 bể bơi vô cực, bể bơi bốn mùa
Bên cạnh việc nằm trên trục đường chính rộng 50m kết nối đến TTTM Vincom Mega Mall, tong phạm vi 5km từ dự án, cư dân có thể dễ dàng kết nối đến các dịch vụ, tiện ích hiện hữu của khu vực để phục vụ cho cuộc sống của mình:
- Gần tuyến Metro số 6: Nội Bài – Phú Diễn – Hà Đông – Ngọc Hồi
- Thiên đường Bảo Sơn
- TT văn hóa thể thao Tây Mỗ, Trung tâm hội nghị quốc gia
- Bộ tư lệnh cảnh sát biển, Bộ Ngoại Giao
- Aeon Mall Hà Đông, BigC Thăng Long, TTTM The Garden
- Đường đua F1 Mỹ Đình, Sân Vận Động Mỹ Đình


