Hong Kong Tower
Thông tin dự án Hong Kong Tower
Hong Kong Tower được biết đến trong thời gian gần đây như một đại diện tiêu biểu của các dự án bất động sản cao cấp tại trung tâm TP. Hà Nội. Dự án do Công ty CP Đầu tư Xây dựng Đô thị Kang Long là chủ đầu tư với sự tham gia của hàng loạt các công ty tư vấn, kiến trúc và xây dựng hàng đầu như: Dubosc et Landowski... Dự án được xây dựng theo tiêu chuẩn quốc tế với sự tham gia của đội ngũ kỹ sư, kiến trúc sư thiết kế và các chuyên gia tư vấn nước ngoài.
- Tên dự án: Hong Kong Tower
- Chủ đầu tư: Công ty CP Đầu tư Đô thị Kang Long
- Loại hình: Khu căn hộ
- Tổng diện tích dự án: 5.041m2
- Diện tích xây dựng: 2.410m2
- Mật độ xây dựng: 47,6%
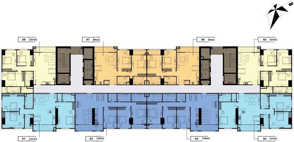
- Quy mô dự án: Tháp A cao 27 tầng, tháp B cao 23 tầng, 3 tầng hầm
- Hình thức sở hữu: Sổ hồng

Phối cảnh tổng thể Hong Kong Tower
Vị trí
Chung cư Hong Kong Tower tọa lạc tại 243A Đê La Thành với vị trí trung tâm gần với các cơ quan hành chính, công viên Thủ Lệ, bệnh viện Nhi, trường Đại học Ngoại Thương. Dự án nằm tại một trong những quận nội thành và đông dân cư nhất của TP. Hà nội, trong khu vực trung tâm thương mại chính phía Tây Nam thành phố cùng với các dự án lớn như Golden Westlake, Indochina Plaza Hanoi, Keangnam Hanoi Landmark Tower, The Manor HN. HongKongTower có vị trí giao thông chiến lược kết nối trung tâm thành phố và các khu đô thị mới, cửa ngõ của Thủ đô Hà nội.

Vị trí Hong Kong Tower
Hạ tầng
Hong Kong Tower bao gồm 2 tòa tháp căn hộ cao cấp kết hợp văn phòng 27 và 23 tầng, được kết nối bởi trung tâm mua sắm hiện đại 2 tầng. Tầng hầm được thiết kế liên kết 2 toà nhà với ba tầng hầm có tổng diện tích 13.539m2.
Các tiện ích như bể bơi, trung tâm thể dục thể thao, nhà hàng, khu mua sắm, khu vui chơi giải trí… tạo ra môi trường sống, làm việc và thư giãn lý tưởng cho bộ phận dân cư trẻ và các gia đình mong muốn có một cuộc sống theo phong cách hiện đại.
Bên cạnh những căn hộ sang trọng, Hong Kong Tower còn có cả văn phòng, cửa hàng, siêu thị, quán cà phê, và các tiện nghi cao cấp khác. Cung cấp một phong cách sống sành điệu. Khu văn phòng hạng A 11 tầng của Hong Kong Tower có tổng diện tích sàn khoảng 8.514m2 và được trang bị thang máy tốc độ cao. Mỗi tầng của khu văn phòng có tổng diện tích khoảng 774m2.
Hệ thống điện tiên tiến, máy phát điện dự phòng, cả toà cao ốc văn phòng có 11 tầng, 3 tầng hầm dành cho bãi đậu xe, 4 thang máy hiện đại, hệ thống báo cháy tự động lắp sẵn, sự quản lý chuyên nghiệp, an ninh 24/24 nhà đem lại sự an toàn tuyệt đối cho người sử dụng.
Với tổng vốn đầu tư lớn, tất cả các trang trí nội thất đều là của những thương hiệu cao cấp và hiện đại như TOTO và INAX, tòa tháp còn có công viên cây xanh và hồ bơi ở tầng 3 (tương đương với hồ bơi trong các khách 5 sao), phòng tập thể dục, spa, cửa hàng, trung tâm giải trí. Với vị trí nổi bật, dễ tiếp cận rất thuận lợi cho làm việc và giao dịch sẽ mang đến cho khách hàng những không gian làm việc chất lượng cao.

Tiện ích tại dự án Hong Kong Tower

