Hado Charm Villas
Thông tin tổng quan dự án Hà Đô Charm Villas
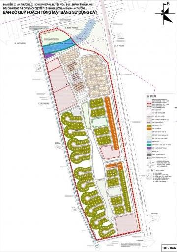
- Vị trí: xã An Thượng và xã Song Phương, huyện Hoài Đức, Hà Nội

Phối cảnh tổng thể dự án Hà Đô Charm Villas
Vị trí

Vị trí dự án Hà Đô Charm Villas
Hạ tầng
Tại Hà Đô Charm Villas, các cư dân sẽ được trải nghiệm một cuộc sống chất lượng với đầy đủ tiện ích cao cấp:
- Vườn hoa nghệ thuật
- Quảng trường
- Trường học liên cấp, trường học quốc tế
- Sân tập Golf
- Phòng tập Gym, xông hơi
- Bể bơi ngoài trời, bể bơi trong nhà
- Sân bóng đá, tennis, cầu lông, bóng rổ
- Trung tâm chăm sóc sức khoẻ
- Sân chơi trẻ em
- Bãi đậu xe
- 12 công viên trải dài khắp dự án
- Hồ nước rộng 2,5ha
- Hệ thống an ninh đảm bảo



Hệ thống tiện ích tại Hà Đô Charm Villas
Ngoài ra, Hà Đô Charm Villas còn được thừa hưởng những tiện ích ngoại khu cao cấp từ khu đô thị xung quanh cùng những tiện ích hiện hữu của khu vực:
- Trung tâm thương mại tiêu chuẩn quốc tế AEON Mall
- 1.5km đến Khu vui chơi giải trí Thiên đường Bảo Sơn
- Công viên thiên văn
- Bệnh viện Quốc tế Hà Đông
- 6km đến Trung tâm Hội nghị Quốc gia
- 18km đến thị trấn Xuân Mai
- 54km đến Sân bay Nội Bài

