Green Home Residence
Thông tin dự án căn hộ Green Home Residence
Sở hữu khoảng không thiên nhiên rộng lớn là các công viên xanh mát xen lẫn bên trong dự án và dòng sông Vàm Thuật uốn lượn không xa, Green Home Residence mang lại một không gian sống rất đặc biệt, vừa hiện đại vừa thanh bình, hòa vào với thiên nhiên hoang sơ giữa lòng thành phố nhộn nhịp.
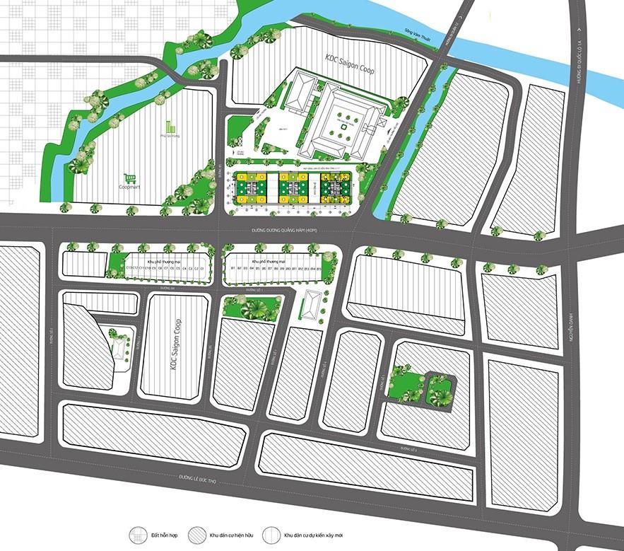
Green Home Residence có tổng diện tích 2,4 ha gồm 3 phân khu chính là Khu phố thương mại, Khu căn hộ cao cấp và Trường tiều học. Các căn hộ tại Green Home Residence được thiết kế vuông vức, bố trí hợp lý nhằm tận dụng tối đa không gian sống, tiếp xúc đầy đủ với ánh sáng tự nhiên và cho tầm nhìn rất thông thoáng. Đối diện là khu phố thương mại sầm uất, tại đây cư dân có thể thoải mái lựa chọn cho mình những món hàng yêu thích chỉ trong vài bước chân và liền kề là khu trường học diện tích khá lớn.
- Quy mô: 2,4 ha, trong đó:
+ Khu phố Thương mại: 28 lô
+ Khu căn hộ cao cấp: 3 block cao 18 tầng, cung cấp 480 căn, 1 tầng thương mại.
+ Trường tiểu học: 7.867,5 m2
- Tổng vốn đầu tư: 587 tỷ đồng
- Chủ đầu tư: Công ty CP Đầu Tư Phát Triển Sông Đà
- Hợp tác đầu tư: Công ty Cổ phần Green Real
- Đơn vị thi công:
+ Công ty TNHH MTV Công Ích Quận Gò Vấp
+ Công ty CP Đầu Tư Phát Triển Sông Đà
- Khởi công: 2015
- Hoàn thành: 2017

Phối cảnh khu căn hộ Green Home Residence
Vị trí
Sở hữu vị trí lý tưởng tại mặt tiền đường Dương Quảng Hàm, lộ giới 40m; nằm trong Khu dân cư cao cấp P.15, Q.Gò Vấp, cách sân bay Tân Sơn Nhất 10 phút; kết nối thuận tiện đến đại lộ Phạm Văn Đồng, tuyến metro số 4, Green Home Residence giúp các chủ nhân rút ngắn cách khoảng cách di chuyển đến các khu vực lân cận và quận trung tâm để thoải mái tận hưởng các tiện ích/dịch vụ mong muốn một cách nhanh chóng và dễ dàng nhất.
Căn hộ Green Home Residence rất thuận tiện để:
- Đến Sân bay Tân Sơn Nhất chỉ khoảng 10 phút.
- Đến công viên Phần mềm Quang Trung chỉ khoảng 15 phút.
- Đến trung tâm Quận 1 chỉ mất 25 phút.
- Di chuyển dễ dàng đến quận Bình Thạnh, Thủ Đức, Phú Nhuận, Tân Bình thông qua đại lộ Phạm Văn Đồng.

Vị trí dự án căn hộ Green Home Residence
Hạ tầng
Một không gian sống nhẹ nhàng, xanh mát và đầy đủ tiện ích nội – ngoại khu cao cấp luôn là mơ ước của tất cả mọi người và Green Home Residence là một trong những dự án hiếm hoi hội tụ đầy đủ những yếu tố đó.
Ngoài những khoảng xanh rộng lớn của các công viên, Green Home Residence còn có các tiện ích nội khu hiện đại như siêu thị mini, nhà trẻ, trường tiểu học liền kề, TT TDTT, Nhà hàng, Terrace café, Spa, dịch vụ Home care, Car care… và đầy đủ các tiện ích ngoại khu trong bán kính 1km như Siêu thị (Coopmart, Big C), chợ (Xóm Mới, Hoàng Mai), nhà sách (Văn Lang), ngân hàng, trường học (ĐH Hồng Bàng, CĐ Bách Việt, trường mầm non, cấp 1, 2, 3), bệnh viện (BV Gò Vấp, BV Đa khoa QT Vũ Anh), TT Văn hóa & Nhà thiếu nhi Q.Gò Vấp…



Các tiện ích dự án Green Home Residence

