Golden Mall
Thông tin tổng quan dự án Golden Mall
Golden Mall do Công ty TNHH Thắng Lợi làm chủ đầu tư với quy mô 6,5ha tại Dĩ An - Bình Dương. Dự án được triển khai theo mô hình khu dân cư, sau khi hoàn thiện sẽ cung cấp cho thị trường BĐS khu vực 512 lô đất nền với 400 nền nhà phố thương mại, 112 nền không xây dựng, 1 khu thương mại - dịch vụ và 1 tháp căn hộ.
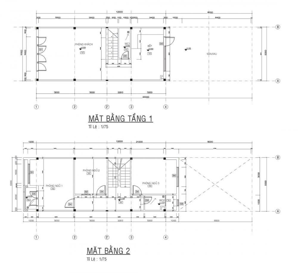
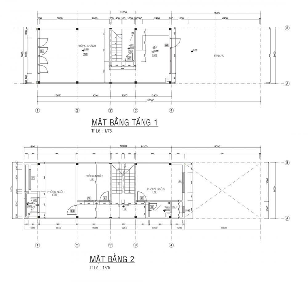
Được biết, khu nhà phố thương mại tại Golden Mall có kết cấu gồm 1 trệt 1 lầu (thiết kế 2-3 phòng ngủ), diện tích mỗi lô từ 65 - 120m2.
- Tên dự án: Golden Mall
- Vị trí: Tỉnh Lộ 743C, phường Tân Đông Hiệp, TX. Dĩ An, tỉnh Bình Dương
- Chủ đầu tư: Công ty TNHH Thắng Lợi
- Đơn vị phát triển dự án: Công ty CP Bất động sản U&I
- Tổng diện tích: 6,5ha
- Loại hình: Khu dân cư
- Giá bán: 23 - 25 triệu đồng/m2

Phối cảnh tổng thể dự án Golden Mall
Vị trí
Golden Mall tọa lạc ngay mặt tiền đường ĐT 743C, phường Tân Đông Hiệp, thị xã Dĩ An, tỉnh Bình Dương. Nhờ nằm ngay trung tâm thị xã Dĩ An, dự án có kết nối giao thông khu vực và liên vùng vô cùng thuận tiện khi từ đây, cư dân có kết nối về TP.HCM, Bình Phước, Đồng Nai, Bà Rịa Vũng Tàu… qua đường ĐT 743B, đường ĐT 743, quốc lộ 13, đường cao tốc Mỹ Phước - Tân Vạn một cách dễ dàng và không mất quá nhiều thời gian.

Vị trí dự án Golden Mall
Hạ tầng
Tiện ích nội khu
Golden Mall được đầu tư hệ thống hạ tầng hoàn thiện với đường nhựa nội khu rộng từ 16 – 32m, hệ thống điện âm – nước máy, đèn chiếu sáng hiện đại bên cạnh nhiều tiện ích khác đảm bảo phục vụ tốt cho cuộc sống hiện đại của cư dân:
- Khu thương mại
- Cây xanh, vỉa hè
- Bệnh viên
- Siêu thị
- Trường học
- Bến xe, bưu điện
Tiện ích ngoại khu
Golden Mall được thừa hưởng hệ thống tiện ích hiện đại nhờ nằm ngay trung tâm TX. Dĩ An sầm uất, chính vì vậy, mọi nhu cầu từ y tế, giáo dục cho đến vui chơi giải trí, thương mại – dịch vụ của cư dân dự án đều được đáp ứng một cách nhanh chóng.
- Vài phút đến trung tâm hành chính Dĩ An, chợ Dĩ An, chợ An Phú
- Hệ thống siêu thị cao cấp AEON Mall, Lotte, điện máy Thiên Hòa
- Bệnh viện quốc tế Becamex, sân Golf Sông Bé, Bệnh viện Columbia
- Ngay gần bến xe Tân Đông Hiệp, KDC Tân Đông Hiệp
- Xung quanh là nhiều KCN lớn như KCN Vsip 1, Sóng Thần, Tân Đông A, B,…

Liên kết tiện ích của dự án Golden Mall

