Five Star Eco City
Thông tin dự án Five Star Eco City
Dự án Khu đô thị Five Star Eco City do Tập đoàn quốc tế Năm Sao làm chủ đầu tư với quy mô 420ha tại Cần Giuộc, Long An. Dự án được hình thành nhằm góp phần việc thúc đẩy phát triển kinh tế đi đôi với nâng cao chất lượng sống của người dân, đồng thời góp phần xây dựng hoàn chỉnh tổng thể không gian đô thị của tỉnh.
Dự án Five Star Eco-City - Thành phố sinh thái Năm Sao được triển khai trên khu đất quy hoạch thuộc địa phận các xã Phước Lý (huyện Cần Giuộc) và xã Long Trạch – Long Khê (huyện Cần Đước), rất thuận lợi về giao thông cũng như đầu tư xây dựng và phát triển kinh tế xã hội. Tất cả sẽ góp phần xây dựng hoàn chỉnh tổng thể không gian đô thị của tỉnh Long An.
Five Star Eco-City nằm ở phía Nam Tp. HCM, gần khu Đô thị Phú Mỹ Hưng với kết nối trực tiếp đến đại lộ Nguyễn Văn Linh và cách trung tâm Tp.HCM 20 phút đi theo đại lộ Võ Văn Kiệt và 10 phút về Trung tâm thành phố khi đường cao tốc Bến Lức - Long Thành - Dầu Giây đi vào sử dụng.
Dự án được quy hoạch và xây dựng thành một Thành Phố Sinh Thái Năm Sao lớn và hiện đại hàng đầu tại Việt Nam. Cơ sở hạ tầng tại Five Star Eco-City được đầu tư đồng bộ với đầy đủ các dịch vụ tiện ích cao cấp và phân chia thành 5 khu: Khu Lucky Land, khu Golden Land, khu Happy Land, khu Garden Land và khu Future Land. Mỗi phân khu mang một nét rất riêng biệt, hiện đại, phù hợp với chức năng và tên gọi của chúng.
- Tên dự án: Five Star Eco City - Thành Phố Sinh Thái Năm Sao
- Chủ đầu tư: Tập đoàn quốc tế Năm Sao
- Địa chỉ: Đường Đinh Đức Thiện, Xã Phước Lý, Cần Giuộc, Long An
- Đơn vị phân phối: Thanh Yến Land, Công ty Cổ phần Green Real
- Đơn vị thi công: GreenWorld Construction
- Đơn vị thiết kế: Arch Tran
- Ngân hàng bão lãnh: BIDV
- Tổng diện tích: 420ha, giai đoạn 1 - 220ha
- Tổng mức đầu tư cho giai đoạn 1: 15.000 tỷ đồng
- Diện tích cây xanh: 60%

Phối cảnh tổng thể dự án Five Star Eco City
Vị trí
Thành phố Sinh Thái Năm Sao – Five Star Eco City nằm ở vị trí chiến lược trong liên kết vùng đầy tiềm năng qua hệ thống các đường cao tốc, đường vành đai, tạo điều kiện thuận lợi cho sự phát triển chung của vùng kinh tế trọng điểm phía Nam. Dự án tọa lạc tại vị trí cửa ngõ, dễ dàng kết nối giao thông về trung tâm TP.HCM qua các đại lộ chính Nguyễn Văn Linh, đại lộ Đông Tây và Quốc lộ 1A.
Khu đất nơi dự án tọa lạc có phía Đông giáp Tỉnh Lộ 826, phía Bắc giáp Tỉnh 835B đi TP.HCM và quốc lộ 1A, phía Tây và phía Nam giáp đất hiện trạng của dự án khác.
- Chưa đầy 35 phút đến trung tâm Tp.HCM
- 25 phút đến khu đô thị Phú Mỹ Hưng
- 5 phút đến chợ Bình Chánh
Ngoài ra, hàng loạt các công trình giao thông như đường cao tốc Long An – Tân Sơn Nhất, các tuyến đường vành đai 1, 2, 3 kết nối Long An với Tp.HCM đang được triển khai cùng các dự án nâng cấp đường tỉnh lộ, đường xuyên tâm... sẽ rút ngắn khoảng cách rất nhiều từ Five Star Eco City đến trung tâm thành phố.

Vị trí dự án Five Star Eco City
Hạ tầng
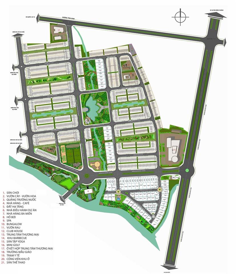
Five Star Eco City gồm 4 loại đất nền: Đất nền liên kế, nhà phố thương mại, biệt thự song lập và biệt thự đơn lập. 5 phân khu của dự án gồm:
1. Golden land: là vùng đất vàng sầm uất bậc nhất với Trung tâm tài chính - thương mại của Thành phố với những dãy nhà phố thương mại có diện tích từ 100m2, biệt thự song lập, đơn lập có diện tích từ 200, 300-500m2 và 5 tòa tháp Trung tâm tài chính thương mại sừng sững, vươn mình soi bóng xuống mặt hồ.
2. Dream Land: với chỉ 10 Lâu đài Hạnh phúc được xây dựng bằng gỗ, vô cùng quý phái theo kiến trúc Tây Ban Nha, mỗi căn rộng từ 3.000m2 – 5.000 m2.
3. Garden land: được quy hoạch thành khu biệt thự vườn, nằm song song bên dòng sông chính của Thành phố với bốn mùa hoa trái, là môi trường sống tuyệt vời với những loài cây cỏ, hoa lá ngập ánh nắng và hương vị ngọt ngào của sông nước Miền nam.
4. Lucky Land: có nhiều mẫu nhà, diện tích nhà phố thương mại từ 100 m² đến biệt thự ven sông 200, 300 - 500m²
5. Future Land: với những dãy nhà phố song lập kết hợp với cỏ cây sông nước, rất phù hợp với những gia đình trẻ luôn đầy ắp khát vọng xây dựng một cuộc sống tương lai hoàn hảo.
Thành phố sinh thái Năm Sao - Five Star Eco City được quy hoạch trở thành một thành phố sinh thái đẳng cấp hàng đầu Việt Nam với cơ sở hạ tầng đồng bộ, tôn tạo cảnh quan thiên nhiên và môi trường sinh thái.
Cư dân dự án tất nhiên sẽ được thụ hưởng đầy đủ các dịch vụ tiện ích đẳng cấp quốc tế: Trung tâm tài chính - thương mại, cao ốc văn phòng, trường học các cấp, trung tâm TDTT, sân tennis, sân bóng đá, sân golf 9 lỗ, bến du thuyền, trung tâm y tế và bệnh viện Quốc tế; làng ẩm thực 3 Miền, KDL nghỉ dưỡng sinh thái 5 sao.

