Felicity Uông Bí
Thông tin tổng quan dự án Felicity Uông Bí
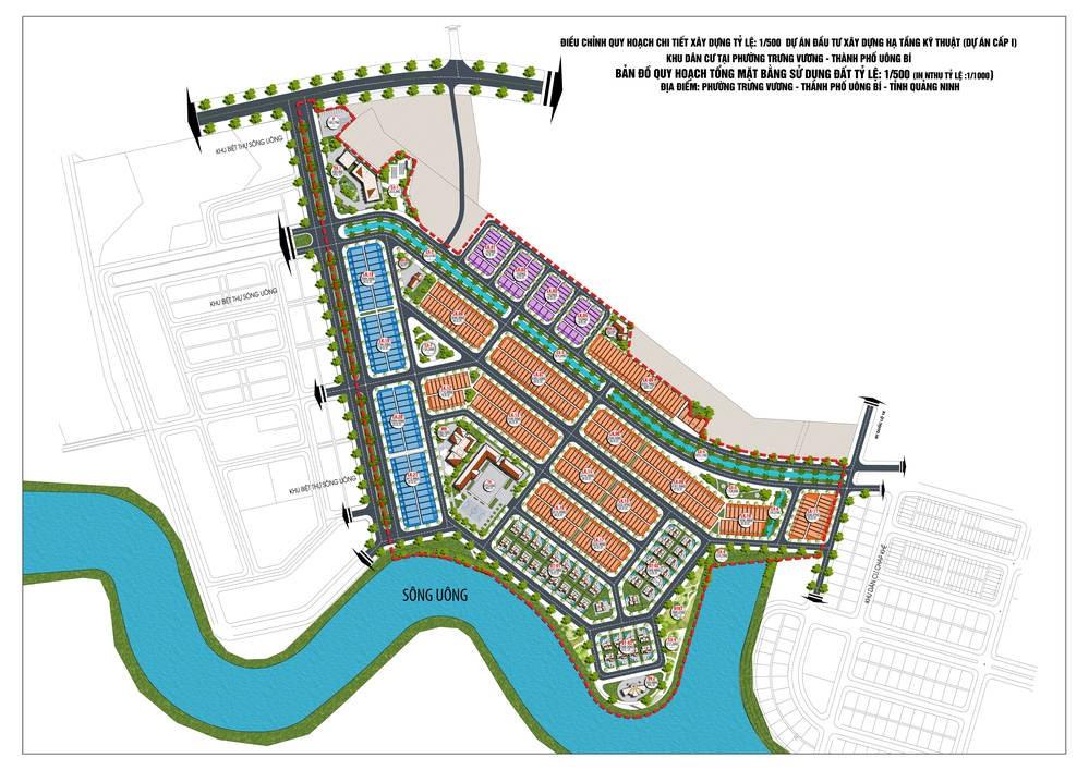
Felicity Uông Bí là dự án đất nền phân lô do do Công ty cổ phần đầu tư và thương mại Công Thành triển khai tại trung tâm thành phố Uông Bí, tỉnh Quảng Ninh. Dự án có tổng diện tích lên đến 20.56 ha, dự kiến chia thành 579 lô đất nền. Trong đó, các lô liền kề có diện tích dao động từ 80 - 150m2, các lô biệt thự có diện tích 300m2. Mật độ xây dựng vào khoảng 32%, các lô đất đã được san phẳng, đẹp theo diện tích chủ đầu tư hoạch định. Hệ thống đường nội bộ, đường điện, nước đang trong quá trình thi công, hứa hẹn đảm bảo mặt đường thông thoáng, rộng rãi đến từng lô.
Công ty cổ phần đầu tư và thương mại Công Thành - chủ đầu tư dự án Fecility Uông Bí là một trong những doanh nghiệp có danh tiếng, uy tín ở Quảng Ninh. Chủ đầu tư này hiện đang nỗ lực đẩy nhanh tiến độ thi công hạ tầng, mặt bằng để nhanh chóng hoàn thành dự án, đảm bảo đúng tiến độ đầu tư.
- Tên dự án: Felicity Uông Bí
- Tên pháp lý: Khu dân cư phường Trưng Vương, thành phố Uông Bí, tỉnh Quảng Ninh
- Vị trí: Quốc lộ 18, phường Trưng Vương, tp Uông Bí, tỉnh Quảng Ninh
- Chủ đầu tư: Công ty cổ phần đầu tư và thương mại Công Thành
- Tổng diện tích: 20.56ha
- Quy mô dân số: khoảng 2288 người
- Loại hình phát triển: 579 lô đất nền, bao gồm liền kề, biệt thự, shophouse
- Mật độ xây dựng: 32%

Phối cảnh dự án Felicity Uông Bí
Vị trí
Dự án Felicity Uông Bí tọa lạc trên trục đường Quốc lộ 18, thuộc phường Trưng Vương, thành phố Uông Bí, tỉnh Quảng Ninh. Đây là tuyến đường huyết mạch của Uông Bí, thuận tiện cho cư dân khi di chuyển đến các khu vực trong thành phố cũng như ra ngoài tỉnh. Vị trí dự án Felicity Uông Bí cũng nằm trên tuyến giao thông liên tỉnh, kết nối 4 tỉnh/thành lớn của miền Bắc là: Hà Nội – Bắc Ninh – Hải Dương – Quảng Ninh, tạo điều kiện cho giao thương, phát triển kinh tế. Sở hữu vị trí đắc địa ngay trung tâm thành phố Uông Bí, dự án Felicity Uông Bí dễ dàng tiếp cận các địa điểm vui chơi, giải trí, trường học, bệnh viện, khu hành chính,... trong bán kính chỉ 5km. Ngoài ra, dự án đất nền Felicity Uông Bí còn nằm ngay cạnh dự án lớn với quy mô lên đến 32,2ha của TNR Holdings, tiếp giáp với khu kinh tế ven biển Quảng Yên và dự án Hạ Long Xanh có tổng mức đầu tư 10 tỷ USD. Trong tương lai, nơi này được kỳ vọng sẽ trở thành một khu dân cư sầm uất, hiện đại.

Vị trí dự án Felicity Uông Bí
Hạ tầng
Với vị trí trung tâm, ngay trên tuyến đường giao thông quan trọng là Quốc lộ 18, dự án Felicity Uông Bí được hưởng nhiều lợi thế về hạ tầng, mạng lưới giao thông đã phát triển đồng bộ, bài bản. Các công trình, dự án hạ tầng nổi bật của khu vực có thể kể đến như:
- Đường Quốc lộ 18 đang được nâng cấp, mở rộng thành 8 làn
- Các tuyến đường kết nối thành phố Uông Bí đều đang được chú trọng đầu tư
- Quy hoạch đường ven sông 10 làn từ cao tốc Hạ Long đến các khu công nghiệp và thị xã Đông Triều
- Đường sắt 1 ray hiện đại.
Tiện ích dự án
Với mục tiêu đưa Felicity Uông Bí trở thành khu đô thị đáng sống bậc nhất thành phố Uông Bí, là chốn an cư lý tưởng của nhiều gia đình Việt trong tương lai, dự án được triển khai với đầy đủ các tiện ích nội khu phục vụ sinh hoạt hàng ngày của cư dân như: trường mầm non, trường tiểu học, trung tâm thương mại, phòng tập gym, yoga, spa, thư viện, phòng sinh hoạt cộng đồng.



Loạt tiện ích cao cấp trong nội khu dự án Felicity Uông Bí
Ngoài ra, trong vòng bán kính 5km quanh dự án, cư dân có thể dễ dàng tìm thấy hàng loạt địa điểm vui chơi giải trí, trung tâm mua sắm (nổi bật nhất là Vincom Megamall), trung tâm hành chính công, bệnh viện đa khoa, trường học,...

