CornerStone Building
Thông tin dự án CornerStone Building
CornerStone Building được xây dựng ngay tại khu trung tâm thương mại truyền thống của Hà Nội trên đường Phan Chu Trinh - một trong những con đường đẹp nhất của Thủ đô. Với địa điểm ngay gần trụ sở Bộ Tài chính, nhà Hát lớn và khách sạn Sofitel Metropole Legend.
Dự án văn phòng hạng A này chỉ cách các văn phòng Chính phủ, doanh nghiệp tên tuổi, trung tâm thương mại lớn và các nhà hàng, khách sạn trong vài phút đi bộ. Ngoài ra, đây cũng là địa điểm kinh doanh rất yên tĩnh và kết nối thuận tiện tới các khu vực khác như Hồ Tây/Ciputra/sân bay quốc tế Nội Bài.
Khu vực này hội tụ đủ các yếu tố về văn hóa, lịch sử, giao lưu quốc tế và thương mại của Hà Nội nói riêng và Việt Nam nói chung.
- Tên dự án: CornerStone Building
- Chủ đầu tư: Công ty TNHH VIB - NGT
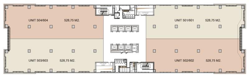
- Số tầng: 14 tầng văn phòng và 3 tầng hầm
- Mặt bằng điển hình: 2,000m2
- Tổng diện tích xây dựng: 48,494m2
- Khởi công: 13/03/2010

Phối cảnh CornerStone Building
Vị trí
CornerStone Building tọa lạc tại số 16 Phan Chu Chinh, Hoàn Kiếm, Hà Nội.

Vị trí dự án CornerStone Building
Hạ tầng
Các tiện ích và dịch vụ phong phú của CornerStone tạo điều kiện thuận tiện cho hoạt động của các nhân viên làm việc trong tòa nhà. Hơn nữa, với lợi thế ngay tại trung tâm của khu vực doanh thương của Hà Nội, bao quanh bởi các ngân hàng, văn phòng chính phủ, khách sạn, nhà hàng và trung tâm thương mại cao cấp, CornerStone đảm bảo đem lại một môi trường làm việc chuyên nghiệp cho khách hàng.
- Thiết kế sảnh hiện đại và phong cách, sử dụng đá cẩm thạch và hoa cương nhập khẩu
- Cửa kính 2 lớp thân thiện môi trường, chống ồn và tia cực tím
- Vật liệu và kết cấu xây dựng chất lượng cao
- Thiết kế mặt sàn thông minh, thuận tiện hoàn thiện nội thất
- Bố trí nội thất văn phòng linh hoạt
- 7 thang máy Mitsubishi tốc độ cao, tải trọng 16 người/thang
- 1 thang hàng tải trọng 1,600kg
- Hệ thống điều hòa Tranne thông minh
- 100% điện dự phòng
- Hệ thống phòng cháy chữa cháy tiêu chuẩn quốc tế
- Khu vệ sinh cao cấp cho VIP trên mỗi tầng
- Hệ thống camera và an ninh 24/7

