Chung cư Lakeside Garden
Dự án Lakeside Garden là dự án căn hộ cao cấp toạ lạc ngay tại Khu Đô Thị Mới cạnh hồ Phương Lưu Quận Ngô Quyền, Thành phố Hải Phòng. Dự án Lakeside Garden Phương Lưu Hải Phòng có quy mô gần 8ha gồm tổ hợp 2 toà chung cư cao 27 và 32 tầng, cung cấp 545 căn hộ, dự án do Công ty TNHH Đầu Tư và Phát Triển Aurora Việt Nam làm chủ đầu tư.

Vị Trí
Chung cư Lakeside Garden tọa lạc ngay tại khu đô thị mới cạnh hồ Phương Lưu, ngay sát trục đường Lê Hồng Phong, Phường Đông Khê, Quận Ngô Quyền, Thành phố Hải Phòng.

Giá Bán
Giá bán chung cư Lakeside Garden Phương Lưu Hải Phòng đang được cập nhật.
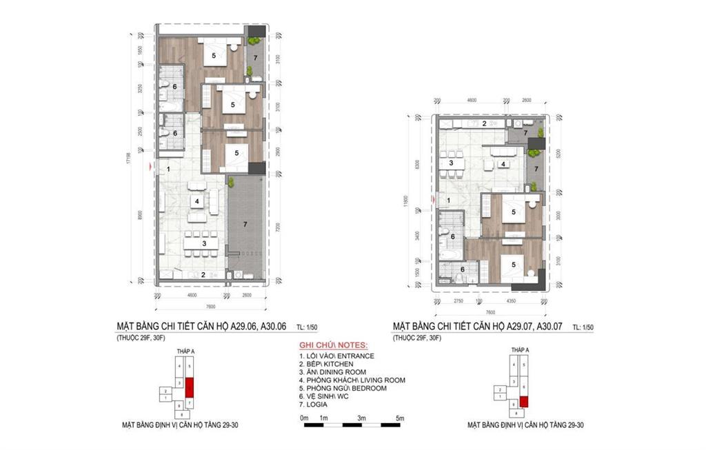
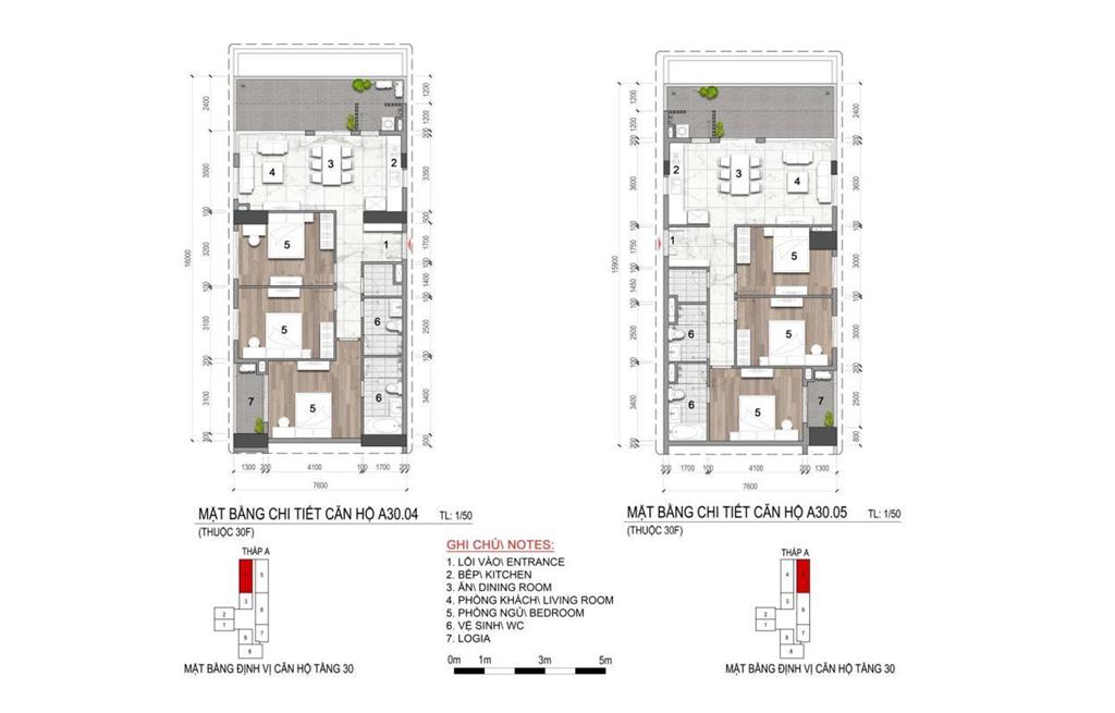
Thiết Kế - Mặt Bằng
Các thông số về dự án Lakeside Garden:
Quy mô: 7.8ha, 2 toà chung cư cao 27 và 32 tầng.
Loại hình: TTTM và căn hộ.


Hình ảnh bóc mái và mặt bằng căn hộ:















Tiện Ích
Chung cư Lakeside Garden Phương Lưu Hải Phòng sở hữu hệ thống tiện ích nội khu và ngoại khu đa dạng.
Nội khu:
- Trung tâm thương mại
- Công viên cay xanh
- Phòng sinh hoạt cộng đồng
- Trường mần non
- Đường nội bộ
- Khu thể thao ngoài trời
- Bể bơi bốn mùa
- Gym, Spa

Ngoại khu:
- Cách Hồ Phương Lưu 30m
- Cách BigC Hải Phòng 200m
- Cách Trường Trần Phú 1,1 km
- Cách bệnh viện Ngô Quyền 2,7km
- Cách sân vận động Lạch Tray 4km
- Cách nhà hát lớn thành phố 5km

Tiến Độ
Dự kiến bàn giao: Quý II năm 2025
Tiến độ dự án chung cư Lakeside Garden cập nhật Tháng 10/2024: hiện đã xây thô đến tầng 18. Hình ảnh thực tế:



