BV Diamond Hill
Thông tin tổng quan dự án Diamond Hill
Dự án Diamond Hill là tổ hợp thương mại, dịch vụ, căn hộ cao cấp được quy hoạch trên quỹ đất 2,5ha thuộc khu trung tâm thành phố Bắc Giang. Dự án có tổng mức đầu tư khoảng 1.000 tỷ đồng, gồm 3 dãy shophouse, 2 tòa tháp căn hộ cao 18 và 25 tầng. Chung cư Diamond Hill do Công ty Cổ phần Đầu tư và xây dựng Lilama (thuộc BV Group) làm chủ đầu tư, Công ty Cổ phần BV Land phát triển.
Chung cư Diamond Hill được phát triển theo mô hình smart home đầu tiên được xây dựng tại Bắc Giang, vận hành trên ba trục cốt lõi: Căn hộ thông minh, an ninh thông minh và vận hành thông minh. Tọa lạc tại vị trí “kim cương” ở thành phố Bắc Giang, dự án là biểu tượng của sự phồn vinh, may mắn, hiện đại và sang trọng, thịnh vượng và bền vững cho một cuộc sống hội tụ đầy đủ các giá trị tinh hoa nhất khu vực. Diamond Hill được kỳ vọng trở thành nơi đáng sống cho người thành thị năng động, yêu thiên nhiên và cuộc sống hiện đại.
Được thiết kế theo phong cách châu Âu với những tinh hoa kiến trúc độc đáo, Diamond Hill là sự gắn kết tuyệt vời giữa tự nhiên, nghệ thuật và con người. Các căn hộ đều được thiết kế rộng thoáng, lấy tối đa nắng, gió tự nhiên và không khí trong lành, mang đến cảm giác phóng khoáng, thư giãn cho gia chủ.
- Tên dự án: Diamond Hill (Tháp đôi Bách Việt)
- Vị trí: Khu dân cư số 2, phường Xương Giang, thành phố Bắc Giang, tỉnh Bắc Giang
- Chủ đầu tư: Công ty Cổ phần Đầu tư Xây dựng Lilama (thành viên thuộc BV Group)
- Đơn vị phát triển dự án: Công ty Cổ phần BV Land
- Đơn vị thiết kế kiến trúc: Công ty Swan & Maclaren (Singapore)
- Đơn vị Thiết kế cảnh quan: Công ty EGO (Italia)
- Tổng diện tích đất: 25.171m2
- Loại hình phát triển: Căn hộ & shophouse
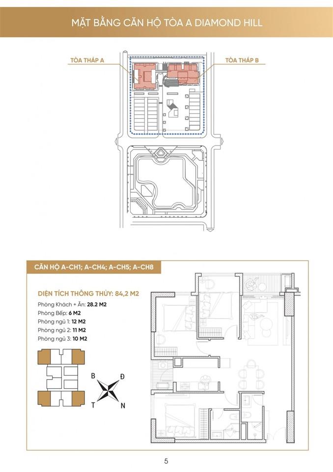
- Quy mô: 2 tòa tháp 18 tầng và 25 tầng, 3 block shophouse xây 4,5 tầng
- Tổng số sản phẩm toàn dự án: 406 sản phẩm, trong đó gồm:
+ 358 căn hộ chung cư từ 2 – 3 phòng ngủ
+ 6 căn Duplex
+ 17 Lô Shophouse khối đế chung cư
+ 25 Lô Shophouse, được xây dựng 4,5 tầng
- Tiêu chuẩn bàn giao căn hộ: Nội thất liền tường cao cấp
- Hình thức sở hữu: Lâu dài
- Dự kiến bàn giao: Quý III/2022

Phối cảnh dự án Diamond Hill
Vị trí
Dự án chung cư Diamond Hill được quy hoạch tại đường Hoàng Quốc Việt, phường Xương Giang, thành phố Bắc Giang, tỉnh Bắc Giang. Diamond Hill là dự án hiếm hoi sở hữu tới 4 mặt tiền trên các trục giao thông huyết mạch của khu vực như Hoàng Quốc Việt, Lương Thế Vinh, Chu Danh Tể. Vị trí dự án Diamond Hill nằm trong khu trung tâm - nơi được coi là "đầu não" của mọi hoạt động kinh tế, tài chính, chính trị, thương mại của thành phố Bắc Giang. Dự án có các mặt tiếp giáp như sau:
- Phía Bắc giáp khu dân cư số 2
- Phía Nam giáp trụ sở làm việc khối Công an tỉnh
- Phía Đông giáp Nhà Văn hóa Lao động

Vị trí dự án Diamond Hill Bắc Giang
Với vị trí này, căn hộ Diamond Hill Bắc Giang được thừa hưởng trọn vẹn các ưu thế từ liên kết vùng hoàn hảo, hạ tầng giao thông đồng bộ, là tâm điểm kết nối mọi tiện ích trong khu trung tâm TP. Bắc Giang.
Liên kết vùng dự án chung cư Diamond Hill:
- Liền kề trụ sở Công an tỉnh Bắc Giang
- 100m đến Trung tâm tài chính tỉnh Bắc Giang (hệ thống ngân hàng, kho bạc, cục thuế)
- 900m đến Trường THPT Chuyên Bắc Giang
- 1,1km đến Bệnh viện Sản Nhi
- 1,2km đến Quảng trường 3/2
- 1,5km đến Bệnh viện Quốc tế Hà Nội – Bắc Giang.
Hạ tầng
Chung cư Diamond Hill Bắc Giang sở hữu chuỗi tiện ích và dịch vụ đẳng cấp, hứa hẹn mang đến trải nghiệm sống khác biệt dành cho cộng đồng cư dân. Hệ thống tiện ích nội khu với gần 50 hạng mục và không gian xanh mát, thiết kế thông minh theo tiêu chuẩn 4.0 là điểm nhấn đáng chú ý của dự án này. Các tiện ích nổi bật tại dự án Diamond Hill có thể kể tới như:
- Công viên trung tâm
- Hồ cảnh quan
- Sky garden
- Bể bơi vô cực
- Cafe vườn treo Babylon
- Đường dạo bộ
- Khu trình diễn nhạc nước nghệ thuật
- Sảnh căn hộ tiêu chuẩn khách sạn 5 sao
- Phòng sinh hoạt cộng đồng
- Vườn nướng BBQ
- Thư viện
- Phòng tập gym, spa
Chung cư Diamond Hill hướng tới kiến tạo nên phong cách sống resort trong lòng thành phố với sự kết hợp hài hòa giữa con người, tiện ích và thiên nhiên, trong đó con người được xem là yếu tố trung tâm. Tại đây, từng giác quan, từng cảm xúc của cư dân sẽ được đánh thức và đẩy lên cao nhất với những tiện ích, dịch vụ đẳng cấp.

Dự án Diamond Hill nằm liền kề hồ cảnh quan lớn, không gian xanh mát

Chuỗi tiện ích thương mại, dịch vụ ở khối đế chung cư

Bể bơi vô cực ngắm cảnh thành phố

Các dãy shophouse nhộn nhịp

