Thông tin tổng quan dự án An Phúc Viên
An Phúc Viên là dự án công viên nghĩa trang được đầu tư bởi Công ty Cổ phần Thành Tựu với tổng mức đầu tư lên đến 1300 tỉ đồng tại xã Vĩnh Phương, TP. Nha Trang và xã Diên Phú, huyện Diên Khánh (Khánh Hòa).
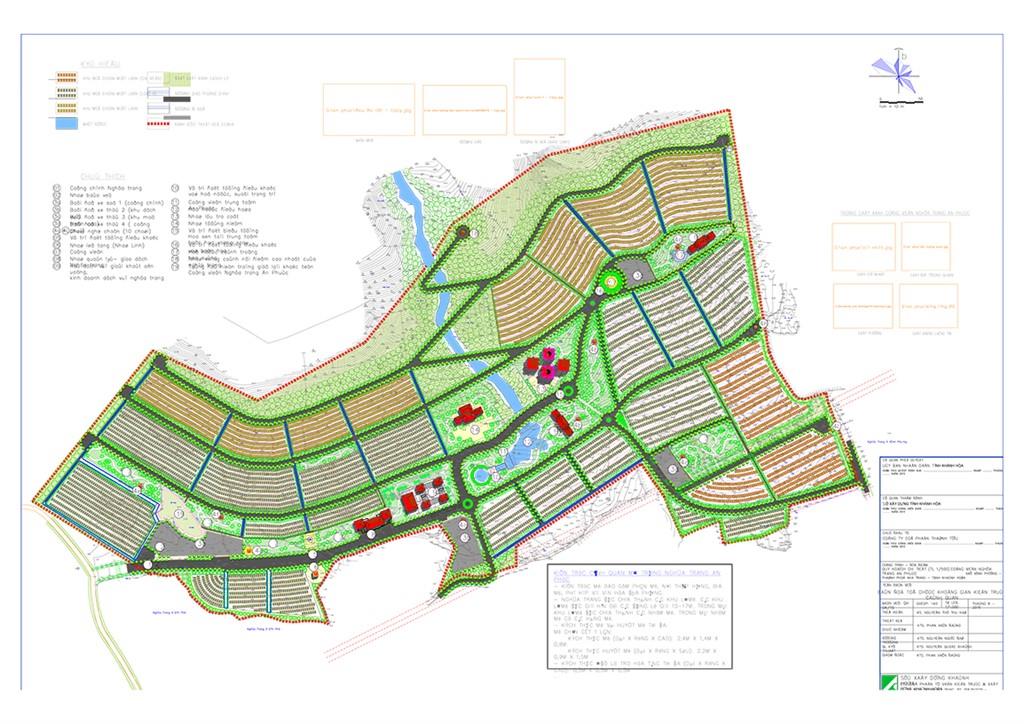
Dự án có quy mô 27.9ha gồm các Công trình văn Hóa tâm linh nổi bật như Vườn La Hán, Vườn Thiên Đàng, Vườn Địa Đàng, Chùa An Phúc, Bến Lục Thủy, Đền Trình, Café, Chòi nghỉ chân, Nhà hàng cơm chay,… không chỉ tạo nên chốn an nghỉ khang trang cho những người đã khuất mà còn mang tới điểm nhấn về Lĩnh vực Văn hóa tâm linh tại Nha Trang, Khánh Hòa.
- Tên dự án: An Phúc Viên
- Vị trí công viên nghĩa trang An Phúc: Thôn Như Xuân, Xã Vĩnh Phương, TP Nha Trang, Tỉnh Khánh Hoà
- Chủ đầu tư: Công ty Cổ phần Thành Tựu
- Tính chất của khu quy hoạch: Quy hoạch xây dựng khu công viên nghĩa trang, kết hợp dịch vụ tổng hợp
- Quy mô: 27,9ha
- Sản phẩm: Mộ đơn, Mộ đôi, Mộ gia tộc

Phối cảnh tổng thể dự án An Phúc Viên
Vị trí
An Phúc Viên tọa lạc gần quốc lộ 1A, xã Vĩnh Phương, TP. Nha Trang và xã Diên Phú, huyện Diên Khánh (Khánh Hòa). Dự án có giới hạn vị trí cụ thể như sau:
- Phía Bắc giáp núi Chùa xã Vĩnh Hưng
- Phía Nam giáp đồi núi và nghĩa trang xã Vĩnh Phương, nghĩa trang Chùa Đá Lố
- Phía Đông giáp núi Chùa, nghĩa trang xã Vĩnh Phương
- Phía Tây giáp núi Chùa, nghĩa trang xã Diên Phú

Vị trí dự án An Phúc Viên
Hạ tầng
Sala An Phúc là công viên nghĩa trang có hệ thống kim tĩnh hiện đại được xây dựng với công nghệ bảo vệ môi trường theo chuẩn Châu Âu, bên cạnh đó, dự án còn sở hữu đầy đủ các dịch vụ tiện ích như: Đền trình, Nhà tang lễ, Tịnh xá, Quảng trường tổ chức các sự kiện, Xưởng bia mộ, Khu lưu trữ tro cốt... mang đến chất lượng dịch vụ tốt nhất cho khách hàng.
Đặc biệt, dự án chỉ cách Trung tâm Tp. Nha Trang khoảng 10 phút di chuyển và cò được bao quanh bởi nhiều ngôi chùa, thiền viện và giáo xứ lớn, mang tới một vị thế phong thủy độc tôn hiếm có.

Liên kết tiện ích dự án An Phúc Viên

