An Phú Shop Villa
Thông tin dự án An Phú Shop Villa
An Phú Shop Villa Dương Nội nằm ở vị trí đẹp nhất quận Hà Đông, Hà Nội. Dự án là mô hình biệt thự kinh doanh nổi bật lần đầu tiên xuất hiện trên thị trường bất động sản Hà Nội. Khu biệt thự mang đến cho cư dân một môi trường kinh doanh thuận lợi, bền vững và cuộc sống xanh mát, hiện đại, tiện nghi.
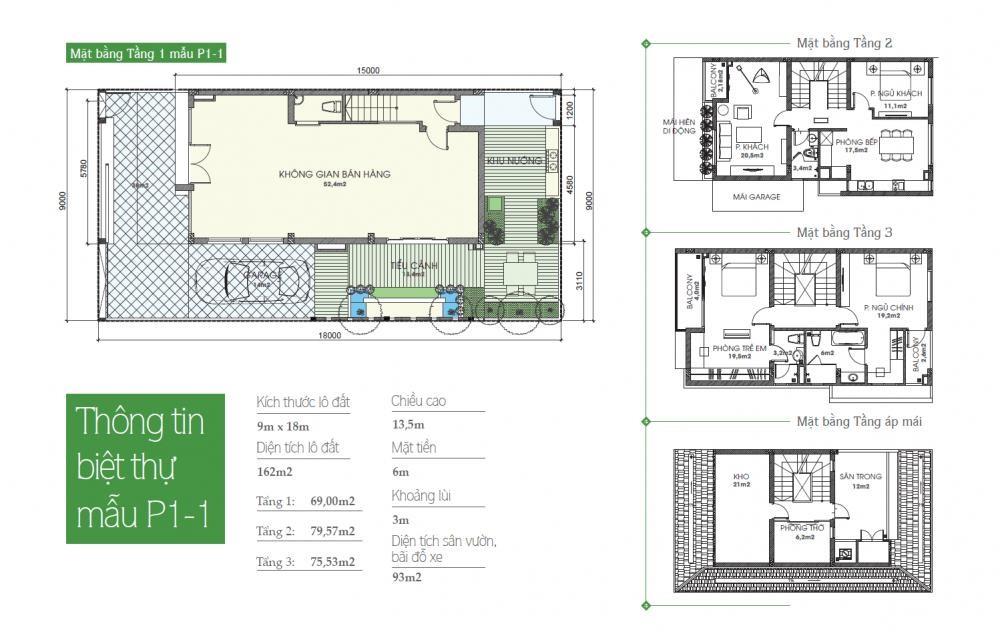
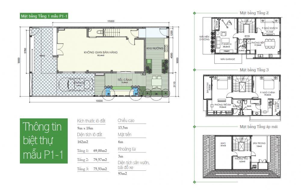
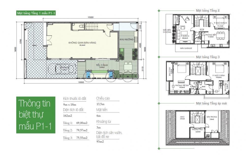
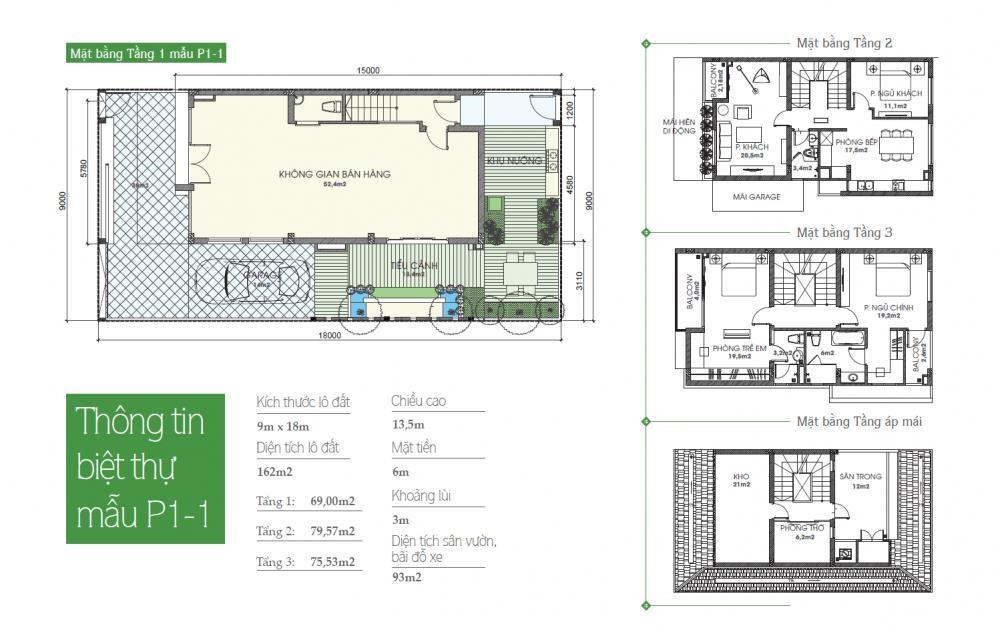
- Tên dự án: An Phú Shop Villa
- Chủ đầu tư: Tập đoàn Nam Cường
- Tư vấn thiết kế: CPG Consultants Singapore
- Tổng diện tích: 47.257m2
- Diện tích xây dựng: 28.352m2
- Mật độ xây dựng: 60%
- Loại hình: Biệt thự thương mại
- Tổng số biệt thự: 246 căn
- Hình thức sở hữu: Vĩnh viễn
- Dự kiến bàn giao: Quý IV/2017

Phối cảnh tổng thể An Phú Shop Villa
Vị trí
An Phú Shop Villa tọa lạc trong Khu đô thị Dương Nội, nằm trên đường Lê Văn Lương kéo dài, quận Hà Đông, Hà Nội. Dự án có phía Đông Nam giáp đường trục phía bắc quận Hà Đông (Lê Văn Lương); phía Tây Nam giáp đường vành đai 4, đường Lê Trọng Tấn và xã Yên Nghĩa; phía Đông Bắc tiếp giáp với các xã Tây Mỗ, Đại Mỗ, quận Từ Liêm.

Vị trí An Phú Shop Villa
Hạ tầng
Khu biệt thự An Phú Shop Villa là sự kết hợp giữa cuộc sống đẳng cấp, tiện nghi với không gian sầm uất, nhộn nhịp. Khách hàng có thể hưởng lợi từ việc cho thuê mặt sàn thương mại hoặc kinh doanh buôn bán, đồng thời vẫn có thể hưởng thụ trọn vẹn bầu không khí tươi mát, trong lành.
Dự án được thiết kế một không gian sống hoàn hảo kết hợp với chức năng kinh doanh độc đáo, tầng trệt là dãy phố tấp nập, đông đúc, nơi bạn có thể bày bán các loại hàng hóa, dịch vụ. Khách hàng cũng được cung cấp các dịch vụ tại con phố kinh doanh này.










Các tiện ích tại dự án

Liên kết vùng tại dự án

