Chủ khu công nghiệp mình quang 10.000 m .tổng 80,ha cắt nhỏ theo nhu cầu. ngày quốc lộ 5 . giá tốt
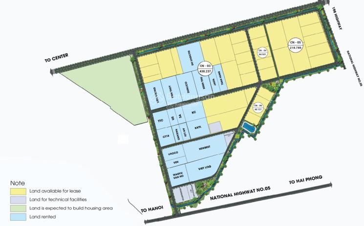
Khu công nghiệp Mình Quang tại xã Bạch Sam, huyện Mỹ Hào, tỉnh Hưng Yên, nằm tiếp giáp Quốc lộ 5 (Hà Nội - Hải Phòng), _ Tổng diện tích cắt nhỏ theo nhu cầu từ 10.000
_ Cách Hà Nội: 38 km _ Cách Hải Dương: 21 km. _ Cách Hưng Yên: 40 km. _ Cách sân bay Nội Bài: 55 km. _ Cảng Hải Phòng 65 km. _ Cảng biển nước sâu Quảng Ninh: Khoảng 105 km. _ Cách cửa khẩu Trung Quốc: 174km.. _ Thời gian vận hành: 50 năm 2071
2/ __ __Lĩnh vực thu hút đầu tư: Công nghiệp điện, điện tử, điện lạnh, cơ khí, công nghiệp chế biến nông lâm sản, thực phẩm, vật liệu xây dựng cao cấp, công nghiệp sản xuất bao bì, sản xuất hàng tiêu dùng, công nghiệp nhẹ và các ngành công nghiệp sạch khác.
3/____Ưu đãi.
Thuế TNDN:
- Được hưởng thuế suất 10% trong thời hạn 15 năm và được miễn thuế 4 năm, giảm 50% số thuế phải nộp trong 9 năm tiếp theo.
- Được hưởng thuế suất 17% và được miễn thuế 2 năm, giảm 50% số thuế phải nộp trong 4 năm tiếp theo.
_ Thủ tục xin cấp Giấy chứng nhận đăng ký đầu tư.
- Thủ tục xin cấp Giấy chứng nhận đăng ký doanh nghiệp.
- Hỗ trợ tín dụng.
- Hỗ trợ đào tạo, phát triển nguồn nhân lực.
- Hỗ trợ, phối hợp cung cấp thông tin, _ Hỗ trợ thủ tục cấp giấy chứng nhận đầu tư , Giấy đăng ký doanh nghiệp và Giấy phép xây dựng vv 4____Ngân hàng hỗ trợ 85 % linh hoạt thủ tục. 5____ Liên hệ : Ngọc Thuý : Lưu số gọi : : Hoặc nhắn Zalo 24/24. Trực tiếp chủ đầu tư để được giá tốt nhất. Trân trọng
Đặc Điểm
Xem quy hoạch của bđs tại Phường Bạch Sam, Mỹ Hào, Hưng Yên
Đang Tải ...

