Bán đất đấu giá châu can 65m2 nằm sát trục cienco5, sát quốc lộ 1a. tiềm năng! chỉ hơn 3 tỷ
1 / 5
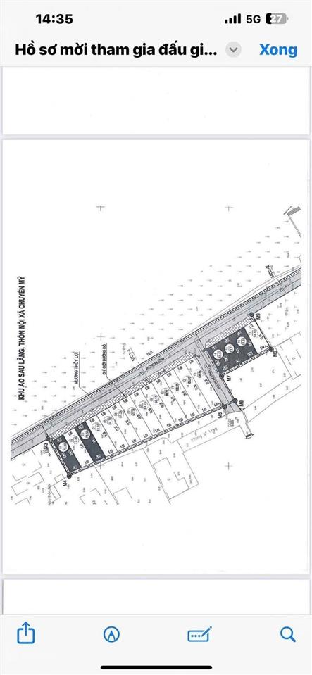
Bán đất đấu giá thôn nội châu can phú xuyên!
- Vị trí tuyệt đẹp giáp đường cienco5 60m ra đến trục cienco5 ( có đường nối thẳng từ đất ra)
- Cách nút giao trục cienco5 vs qlo 1A đang cbi mở rộng lên 90m chỉ 300m
Cách sân bay phía nam dự kiến 3km
- Đối diện quỹ đất xây chợ xã mới, phía sau đất là vườn hoa!
- Xung quanh đều quy hoạch các đại đô thị phía nam bám trục cienco5, qlo 1A và sân bay phía nam
Đất đấu giá pháp lú , quy họach chuẩn bào bản
- Diện tích 65m² chỉ 3.x tỷ ( x tiểu học thôi) mua đầu tư quá yên tâm & sinh lời bền vững đón hạ tầng ( mở rộng qlo 1A, thông xe & mở rộng trục cienco5 lên 80m, đường sắt cao tốc Bắc Nam, sân bay thứ 2 & các đại đô thị xung quanh)
::: Ace quan tâm LH
Xem thêm
Đặc Điểm
Loại Tin Rao: Đất Riêng
Giá: Thỏa thuận
Diện Tích: 65 m2
Đường Trước Nhà: 12 mm
Mặt Tiền: 5,5 mm
Pháp lý : Sổ đỏ/ Sổ hồng
Mã Đăng Tin: 30172532
Ngày Đăng: 12/04/2026 - 26/04/2026
Xem quy hoạch của bđs tại Xã Châu Can, Phú Xuyên, Hà Nội
Tin Đất Riêng Cùng Mức Giá Trong Xã Châu Can, Phú Xuyên, Hà Nội
Đang Tải ...
Xem Bản Đồ

