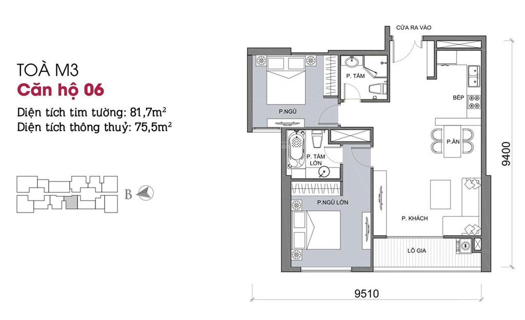
Hàng hiếm tại vinhomes metropolis liễu giai, 17 tỷ 81.7m2, 2pn, 2wc
Căn hộ chung cư tại Vinhomes Metropolis - Liễu Giai, Liễu Giai, Ngọc Khánh, Ba Đình, Hà Nội mang đến cho khách hàng một không gian sống thoải mái với thiết kế hiện đại và đầy đủ tiện nghi. Với diện tích tim tường 81.7m², DT 75.5m² thông thủy căn hộ có 2 phòng ngủ và 2 phòng tắm, phù hợp cho gia đình nhỏ hoặc các chuyên gia tìm kiếm sự tiện lợi.
- Giá: 17 tỷ VND.
- Diện tích: 81.7m².
- 2PN, 2WC.
- Hướng cửa chính: Đông Nam, hướng ban công: Tây Bắc.
- Nội thất đầy đủ: Điều hòa, giường, tủ lạnh, bếp và các thiết bị hiện đại khác.
Điểm nhấn:
Căn hộ không chỉ được thiết kế tinh tế mà còn có pháp lý đầy đủ, tạo sự yên tâm cho người mua. Không gian sống lý tưởng với nhiều ánh sáng tự nhiên và thông thoáng, đảm bảo mang đến trải nghiệm sống tốt nhất cho cư dân.
Địa điểm tiện ích xung quanh:
- Bệnh viện: Bệnh viện đa khoa Bảo Sơn 2, TCI Hospital - Bệnh viện đa khoa Quốc tế Thu Cúc.
- Công viên: Công viên Indira Gandhi, Công viên Gandhi Hồ Thành Công.
- Trường học: Mầm non, liên cấp Vinschool ngay tại dự án; Trường Rmit; Trường Đại học hàng đầu: Ngoại thương, ngoại giao, luật, hành chính...
- Siêu thị: Siêu thị, TTTM, rạp chiếu phim CGV.
Liên hệ để biết thêm chi tiết qua số điện thoại ạ.
Đặc Điểm
Xem quy hoạch của bđs tại Phường Ngọc Khánh, Ba Đình, Hà Nội
Đang Tải ...

